Winkworth says ..
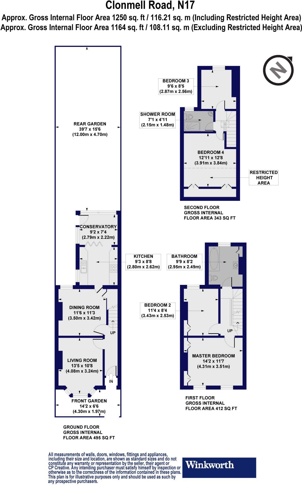
A Four-Bedroom, brick fronted, Victorian Home sits moments from Downhills Park. CHAIN-FREE Sole Agent.
Property Oracle says ..
Therefore, we give this property 6 / 10. *Disclaimer: This is our option and does constitute a recommendation or financial advice. Do your own research. *
- Price
- 6
- Condition
- 7
- Location
- 7
- Land
- 7
- Bedrooms
- 4
- Bathrooms
- 2
- Sqft (est)
- 1,045.48
The heatmap indicates the level of crime in the area. The color of the heatmap indicates the crime severity and recency.
Metrics Year-on-Year
- Average area value
- 486,429.00 £Decreased by 9.62 %
- Est sale value
- 701,517.08 £Decreased by 5.89 %
- Average area rental value
- 1,944.00 £/moDecreased by 2.85 %
- Est letting value
- 2,090.96 £/moUnchanged by 0.00 %
- Est rental Yield
- 4.80 %Increased by 7.62 %
- Crime Rate
- 4.00 %Unchanged by 0.00 %
from 538,187.00 £
from 745,427.24 £
from 2,001.00 £/mo
from 2,090.96 £/mo
from 4.46 %
from 4.00 %
Agent Activity
Winkworth created the listing.
Nearby Schools
| Name | Type | Ofsted | Distance |
|---|---|---|---|
| Harris Primary Academy Philip Lane | Academy Sponsor Led | Outstanding | 0.46 KM |
| The Brook Special Primary School | Community Special School | Requires improvement | 0.69 KM |
| The Willow Primary School | Community School | Outstanding | 0.75 KM |
| South Grove Children'S Centre | Children's Centre | 0.80 KM | |
| Seven Sisters Primary School | Community School | Good | 0.80 KM |
Images
Nearby Streets
| Name | Average Price | Average Sqft | Distance |
|---|---|---|---|
| Hastings Road | £ 0 | 0 | 0.00 KM |
| Fairweather Close | £ 0 | 0 | 0.00 KM |
| Lawrence Road | £ 471,875 | 0 | 0.00 KM |
| Freedom Road | £ 200,000 | 0 | 0.00 KM |
| Newsam Avenue | £ 0 | 0 | 0.00 KM |
Nearby Transport
| Name | NLC | TLC | Distance |
|---|---|---|---|
| Seven Sisters | 6931 | SVS | 1.25 KM |
| Bruce Grove | 6958 | BCV | 1.61 KM |
| South Tottenham | 7404 | STO | 1.65 KM |
| Stamford Hill | 6968 | SMH | 1.86 KM |
| Harringay Green Lanes | 7401 | HRY | 2.11 KM |
Nearby Listings
| Address | Price | Type | Score | Distance |
|---|---|---|---|---|
| Clonmell Road, London, N17 | £ 715,000 | BUY | 6 / 10 | 0.00 KM |
| Alton Road, London, N17 | £ 700,000 | BUY | Unknown | 0.07 KM |
| Clonmell Road, London, N17 | £ 675,000 | BUY | 6 / 10 | 0.08 KM |
| Lismore Road, London, N17 | £ 650,000 | BUY | Unknown | 0.09 KM |
| Handsworth Road , Share of Freehold - Tottenham , London, N17 | £ 475,000 | BUY | Unknown | 0.13 KM |
Nearby Properties
| Address | Price | Distance |
|---|---|---|
| 36 Clonmell Road | £ 540,000 | 0.03 KM |
| 48 Clonmell Road | £ 250,000 | 0.03 KM |
| 44 Clonmell Road | £ 107,000 | 0.03 KM |
| 10 Clonmell Road | £ 280,000 | 0.03 KM |
| 18 Clonmell Road | £ 249,000 | 0.03 KM |