Queen Street, Treforest
NE

Queen Street, Treforest

By NEXA South Wales

£ 157,500

Reviews

2 out of 5 stars

NEXA South Wales says ..

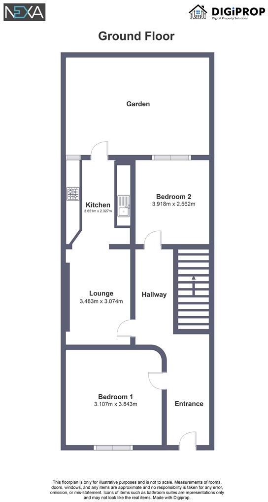
** HMO** ** FIVE BEDROOMS** ** TWO BATHROOMS** **INVESTORS ONLY** NEXA Estate Agents are proud to present to the market this spacious sized five bedroom mid terrace HMO property . located within a stones throw of the Treforest campus of the University of South Wales. The property's idea...

Property Oracle says ..

This is a 5-bedroom terraced property located on Queen Street, Treforest. The property is in reasonable condition but would benefit from some modernisation. The property has a garden, but it is overgrown and requires attention. The property is located close to local amenities, including Trefforest train station and Parclewis Primary School. The property is listed for £157,500, which is slightly above the average price for properties in the area.

Therefore, we give this property 5 / 10. *Disclaimer: This is our option and does constitute a recommendation or financial advice. Do your own research. *

Price
7
Condition
5
Location
6
Land
4
Bedrooms
5
Bathrooms
2

The heatmap indicates the level of crime in the area. The color of the heatmap indicates the crime severity and recency.

Metrics Year-on-Year

Average area value
127,800.00 £
Decreased by 14.85 %
from 150,081.00 £
Average area rental value
633.00 £/mo
Decreased by 13.99 %
from 736.00 £/mo
Est rental Yield
5.94 %
Increased by 1.02 %
from 5.88 %
Crime Rate
9.00 %
Unchanged by 0.00 %
from 9.00 %

Agent Activity

  • NEXA South Wales created the listing.

Nearby Schools

NameTypeOfstedDistance
Parclewis Primary SchoolWelsh Establishment0.38 KM
St Michael'S R.C. Primary SchoolWelsh Establishment0.56 KM
Coedpenmaen County Primary SchoolWelsh Establishment1.59 KM
Trallwng Infants SchoolWelsh Establishment1.91 KM
Heol-Y-Celyn Primary SchoolWelsh Establishment2.12 KM

Images

1765990848_12_1bcf2bee-d493-4f5b-ae16-9b8a5539dd00 1765990848_5_b1efb6e6-2b2a-40ef-9d1a-74866042c1db_ 1765991163_0_06596ee3-4fe2-4ab0-9af4-26e02abd43a1_ 1765991163_10_0880ba32-0e75-400c-b04d-18a815dcf1b7 5d479f03-74b2-4da5-8607-7848622a05c0.jpeg 1765991163_8_ca0cc55c-010a-474c-b764-51a2c56b52a9_ 1765991163_6_10feaf04-5777-4244-b9e0-02b72eb813b4_ 1765991163_15_543b20af-5606-4383-9369-1c571ad2cee3 1765991163_16_02249912-9c2a-4a5f-894e-5766ba434cc1 1765990848_1_cb25c270-5b2e-4662-9653-a6994d70bc31_ 1765991163_6_344d453d-4fcf-470b-82cf-18a5e6a626e9_ 1765991163_0_23104a75-ac38-49fb-85d0-66a1e9173096_ 1765991163_3_d74a1a0c-b223-41de-994d-300868113ba4_ 1765991163_2_e43bc9a7-f8ce-4d7d-b971-8d2c52dc5599_ 1765991163_10_cae9ced0-ffb0-44ad-b5a1-86e533ebcf23 1765991163_0_e1fb0e01-8037-4df8-ab51-56fd28372960_ 1765991163_1_508027e0-8bc4-4ba0-b718-17ebd495658a_ 1765991163_18_78a317e6-ab6d-4a58-b50e-879fb23c035e 1765991163_19_210dbd44-7afd-458b-862b-095836bbe21c 73839a9a-c988-429f-adec-839ea6454db1.jpeg

Nearby Streets

NameAverage PriceAverage SqftDistance
Park Street £ 000.00 KM
Nile Street £ 000.00 KM
Graig yr Helfa £ 140,00000.00 KM
Nile Road £ 115,00000.00 KM
Rockingstone Terrace £ 195,00000.00 KM

Nearby Transport

NameNLCTLCDistance
Trefforest3887TRF0.33 KM
Pontypridd3904PPD1.68 KM
Trefforest Estate3886TRE4.96 KM
Abercynon3801ACY5.71 KM
Trehafod3888TRH6.21 KM

Nearby Listings

AddressPriceTypeScoreDistance
Queen Street, Treforest £ 157,500BUY5 / 100.00 KM
Queen Street, Pontypridd, CF37 £ 160,000BUY6 / 100.03 KM
Queen Street, Treforest, Pontypridd, CF37 1RW £ 149,950BUY5 / 100.04 KM
Old Park Terrace, Pontypridd, £ 140,000BUY7 / 100.08 KM
Bridge Street, Treforest, Pontypridd £ 105,000BUY6 / 100.09 KM

Nearby Properties

AddressPriceDistance
10 Queen Street £ 119,5000.01 KM
103 Queen Street £ 115,0000.01 KM
109 Queen Street £ 68,0000.01 KM
93 Queen Street £ 140,0000.01 KM
12 Queen Street £ 125,0000.01 KM