Manning Stainton says ..
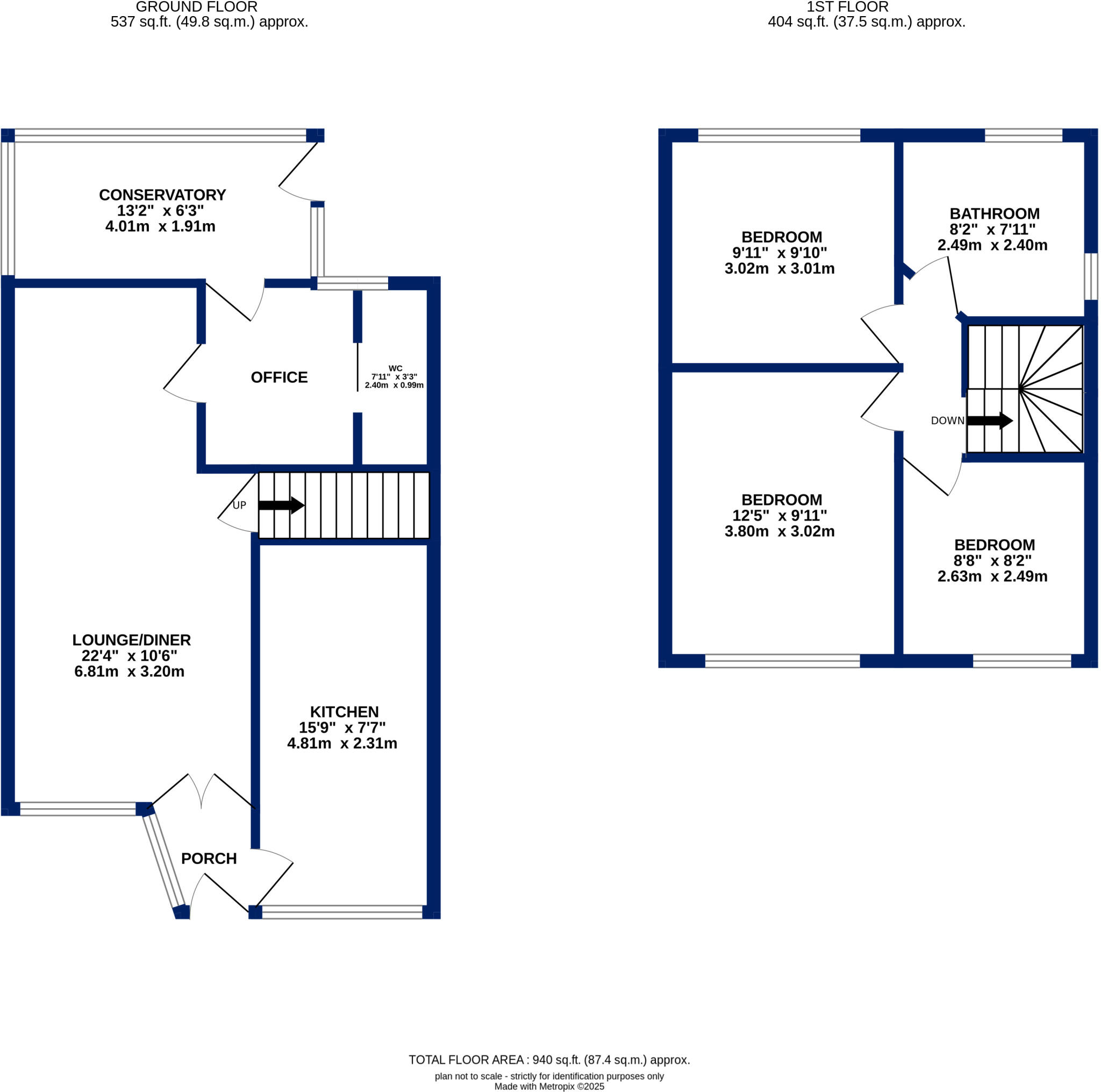
Three bed semi with TWO RECEPTION ROOMS and CONSERVATORY!
Property Oracle says ..
Therefore, we give this property 7 / 10. *Disclaimer: This is our option and does constitute a recommendation or financial advice. Do your own research. *
- Price
- 7
- Condition
- 8
- Location
- 8
- Land
- 7
- Bedrooms
- 3
- Bathrooms
- 2
- Sqft (est)
- 821.80
The heatmap indicates the level of crime in the area. The color of the heatmap indicates the crime severity and recency.
Metrics Year-on-Year
- Average area value
- 444,966.00 £Increased by 5.54 %
- Est sale value
- 369,810.00 £Increased by 32.35 %
- Average area rental value
- 1,480.00 £/moDecreased by 0.34 %
- Est letting value
- 821.80 £/moUnchanged by 0.00 %
- Est rental Yield
- 3.99 %Decreased by 5.67 %
- Crime Rate
- 8.00 %Unchanged by 0.00 %
from 421,604.00 £
from 279,412.00 £
from 1,485.00 £/mo
from 821.80 £/mo
from 4.23 %
from 8.00 %
Agent Activity
Manning Stainton created the listing.
Nearby Schools
| Name | Type | Ofsted | Distance |
|---|---|---|---|
| Ireland Wood Children'S Centre | Children's Centre | 0.50 KM | |
| Ralph Thoresby School | Foundation School | Good | 0.60 KM |
| Ireland Wood Primary School | Foundation School | Good | 0.60 KM |
| Holy Name Catholic Voluntary Academy | Academy Sponsor Led | Good | 1.15 KM |
| Cookridge Primary School | Foundation School | Good | 1.43 KM |
Images
Nearby Streets
| Name | Average Price | Average Sqft | Distance |
|---|---|---|---|
| Chestnut Drive | £ 0 | 0 | 0.00 KM |
| Grove Farm Crescent | £ 0 | 0 | 0.00 KM |
| Pear Close | £ 0 | 0 | 0.00 KM |
| Beech Close | £ 650,000 | 0 | 0.00 KM |
| Holt Avenue | £ 0 | 0 | 0.00 KM |
Nearby Transport
| Name | NLC | TLC | Distance |
|---|---|---|---|
| Horsforth | 8499 | HRS | 3.26 KM |
| Kirkstall Forge | 6544 | KLF | 4.35 KM |
| Headingley | 8498 | HDY | 4.48 KM |
| Burley Park | 8500 | BUY | 5.74 KM |
| Bramley (West Yorkshire) | 8496 | BLE | 6.95 KM |
Nearby Listings
| Address | Price | Type | Score | Distance |
|---|---|---|---|---|
| Kenworthy Gate, Leeds | £ 310,000 | BUY | 7 / 10 | 0.00 KM |
| Kenworthy Gardens, Leeds, West Yorkshire, UK, LS16 | £ 275,000 | BUY | Unknown | 0.06 KM |
| Holt Park Way, Leeds, West Yorkshire | £ 425,000 | BUY | 7 / 10 | 0.09 KM |
| Holt Drive, Adel, Leeds, West Yorkshire, UK, LS16 | £ 313,500 | BUY | Unknown | 0.11 KM |
| Holt Park Approach, Adel, LS16 | £ 459,000 | BUY | 8 / 10 | 0.12 KM |
Nearby Properties
| Address | Price | Distance |
|---|---|---|
| 18 Kenworthy Gate | £ 165,500 | 0.03 KM |
| 11 Kenworthy Gate | £ 138,500 | 0.03 KM |
| 14 Kenworthy Gate | £ 163,000 | 0.03 KM |
| 7 Kenworthy Gate | £ 180,000 | 0.03 KM |
| 2 Kenworthy Gate | £ 240,000 | 0.03 KM |