John Payne says ..
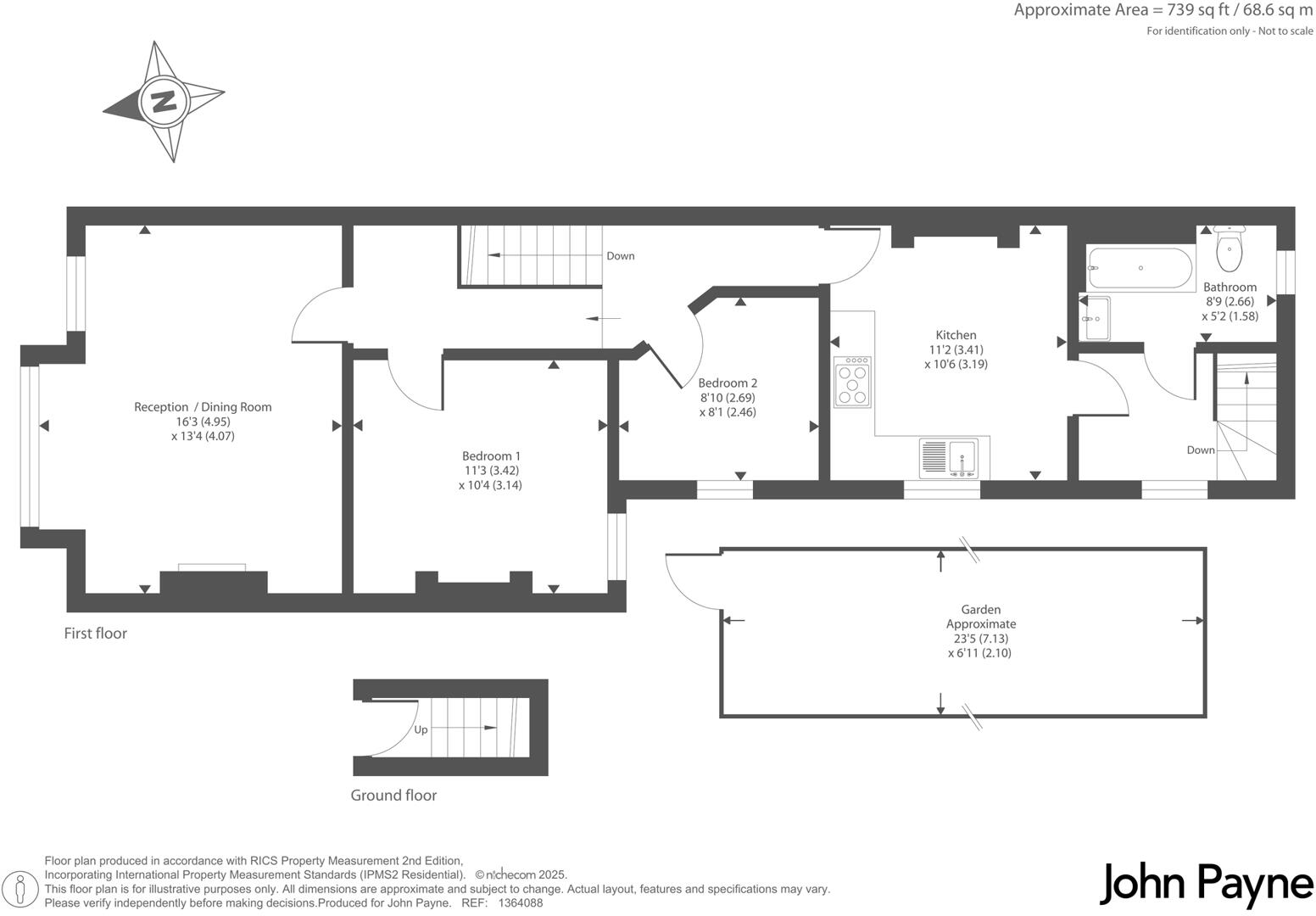
A superb, two bedroom, first floor Victorian flat with private garden and situated within easy reach of Hither Green train station, a number of outstanding schools, local shops and parks. This beautifully presented flat comprises lounge, spacious modern fitted kitchen, utility area, tw...
Property Oracle says ..
This is a two-bedroom apartment on Leahurst Road, Hither Green, London. The property is listed with John Payne. The apartment benefits from a modern interior, a garden, and proximity to local amenities, including schools and transportation. The property is in good condition and appears to be well-maintained. The asking price of £465,000 seems reasonable when compared to the average property price in the area.
Therefore, we give this property 7 / 10. *Disclaimer: This is our option and does constitute a recommendation or financial advice. Do your own research. *
- Price
- 7
- Condition
- 8
- Location
- 7
- Land
- 6
- Bedrooms
- 2
- Bathrooms
- 1
The heatmap indicates the level of crime in the area. The color of the heatmap indicates the crime severity and recency.
Metrics Year-on-Year
- Average area value
- 532,727.00 £Decreased by 12.76 %
- Average area rental value
- 1,995.00 £/moIncreased by 5.72 %
- Est rental Yield
- 4.49 %Increased by 21.02 %
- Crime Rate
- 1.00 %Unchanged by 0.00 %
Agent Activity
John Payne created the listing.
Nearby Schools
| Name | Type | Ofsted | Distance |
|---|---|---|---|
| Brindishe Manor School | Community School | Outstanding | 0.15 KM |
| Trinity Church Of England School, Lewisham | Voluntary Aided School | Good | 0.62 KM |
| Brindishe Lee School | Community School | Outstanding | 0.69 KM |
| Brindishe Green School | Community School | Outstanding | 0.81 KM |
| St Margaret'S Lee Cofe Primary School | Voluntary Aided School | Outstanding | 0.87 KM |
Images
Nearby Streets
| Name | Average Price | Average Sqft | Distance |
|---|---|---|---|
| St. Mildred's Road | £ 0 | 0 | 0.00 KM |
| Broadfield Road | £ 0 | 0 | 0.00 KM |
| Chiltonian Business Park | £ 0 | 0 | 0.00 KM |
| Arlington Close | £ 0 | 0 | 0.00 KM |
| Eastdown Park | £ 0 | 0 | 0.00 KM |
Nearby Transport
| Name | NLC | TLC | Distance |
|---|---|---|---|
| Hither Green | 5107 | HGR | 0.41 KM |
| Lee | 5110 | LEE | 1.21 KM |
| Blackheath | 5095 | BKH | 1.67 KM |
| Lewisham | 5051 | LEW | 2.39 KM |
| Ladywell | 5057 | LAD | 2.46 KM |
Nearby Listings
| Address | Price | Type | Score | Distance |
|---|---|---|---|---|
| Leahurst Road, Hither Green | £ 465,000 | BUY | 7 / 10 | 0.00 KM |
| Lee High Road, London | £ 320,000 | BUY | Unknown | 0.05 KM |
| Fernbrook Road, Hither Green | £ 650,000 | BUY | 5 / 10 | 0.06 KM |
| Fernbrook Road, Hither Green | £ 650,000 | BUY | 5 / 10 | 0.07 KM |
| Fernbrook Road, Hither Green | £ 625,000 | BUY | 6 / 10 | 0.07 KM |
Nearby Properties
| Address | Price | Distance |
|---|---|---|
| 49 Fernbrook Road | £ 290,000 | 0.09 KM |
| 19 Fernbrook Road | £ 515,000 | 0.09 KM |
| 43 Fernbrook Road | £ 550,000 | 0.09 KM |
| 45 Fernbrook Road | £ 545,000 | 0.09 KM |
| 35 Fernbrook Road | £ 830,000 | 0.09 KM |