Harewood Road, Isleworth
By Anthony James Manser
£ 745,000
Reviews
3 out of 5 stars
Anthony James Manser says ..
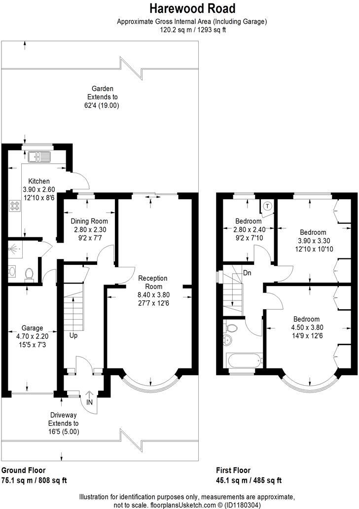
Anthony James Manser are most pleased to present this substantial 1930's built semi detached house to the market. The accommodation on the ground floor comprises entrance hallway, spacious through lounge and extended kitchen. The first floor provides three bedrooms and family bathroom. To the ...
Property Oracle says ..
This property is located on Harewood Road in Isleworth, a suburb of Hounslow in Greater London. The area benefits from good transport links, with Isleworth train station being approximately 0.76km away, providing access to South Western Railway services. Several highly-rated schools are also within a reasonable distance, including Nishkam School West London (Outstanding) and The Woodbridge Park Education Service (Good). The property itself is a three-bedroom semi-detached house. While the provided images suggest the property could benefit from some modernisation and updating, it appears structurally sound. The garden is visible in the images and appears to be of average size for the area. Considering the average house price in the area is £680,730 and the average price per square foot is £529, the list price of £745,000 seems reasonable, particularly given the proximity to good schools and transport links. However, without knowing the actual square footage of the property, a definitive conclusion on value for money cannot be reached. Nearby comparable properties range in price from £250,000 to £995,000, indicating a degree of price variation on the street. This variation is likely due to differences in size, condition, and specific features of the homes.
Therefore, we give this property 6 / 10. *Disclaimer: This is our option and does constitute a recommendation or financial advice. Do your own research. *
- Price
- 7
- Condition
- 6
- Location
- 8
- Land
- 5
- Bedrooms
- 3
- Bathrooms
- 1
The heatmap indicates the level of crime in the area. The color of the heatmap indicates the crime severity and recency.
Metrics Year-on-Year
- Average area value
- 731,667.00 £Increased by 2.19 %
- Average area rental value
- 2,106.00 £/moIncreased by 7.01 %
- Est rental Yield
- 3.45 %Increased by 4.55 %
- Crime Rate
- 5.00 %Unchanged by 0.00 %
Agent Activity
Anthony James Manser created the listing.
Nearby Schools
| Name | Type | Ofsted | Distance |
|---|---|---|---|
| The Woodbridge Park Education Service | Pupil Referral Unit | Good | 0.38 KM |
| Nishkam School West London | Free Schools | Outstanding | 0.64 KM |
| Isleworth And Syon School For Boys | Academy Converter | Good | 0.73 KM |
| Marlborough Primary School | Community School | Good | 0.84 KM |
| Bolder Academy | Free Schools | 0.92 KM |
Images
Nearby Streets
| Name | Average Price | Average Sqft | Distance |
|---|---|---|---|
| Highfield Road | £ 795,000 | 0 | 0.00 KM |
| Henley Close | £ 0 | 0 | 0.00 KM |
| Hartham Road | £ 450,000 | 0 | 0.00 KM |
| St. John's Road | £ 685,000 | 0 | 0.00 KM |
| Aylett Road | £ 0 | 0 | 0.00 KM |
Nearby Transport
| Name | NLC | TLC | Distance |
|---|---|---|---|
| Isleworth | 5592 | ISL | 0.76 KM |
| Syon Lane | 5609 | SYL | 1.11 KM |
| Brentford | 5552 | BFD | 2.88 KM |
| St Margarets | 5604 | SMG | 3.32 KM |
| Hanwell | 3191 | HAN | 3.43 KM |
Nearby Listings
| Address | Price | Type | Score | Distance |
|---|---|---|---|---|
| Harewood Road, Isleworth | £ 745,000 | BUY | 6 / 10 | 0.00 KM |
| Harewood Road, Isleworth | £ 739,950 | BUY | 7 / 10 | 0.05 KM |
| Wood Lane, Isleworth, TW7 | £ 750,000 | BUY | 7 / 10 | 0.10 KM |
| 42 Harewood Road, Isleworth, TW7 5HL | £ 950,000 | BUY | 8 / 10 | 0.10 KM |
| Harewood Road, Isleworth, TW7 | £ 875,000 | BUY | 7 / 10 | 0.11 KM |
Nearby Properties
| Address | Price | Distance |
|---|---|---|
| 99 Harewood Road | £ 250,000 | 0.07 KM |
| 57 Harewood Road | £ 221,000 | 0.07 KM |
| 55 Harewood Road | £ 325,000 | 0.07 KM |
| 41 Harewood Road | £ 960,000 | 0.07 KM |
| 97 Harewood Road | £ 668,000 | 0.07 KM |