Aberdeen Way, Knaphill, Woking, Surrey, GU21
SE

Aberdeen Way, Knaphill, Woking, Surrey, GU21

By Seymours Estate Agents

£ 950,000

Reviews

3 out of 5 stars

Seymours Estate Agents says ..

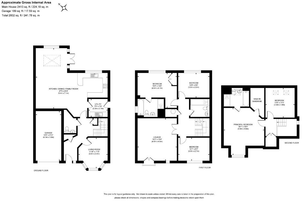
Offered with no onward chain - This substantial and beautifully presented five-bedroom detached family home enjoys arguably the most sought-after position within the Brookwood Farm Development in Knaphill. Set behind private gates and overlooking common land, the property offers stunning views an...

Property Oracle says ..

This is a detached property located in Knaphill, Woking. It features 5 bedrooms and 3 bathrooms, making it suitable for a family. The property appears to be in good condition, with a modern kitchen and bathrooms. It also benefits from a garden with a patio area. The location is convenient, with access to nearby schools and transportation links. The price is higher than average for the area, but this may be justified by the size and condition of the property. The property also benefits from having an office/study room.

Therefore, we give this property 7 / 10. *Disclaimer: This is our option and does constitute a recommendation or financial advice. Do your own research. *

Price
6
Condition
8
Location
7
Land
7
Bedrooms
5
Bathrooms
3

The heatmap indicates the level of crime in the area. The color of the heatmap indicates the crime severity and recency.

Metrics Year-on-Year

Average area value
586,400.00 £
Increased by 18.76 %
from 493,776.00 £
Average area rental value
2,150.00 £/mo
Increased by 9.47 %
from 1,964.00 £/mo
Est rental Yield
4.40 %
Decreased by 7.76 %
from 4.77 %
Crime Rate
8.00 %
Unchanged by 0.00 %
from 8.00 %

Agent Activity

  • Seymours Estate Agents created the listing.

Nearby Schools

NameTypeOfstedDistance
Brookwood Primary SchoolAcademy Sponsor LedGood0.66 KM
Brookwood & Pirbright Sure Start Children'S CentreChildren's Centre0.75 KM
The Knaphill Lower SchoolAcademy Converter0.76 KM
Knaphill SchoolAcademy Converter1.05 KM
Bisley Cofe Primary SchoolVoluntary Aided SchoolGood1.65 KM

Images

Picture No. 34 Picture No. 19 Picture No. 20 Picture No. 18 Picture No. 21 Picture No. 22 Picture No. 23 Picture No. 24 Picture No. 17 Picture No. 15 Picture No. 16 Picture No. 08 Picture No. 09 Picture No. 06 Picture No. 04 Picture No. 03 Picture No. 02 Picture No. 14 Picture No. 07 Picture No. 11 Picture No. 10 Picture No. 12 Picture No. 05 Picture No. 13 Picture No. 01 Picture No. 25 Picture No. 27 Picture No. 26 Picture No. 28 Picture No. 29 Picture No. 31

Nearby Streets

NameAverage PriceAverage SqftDistance
Oak Tree Road £ 000.00 KM
Gloucester Close £ 735,00000.00 KM
Guernsey Way £ 000.00 KM
Stafford Lake £ 000.00 KM
Trinity Road £ 660,00000.00 KM

Nearby Transport

NameNLCTLCDistance
Brookwood5687BKO0.99 KM
Worplesdon5686WPL5.77 KM
Woking5685WOK8.13 KM
Wanborough5639WAN8.45 KM
Bagshot5681BAG8.82 KM

Nearby Listings

AddressPriceTypeScoreDistance
Aberdeen Way, Knaphill, Woking, Surrey, GU21 £ 950,000BUY7 / 100.00 KM
Brookwood Farm Drive, Knaphill, Woking, GU21 £ 779,950BUY7 / 100.06 KM
Brookwood Farm Drive, Knaphill, Woking, GU21 £ 570,000BUY7 / 100.09 KM
Brookwood Farm Drive, Knaphill, Woking, GU21 £ 565,000BUYUnknown0.09 KM
Brookwood Farm Drive, Knaphill, Woking, Surrey, GU21 £ 639,950BUY7 / 100.09 KM

Nearby Properties

AddressPriceDistance
11 Aberdeen Way £ 750,0000.03 KM
40 Brookwood Farm Drive £ 533,7500.09 KM
11 Brookwood Farm Drive £ 495,0000.10 KM
34 Brookwood Farm Drive £ 330,0000.11 KM
28 Brookwood Farm Drive £ 460,0000.11 KM