Holly Park Gardens, N3
GR

Holly Park Gardens, N3

By Gravity Estates

£ 1,500,000

Reviews

4 out of 5 stars

Gravity Estates says ..

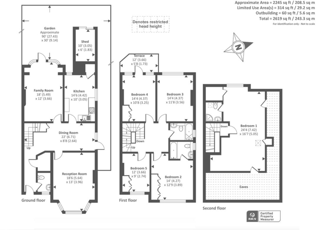
A stunning 5-bedroom semi-detached house located on the beautiful tree-lined road situated just off Holly Park. This property boasts 3 reception rooms and 3 bathrooms, providing ample space for comfortable living. One of the highlights of this property is its large west-facing garden, pe...

Property Oracle says ..

This property is a 5 bedroom, 3 bathroom semi-detached house located in Holly Park Gardens, Finchley, London. The property benefits from a large garden and is within easy reach of excellent schools and transport links. The house itself appears to be in good condition, although some modernisation may be desirable. The asking price of £1,500,000 is above the average price for the area, however, given the size of the property and the land, it may represent good value for money.

Therefore, we give this property 8 / 10. *Disclaimer: This is our option and does constitute a recommendation or financial advice. Do your own research. *

Price
7
Condition
8
Location
9
Land
9
Bedrooms
5
Bathrooms
3
Sqft (est)
4,596.00
Lot (est)
2,619.00

The heatmap indicates the level of crime in the area. The color of the heatmap indicates the crime severity and recency.

Metrics Year-on-Year

Average area value
1,216,667.00 £
Increased by 18.81 %
from 1,024,083.00 £
Est sale value
4,453,524.00 £
Increased by 46.37 %
from 3,042,552.00 £
Average area rental value
2,646.00 £/mo
Increased by 2.16 %
from 2,590.00 £/mo
Est letting value
9,192.00 £/mo
Increased by 100.00 %
from 4,596.00 £/mo
Est rental Yield
2.61 %
Decreased by 13.86 %
from 3.03 %
Crime Rate
6.00 %
Unchanged by 0.00 %
from 6.00 %

Agent Activity

  • Gravity Estates created the listing.

Nearby Schools

NameTypeOfstedDistance
Pardes House Grammar SchoolOther Independent SchoolGood0.58 KM
Pardes House Primary SchoolVoluntary Aided SchoolGood0.58 KM
Finchley And Acton Yochien SchoolOther Independent SchoolGood0.75 KM
Akiva SchoolVoluntary Aided SchoolGood0.77 KM
St Theresa'S Catholic Primary SchoolVoluntary Aided SchoolGood0.85 KM

Images

IMG_0755.JPG IMG_0734.JPG IMG_0742.JPG IMG_0737.JPG IMG_0741.JPG IMG_0743.JPG IMG_0745.JPG IMG_0728.JPG IMG_0697.JPG IMG_0692.JPG IMG_0695.JPG IMG_0700.JPG IMG_0746.JPG IMG_0722.JPG IMG_0725.JPG IMG_0723.JPG IMG_0721.JPG IMG_0711.JPG IMG_0713.JPG IMG_0714.JPG IMG_0720.JPG IMG_0716.JPG IMG_0729.JPG IMG_0699.JPG IMG_0749.JPG IMG_0747.JPG IMG_0748.JPG IMG_0754.JPG

Nearby Streets

NameAverage PriceAverage SqftDistance
Anatoolpad £ 000.00 KM
Eger Close £ 374,97500.00 KM
Wootton Grove £ 000.00 KM
Monkville Avenue £ 000.00 KM
Hervey Close £ 699,50000.00 KM

Nearby Transport

NameNLCTLCDistance
Cricklewood1519CRI4.37 KM
Hendon1522HEN4.96 KM
Finchley Road And Frognal1445FNY5.08 KM
West Hampstead Thameslink1525WHP5.10 KM
West Hampstead1421WHD5.22 KM

Nearby Listings

AddressPriceTypeScoreDistance
Holly Park Gardens, Finchley, London, N3 £ 1,495,000BUYUnknown0.00 KM
Holly Park Gardens, London, N3 £ 1,625,000BUY6 / 100.04 KM
Mountfield Road, Finchley, London, N3 £ 295,000BUY6 / 100.07 KM
Holly Park Gardens, Finchley £ 1,400,000BUY6 / 100.09 KM
Mountfield Road, Finchley £ 2,000,000BUY7 / 100.09 KM

Nearby Properties

AddressPriceDistance
29 Holly Park Gardens £ 350,0000.05 KM
25a Holly Park Gardens £ 175,0000.05 KM
33 Holly Park Gardens £ 60,0000.05 KM
31 Holly Park Gardens £ 900,0000.05 KM
25b Holly Park Gardens £ 370,0000.05 KM