Nunmill Street, York YO23 1NU
By Bishops Personal Agents
£ 375,000
Reviews
3 out of 5 stars
Bishops Personal Agents says ..
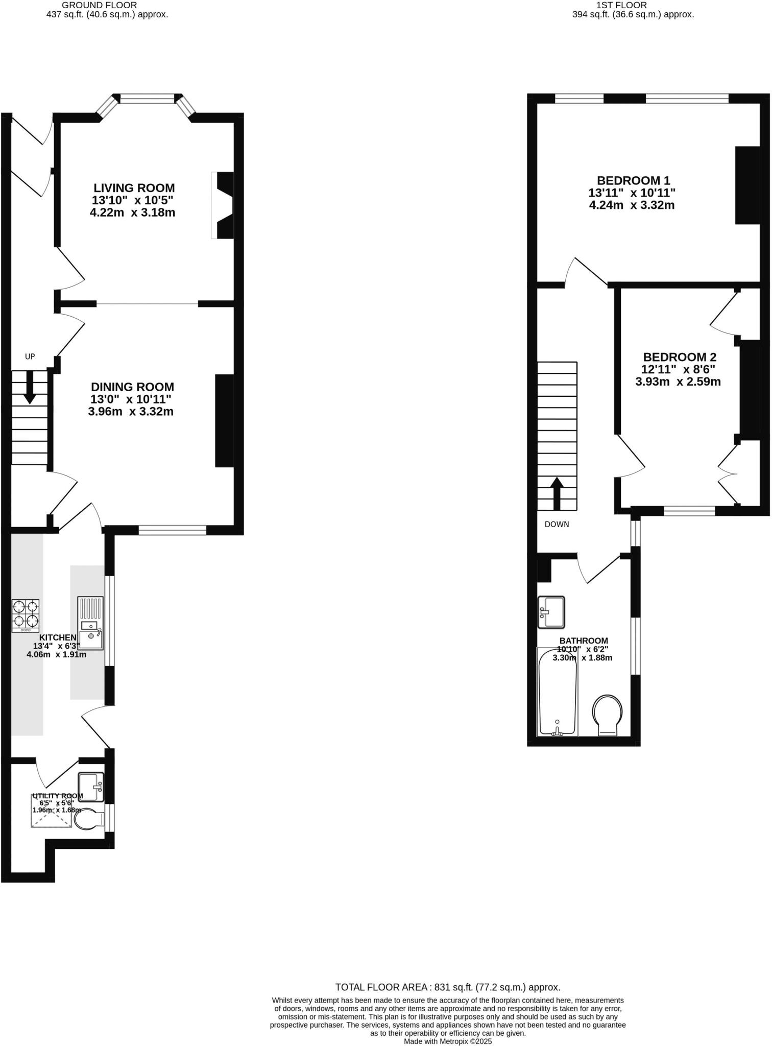
Bishops Personal Agents present to the market, a superb two bedroom mid terraced house, set in the heart of one of York's most sought after locations, just a short stroll from the "Bishy Road" high street, Rowntree Park and the York City centre. Dating from around 1883, this lovely ...
Property Oracle says ..
This property is a charming 2-bedroom terraced house located on Nunmill Street in York. The property is well-maintained and has several period features, including the original fireplaces and sash windows. The property has a small but well-maintained garden. The location is convenient, with easy access to local amenities and transport links. While the average price per square foot in the area is higher than the price of this property, the property is priced competitively considering its condition and features.
Therefore, we give this property 7 / 10. *Disclaimer: This is our option and does constitute a recommendation or financial advice. Do your own research. *
- Price
- 7
- Condition
- 8
- Location
- 7
- Land
- 6
- Bedrooms
- 2
- Bathrooms
- 1
- Sqft (est)
- 691.00
- Lot (est)
- 831.00
The heatmap indicates the level of crime in the area. The color of the heatmap indicates the crime severity and recency.
Metrics Year-on-Year
- Average area value
- 542,496.00 £Increased by 34.28 %
- Est sale value
- 288,838.00 £Increased by 33.55 %
- Average area rental value
- 1,435.00 £/moIncreased by 6.30 %
- Est letting value
- 691.00 £/moUnchanged by 0.00 %
- Est rental Yield
- 3.17 %Decreased by 20.95 %
- Crime Rate
- 4.00 %Unchanged by 0.00 %
Agent Activity
Bishops Personal Agents created the listing.
Nearby Schools
| Name | Type | Ofsted | Distance |
|---|---|---|---|
| Millthorpe School | Academy Converter | Good | 0.53 KM |
| Scarcroft Primary School | Academy Converter | 0.55 KM | |
| Knavesmire Primary School | Academy Converter | 0.77 KM | |
| Knavesmire Children'S Centre | Children's Centre | 0.77 KM | |
| Fishergate Primary School | Community School | Good | 1.15 KM |
Images
Nearby Streets
| Name | Average Price | Average Sqft | Distance |
|---|---|---|---|
| Drake Street | £ 180,000 | 0 | 0.00 KM |
| Bishopgate Street | £ 0 | 0 | 0.00 KM |
| Bishopthorpegate Street | £ 230,000 | 0 | 0.00 KM |
| Nunnery Lane | £ 0 | 0 | 0.00 KM |
| Bishops Court | £ 0 | 0 | 0.00 KM |
Nearby Transport
| Name | NLC | TLC | Distance |
|---|---|---|---|
| York | 8263 | YRK | 1.19 KM |
| Poppleton | 8254 | POP | 7.51 KM |
Nearby Listings
| Address | Price | Type | Score | Distance |
|---|---|---|---|---|
| Nunmill Street, York YO23 1NU | £ 375,000 | BUY | 7 / 10 | 0.00 KM |
| Nunmill Street, York YO23 1NU | £ 367,500 | BUY | 7 / 10 | 0.00 KM |
| Nunmill Street, York, North Yorkshire | £ 340,000 | BUY | 7 / 10 | 0.00 KM |
| Nunmill Street, York, YO23 | £ 145,000 | BUY | 5 / 10 | 0.01 KM |
| Nunmill Street, Off Scarcroft Road, York YO23 1NU | £ 350,000 | BUY | Unknown | 0.01 KM |
Nearby Properties
| Address | Price | Distance |
|---|---|---|
| 26 Nunmill Street | £ 47,000 | 0.01 KM |
| 62 Nunmill Street | £ 336,000 | 0.01 KM |
| 54 Nunmill Street | £ 176,000 | 0.01 KM |
| 24 Nunmill Street | £ 327,000 | 0.01 KM |
| 16 Nunmill Street | £ 144,950 | 0.01 KM |