South Sutton - Back Land Opportunity
By Allen Heritage
£ 400,000
Reviews
2 out of 5 stars
Allen Heritage says ..
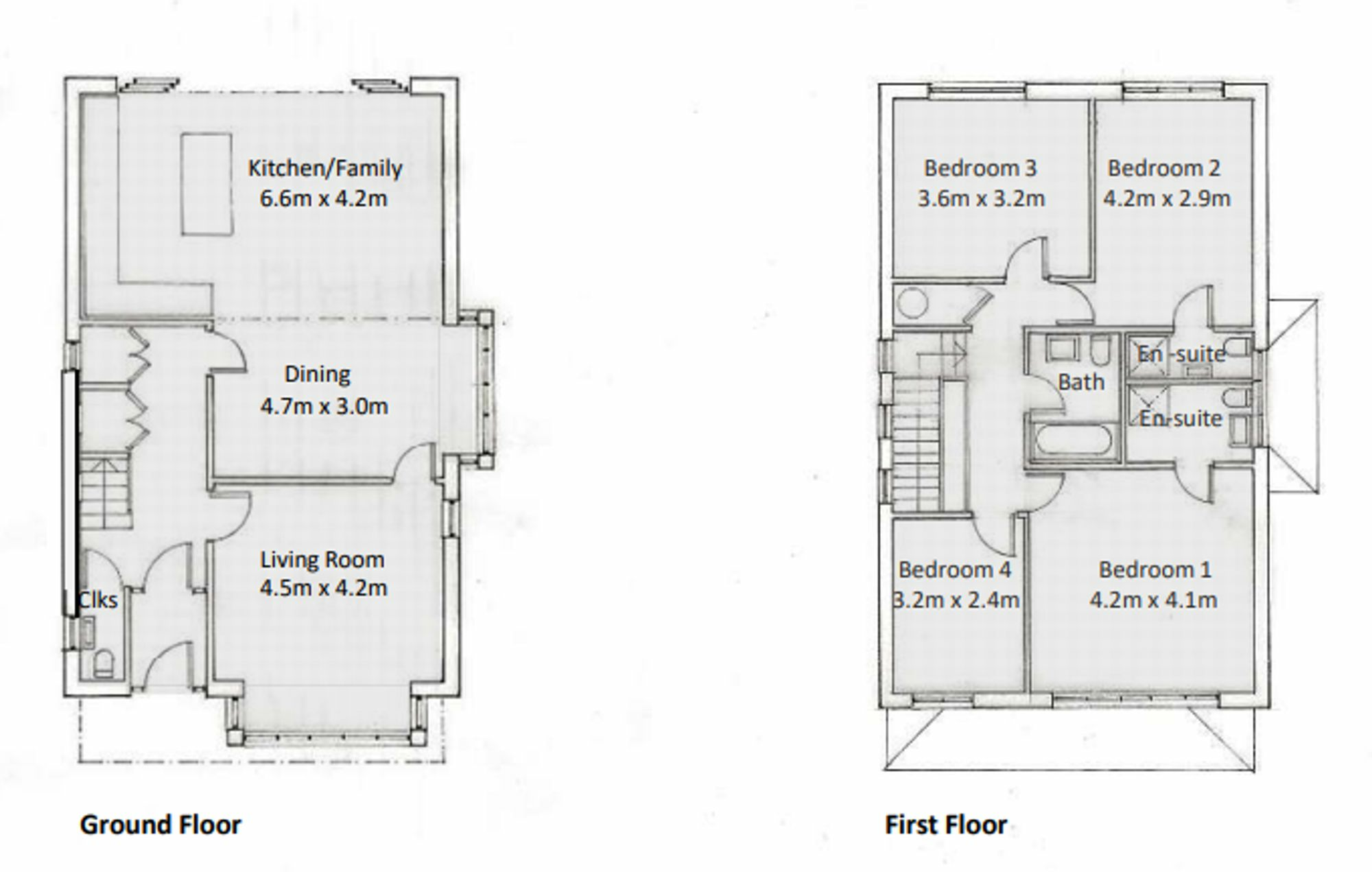
Full planning approval to demolish the existing studios and garage to create a four-bedroom detached residence.
Property Oracle says ..
This property in South Sutton presents a unique opportunity: a back-land plot with planning permission to build a four-bedroom detached house. The location is a positive factor, with good proximity to transport links (Sutton station) and several schools rated as ‘good’ by Ofsted. The area appears to have a mix of property types and price points, indicating a diverse and potentially healthy market.
However, the existing structure is a dated garage requiring substantial work or demolition. The lack of specific details about the land’s size and the proposed new house dimensions limits a complete analysis. Determining the true value relies heavily on the final build size and prevailing construction costs. The list price of £400,000 for a plot requiring significant development, without a clearer idea of the final product, introduces some level of uncertainty regarding its market value. Further due diligence, particularly regarding construction costs and the overall footprint of the planned property, is recommended before committing to the purchase.
Investors should consider factors such as construction costs, market trends, and potential rental yields to evaluate this investment prospect thoroughly. The current information provides a promising outlook but requires additional research to establish more accurate value. The planning permission is key and should be thoroughly checked.
The absence of key details like the exact plot size and the square footage of the planned house significantly impacts the overall assessment. While the location is appealing and the planning permission eliminates the risk of planning approval complications, uncertainty around costs and the finished product influence the final evaluation.
Therefore, we give this property 5 / 10. *Disclaimer: This is our option and does constitute a recommendation or financial advice. Do your own research. *
- Price
- 6
- Condition
- 3
- Location
- 7
- Land
- 4
- Bedrooms
- 0
- Bathrooms
- 0
The heatmap indicates the level of crime in the area. The color of the heatmap indicates the crime severity and recency.
Metrics Year-on-Year
- Average area value
- 426,436.00 £Decreased by 1.59 %
- Average area rental value
- 1,587.00 £/moDecreased by 7.46 %
- Est rental Yield
- 4.47 %Decreased by 5.89 %
- Crime Rate
- 2.00 %Unchanged by 0.00 %
Agent Activity
Allen Heritage marked this listing as sold.
Allen Heritage created the listing.
Nearby Schools
| Name | Type | Ofsted | Distance |
|---|---|---|---|
| Devonshire Primary School | Community School | Good | 0.59 KM |
| Seaton House School | Other Independent School | 0.80 KM | |
| Eagle House School Sutton | Other Independent Special School | Good | 0.81 KM |
| Orchard Hill College Of Further Education | Special Post 16 Institution | Outstanding | 0.90 KM |
| Barrow Hedges Primary School | Academy Converter | 1.04 KM |
Images
Nearby Streets
| Name | Average Price | Average Sqft | Distance |
|---|---|---|---|
| Mitre Close | £ 0 | 0 | 0.00 KM |
| Chalgrove Road | £ 850,000 | 0 | 0.00 KM |
| The Causeway | £ 0 | 0 | 0.00 KM |
| Wells Place | £ 250,000 | 0 | 0.00 KM |
| Upland Road | £ 0 | 0 | 0.00 KM |
Nearby Transport
| Name | NLC | TLC | Distance |
|---|---|---|---|
| Sutton | 5385 | SUO | 1.02 KM |
| Carshalton Beeches | 5406 | CSB | 1.68 KM |
| Belmont | 5350 | BLM | 1.92 KM |
| Carshalton | 5405 | CSH | 2.61 KM |
| West Sutton | 5293 | WSU | 2.69 KM |
Nearby Listings
| Address | Price | Type | Score | Distance |
|---|---|---|---|---|
| South Sutton - Back Land Opportunity | £ 400,000 | BUY | 5 / 10 | 0.00 KM |
| Chalgrove Road, Sutton | £ 1,300,000 | BUY | 8 / 10 | 0.07 KM |
| Egmont Road, Sutton, Surrey | £ 250,000 | BUY | 6 / 10 | 0.11 KM |
| Egmont Road, Sutton, Surrey, SM2 | £ 280,000 | BUY | 6 / 10 | 0.12 KM |
| Egmont Road, Sutton | £ 200,000 | BUY | 5 / 10 | 0.13 KM |
Nearby Properties
| Address | Price | Distance |
|---|---|---|
| 6 Mitre Close | £ 175,000 | 0.10 KM |
| 5 Mitre Close | £ 400,000 | 0.10 KM |
| 4 Mitre Close | £ 250,000 | 0.10 KM |
| 3 Mitre Close | £ 242,000 | 0.11 KM |
| 71b Egmont Road | £ 270,000 | 0.14 KM |