Leam Terrace, Leamington Spa
SH

Leam Terrace, Leamington Spa

By Sheldon Bosley Knight

£ 695,000

Reviews

2 out of 5 stars

Sheldon Bosley Knight says ..

A wonderful opportunity to acquire a bay fronted Victorian family home positioned in one Leamington Spa's most sought after residential roads, and giving excellent access to the vibrant town centre plus Jephson gardens. Internally this impressive home currently comprises of an entrance h...

Property Oracle says ..

Therefore, we give this property 5 / 10. *Disclaimer: This is our option and does constitute a recommendation or financial advice. Do your own research. *

Price
4
Condition
5
Location
7
Land
6
Bedrooms
4
Bathrooms
1

The heatmap indicates the level of crime in the area. The color of the heatmap indicates the crime severity and recency.

Metrics Year-on-Year

Average area value
360,000.00 £
Increased by 8.80 %
from 330,891.00 £
Average area rental value
1,197.00 £/mo
Decreased by 9.86 %
from 1,328.00 £/mo
Est rental Yield
3.99 %
Decreased by 17.22 %
from 4.82 %
Crime Rate
4.00 %
Unchanged by 0.00 %
from 4.00 %

Agent Activity

  • Sheldon Bosley Knight created the listing.

Nearby Schools

NameTypeOfstedDistance
St Anthony'S Catholic Primary SchoolVoluntary Aided SchoolOutstanding0.33 KM
St Paul'S Cofe Primary School, Leamington SpaVoluntary Aided SchoolGood0.74 KM
Clapham Terrace Community Primary School And NurseryCommunity SchoolGood0.81 KM
Sydenham Primary SchoolCommunity SchoolOutstanding1.11 KM
Campion SchoolAcademy ConverterGood1.27 KM

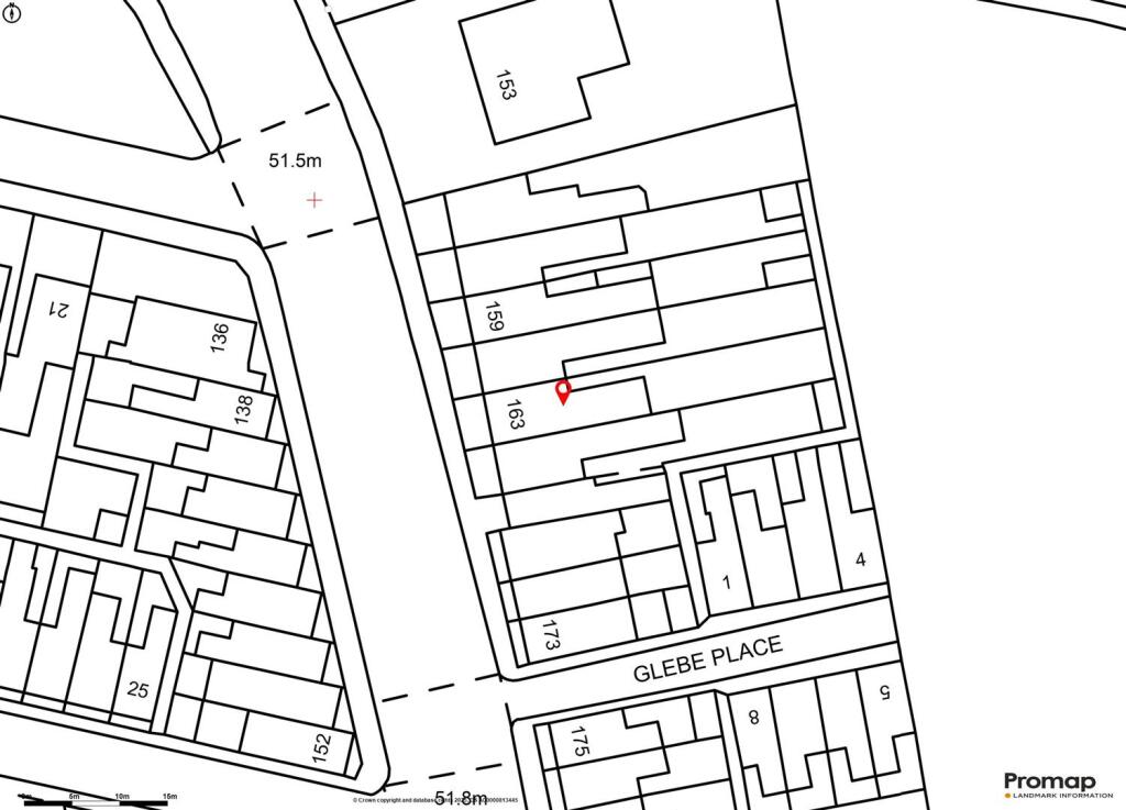
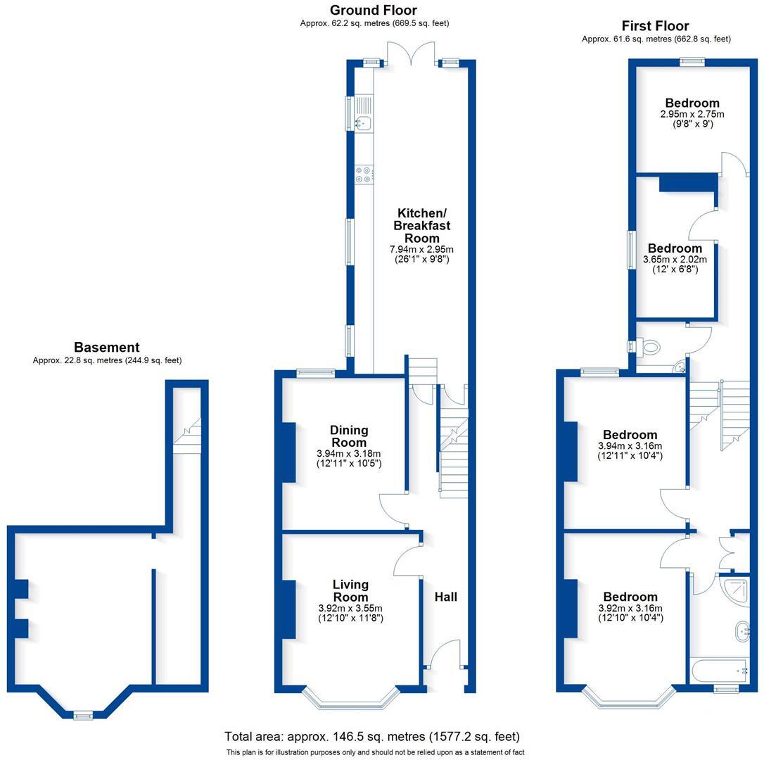
Images

Leam163-09A.jpg Leam163-07A.jpg Leam163-28A.jpg Leam163-08A.jpg Leam163-06A.jpg Leam163-10A.jpg Leam163-20A.jpg Leam163-21A.jpg Leam163-01A.jpg Leam163-19A.jpg Leam163-16A.jpg Leam163-05A.jpg Leam163-18A.jpg Leam163-22A.jpg Leam163-12A.jpg Leam163-25A.jpg Leam163-24A.jpg Leam163-15A.jpg Leam163-27A.jpg Leam163-26A.jpg Leam163-13A.jpg Leam163-17A.jpg Leam163-11A.jpg Leam163-23A.jpg Leam163-29A.jpg Leam163-04A.jpg Promap-3233114-3329835-750400-0.jpg Promap-3233114-3329835-750400-1.jpg Promap-3233114-3329835-750400-2.jpg

Nearby Streets

NameAverage PriceAverage SqftDistance
Saint Mary's Road £ 000.00 KM
St David's Close £ 000.00 KM
The Sycamores £ 160,00000.00 KM
Berrington Road £ 000.00 KM
Mayfield Close £ 000.00 KM

Nearby Transport

NameNLCTLCDistance
Leamington Spa4597LMS1.97 KM
Warwick4600WRW7.00 KM
Kenilworth7985KNW8.66 KM

Nearby Listings

AddressPriceTypeScoreDistance
Leam Terrace, Leamington Spa £ 695,000BUY5 / 100.00 KM
Glebe Place, Leamington Spa £ 372,000BUY7 / 100.03 KM
Glebe Place, Leamington Spa £ 380,000BUY7 / 100.03 KM
Glebe Place, Leamington Spa £ 395,000BUY6 / 100.05 KM
Leam Terrace, Leamington Spa £ 360,000BUY5 / 100.06 KM

Nearby Properties

AddressPriceDistance
6 Glebe Place £ 335,0000.05 KM
4 Glebe Place £ 327,5000.05 KM
1 Glebe Place £ 370,0000.05 KM
3 Glebe Place £ 219,0000.05 KM
5 Glebe Place £ 60,0000.05 KM