Church Street, Coatbridge, ML5 3EB
Sweet Home logo

Church Street, Coatbridge, ML5 3EB

By Sweet Home

£ 269,995

Reviews

3 out of 5 stars

Sweet Home says ..

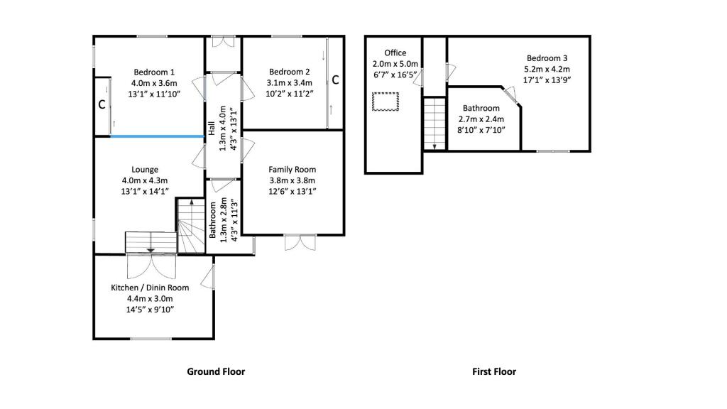
Caroline Morrison of Sweet Home Scotland is proud to bring to the market this fantastic villa in Church Street in Coatbridge. This charming residence encompasses 105 sq m or thereby of inviting living space, making it an ideal choice for families and individuals in search of a welcoming home. Th...

Property Oracle says ..

This is a 3-bedroom house located on Church Street, Coatbridge North. The property is listed by Sweet Home and has a list price of £269,995. The house features two bathrooms and is situated in a convenient location with good access to transportation and local amenities. The interior of the property has been modernised, with a contemporary kitchen and stylish living spaces. The property includes a small outdoor area, accessible from the family room. The house is located close to Coatbridge Sunnyside and Coatbridge Central stations, providing easy access to public transport. The price is relatively high compared to the average property prices in the area.

Therefore, we give this property 6 / 10. *Disclaimer: This is our option and does constitute a recommendation or financial advice. Do your own research. *

Price
6
Condition
8
Location
7
Land
5
Bedrooms
3
Bathrooms
2

The heatmap indicates the level of crime in the area. The color of the heatmap indicates the crime severity and recency.

Metrics Year-on-Year

Average area value
206,312.00 £
Increased by 25.04 %
from 164,998.00 £
Average area rental value
763.00 £/mo
Increased by 1.33 %
from 753.00 £/mo
Est rental Yield
4.44 %
Decreased by 18.98 %
from 5.48 %
Crime Rate
0.00 %
from 0.00 %

Agent Activity

  • Sweet Home created the listing.

Images

Front (Exterior) Front (Exterior) Hallway Living Room Living Room Living Room Living Room Living Room Living Room Kitchen Kitchen Kitchen Living Room Living Room Living Room Balcony Bedroom Bedroom Interior Spaces Interior Spaces Bedroom Bedroom Bedroom Bathroom Bathroom Landing Loft Loft WC WC Landing Loft Bedroom Utility Room Bedroom Front (Exterior) Front (Exterior) Exterior Living Room Exterior Front (Exterior) Front (Exterior) Driveway Exterior Front (Exterior) Living Room Terrace / Patio Floor Plan - 23 Church Street, Coatbridge.jpg Exterior

Nearby Streets

NameAverage PriceAverage SqftDistance
Baird Street £ 159,99500.00 KM
Albert Street £ 75,00000.00 KM
Railway Street £ 69,99500.00 KM
Crichton Street £ 97,00000.00 KM
Lincoln Court £ 97,25000.00 KM

Nearby Transport

NameNLCTLCDistance
Coatbridge Sunnyside9752CBS0.31 KM
Coatbridge Central9747CBC0.56 KM
Whifflet9753WFF1.50 KM
Blairhill9760BAI1.80 KM
Coatdyke9762COA2.45 KM

Nearby Listings

AddressPriceTypeScoreDistance
Church Street, Coatbridge, ML5 3EB £ 269,995BUY6 / 100.00 KM
Academy Street, Coatbridge £ 75,000BUY4 / 100.07 KM
Church Street, Coatbridge £ 365,000BUYUnknown0.11 KM
Church Street, Coatbridge, Lanarkshire £ 95,000BUY6 / 100.11 KM
Academy Street, Coatbridge, ML5 3AU £ 72,500BUY5 / 100.13 KM