Beards Road, Fremington
CO

Beards Road, Fremington

By Collyers

£ 325,000

Reviews

3 out of 5 stars

Collyers says ..

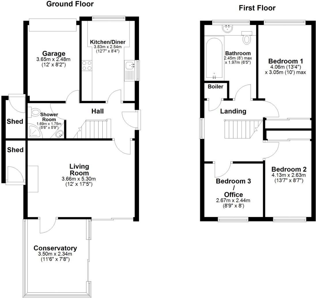
A stunning and highly functional home, 57 Beards Road offers a rare opportunity to own a meticulously maintained property in a sought-after location.

Property Oracle says ..

The property is a well-maintained 3-bedroom, 2-bathroom detached house in Fremington, North Devon. It benefits from a modern kitchen and bathrooms, and includes a garden with a conservatory and decking. The location is convenient, with a primary school nearby and Barnstaple, with its railway station, within reasonable distance. The listed price seems reasonable considering the average house price and price per sqft in the area, but more information on plot size would be helpful for a complete assessment. Comparable properties in the area show some price variation.

Therefore, we give this property 7 / 10. *Disclaimer: This is our option and does constitute a recommendation or financial advice. Do your own research. *

Price
7
Condition
8
Location
7
Land
7
Bedrooms
3
Bathrooms
2
Sqft (est)
902.23

The heatmap indicates the level of crime in the area. The color of the heatmap indicates the crime severity and recency.

Metrics Year-on-Year

Average area value
661,000.00 £
Increased by 29.29 %
from 511,241.00 £
Est sale value
489,008.66 £
Increased by 47.28 %
from 332,020.64 £
Average area rental value
2,410.00 £/mo
Increased by 120.90 %
from 1,091.00 £/mo
Est letting value
902.23 £/mo
from 0.00 £/mo
Est rental Yield
4.38 %
Increased by 71.09 %
from 2.56 %
Crime Rate
13.00 %
Unchanged by 0.00 %
from 13.00 %

Agent Activity

  • Collyers created the listing.

Nearby Schools

NameTypeOfstedDistance
Fremington Primary SchoolAcademy Converter0.60 KM
Roundswell Community Primary AcademyFree Schools2.97 KM
The Shoreline AcademyAcademy Alternative Provision Sponsor Led3.39 KM
Sticklepath Community Primary AcademyAcademy Converter4.48 KM
Barnstaple (Sticklepath)Children's Centre4.61 KM

Images

HOUSE FRONT 1.jpg Living Room LIVING ROOM 2.jpg Kitchen Kitchen Shower Room DOWNSTAIRS SHOWER ROOM 2.jpg HALL.jpg Bedroom 1 Bedroom 2 Bedroom 3 / Office LANDING 1.jpg UPSTAIRS BATHROOM.jpg Conservatory Garden Garden HOUSE FRONT 2.jpg FREMINGTON.jpg

Nearby Streets

NameAverage PriceAverage SqftDistance
Park Close £ 290,00000.00 KM
Red Lane £ 000.00 KM
Aspen Grove £ 48,00000.00 KM
Tarka Trail £ 000.00 KM
Horseshoe Close £ 000.00 KM

Nearby Transport

NameNLCTLCDistance
Barnstaple5725BNP6.62 KM

Nearby Listings

AddressPriceTypeScoreDistance
Beards Road, Fremington £ 325,000BUY7 / 100.00 KM
Park Close, Fremington, Barnstaple, Devon, EX31 £ 360,000BUY7 / 100.05 KM
Park Close, Fremington, Barnstaple, EX31 £ 290,000BUY6 / 100.06 KM
Park Close, Fremington, Barnstaple, Devon, EX31 £ 280,000BUY6 / 100.06 KM
School Close, Fremington, Barnstaple £ 325,000BUY6 / 100.12 KM

Nearby Properties

AddressPriceDistance
32 Beards Road £ 168,0000.08 KM
37 Beards Road £ 199,0000.08 KM
70 Beards Road £ 245,5000.08 KM
38 Beards Road £ 177,0000.08 KM
58 Beards Road £ 218,0000.08 KM