Gilson Bailey says ..
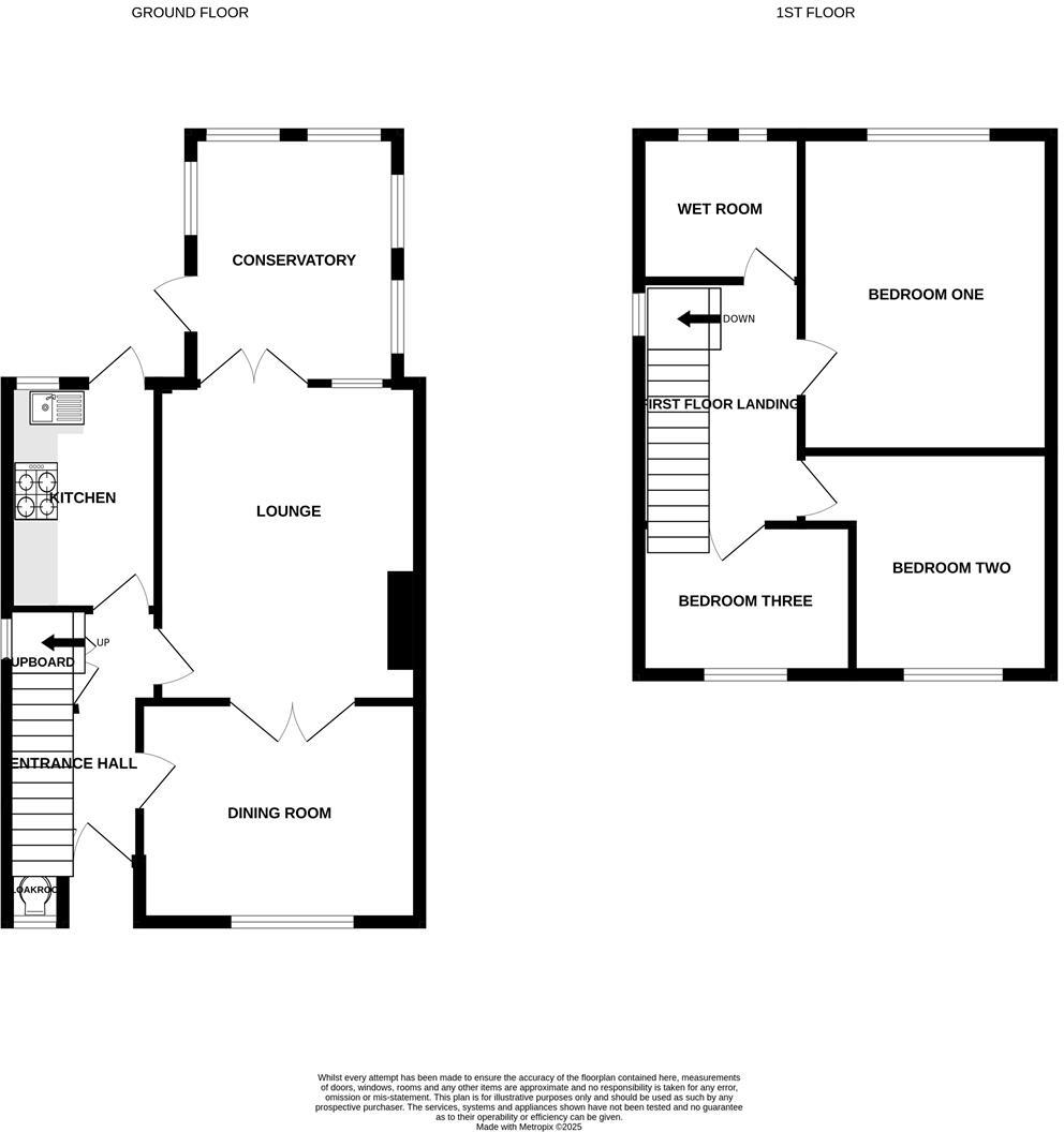
**GUIDE PRICE: £310,000 - £320,000** SEMI DETACHED HOUSE WITHIN WALKING DISTANCE TO THE CITY CENTRE. Gilson Bailey are delighted to offer this STUNNING, THREE BEDROOM, SEMI DETACHED HOUSE situated just to the south of Norwich. Accommodation comprising entrance hall, lounge, dining room, conservat...
Property Oracle says ..
The property is located in a desirable area of Norwich, close to good schools and transport links. The property itself is in reasonable condition, with some dated features but no major issues. The list price seems slightly above average for the area, but the presence of a garden and proximity to amenities could justify this. More information on plot size would allow for a more precise valuation.
Therefore, we give this property 7 / 10. *Disclaimer: This is our option and does constitute a recommendation or financial advice. Do your own research. *
- Price
- 7
- Condition
- 7
- Location
- 8
- Land
- 6
- Bedrooms
- 3
- Bathrooms
- 2
- Sqft (est)
- 1,350.00
The heatmap indicates the level of crime in the area. The color of the heatmap indicates the crime severity and recency.
Metrics Year-on-Year
- Average area value
- 286,250.00 £Increased by 20.30 %
- Est sale value
- 429,300.00 £Increased by 16.48 %
- Average area rental value
- 1,063.00 £/moIncreased by 3.30 %
- Est letting value
- 1,350.00 £/moUnchanged by 0.00 %
- Est rental Yield
- 4.46 %Decreased by 14.07 %
- Crime Rate
- 1.00 %Unchanged by 0.00 %
Agent Activity
Gilson Bailey created the listing.
Nearby Schools
| Name | Type | Ofsted | Distance |
|---|---|---|---|
| Norwich Steiner School | Other Independent School | Good | 0.35 KM |
| Lakenham Primary School | Foundation School | Good | 0.38 KM |
| Notre Dame High School, Norwich | Academy Converter | 0.60 KM | |
| The Free School Norwich | Free Schools | Good | 0.90 KM |
| Charles Darwin Primary School | Free Schools | Outstanding | 1.02 KM |
Images
Nearby Streets
| Name | Average Price | Average Sqft | Distance |
|---|---|---|---|
| Old School Court | £ 180,000 | 0 | 0.00 KM |
| Argyle Street | £ 135,000 | 0 | 0.00 KM |
| Broom Close | £ 0 | 0 | 0.00 KM |
| Kings Lane | £ 170,000 | 0 | 0.00 KM |
| King's Gate | £ 0 | 0 | 0.00 KM |
Nearby Transport
| Name | NLC | TLC | Distance |
|---|---|---|---|
| Norwich | 7309 | NRW | 1.08 KM |
Nearby Listings
| Address | Price | Type | Score | Distance |
|---|---|---|---|---|
| Bellville Crescent, Norwich | £ 310,000 | BUY | 7 / 10 | 0.00 KM |
| Bellville Crescent, Off City Road, Norwich, NR1 | £ 340,000 | BUY | Unknown | 0.01 KM |
| Bellville Crescent, Norwich | £ 290,000 | BUY | 6 / 10 | 0.04 KM |
| Corton Road, Norwich, NR1 3BS | £ 450,000 | BUY | 6 / 10 | 0.09 KM |
| City Road, Norwich | £ 595,000 | BUY | 6 / 10 | 0.10 KM |
Nearby Properties
| Address | Price | Distance |
|---|---|---|
| 6 Bellville Crescent | £ 270,000 | 0.01 KM |
| 8 Bellville Crescent | £ 180,000 | 0.01 KM |
| 5 Bellville Crescent | £ 33,000 | 0.01 KM |
| 3 Bellville Crescent | £ 288,000 | 0.01 KM |
| 25 Doman Road | £ 325,000 | 0.04 KM |