Poll Close, Wymondham, Norfolk
By The Norfolk Agents
£ 325,000
Reviews
3 out of 5 stars
The Norfolk Agents says ..
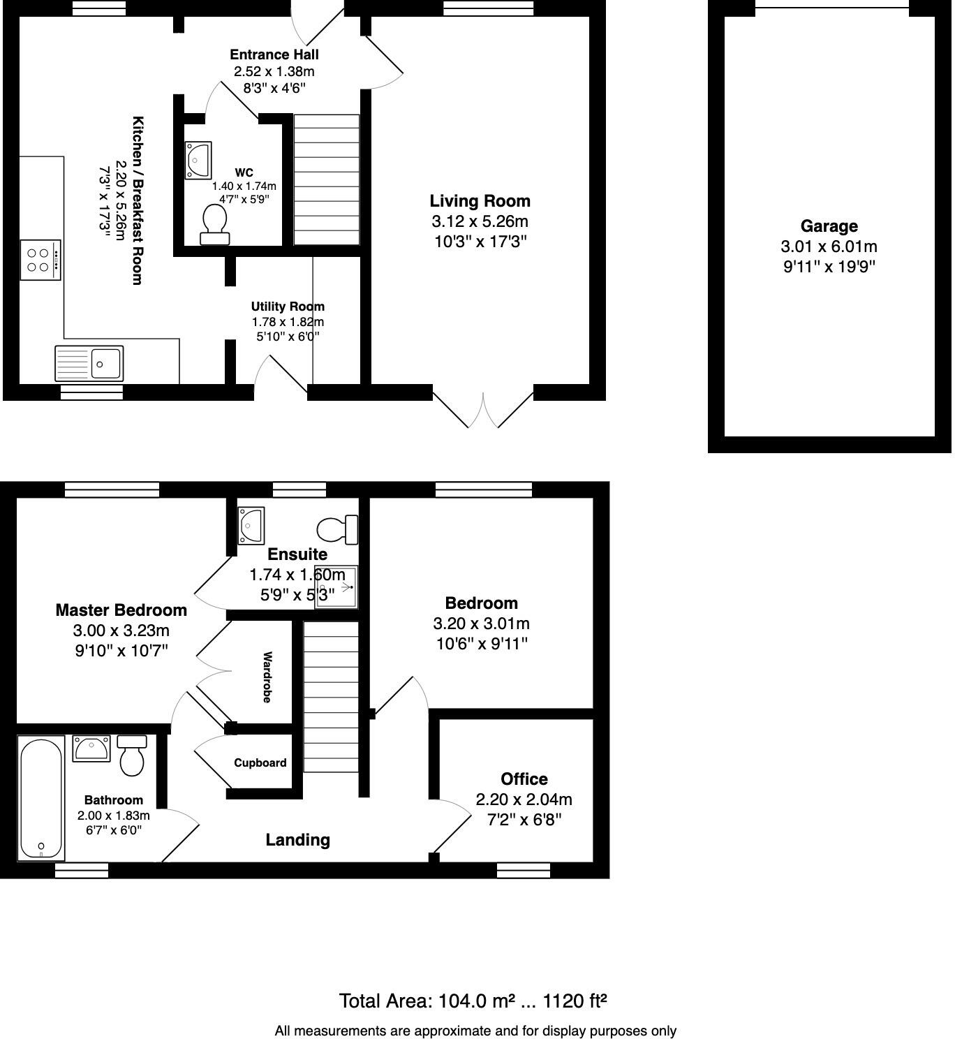
A well-presented three-bedroom detached house, located in the quiet village of Wymondham with off-road parking, a garage and low maintenance garden.
Property Oracle says ..
This is a detached property in North Wymondham, Norfolk. It has 3 bedrooms and 2 bathrooms. The property appears to be in good condition, with a modern kitchen and well-maintained bathrooms. It has a garden with both lawn and patio areas, and a shed for storage. The property is located close to schools and transportation links. The list price of £325,000 is slightly below the average price for the area. Overall, this property seems to be a good option for families.
Therefore, we give this property 7 / 10. *Disclaimer: This is our option and does constitute a recommendation or financial advice. Do your own research. *
- Price
- 7
- Condition
- 8
- Location
- 7
- Land
- 7
- Bedrooms
- 3
- Bathrooms
- 2
The heatmap indicates the level of crime in the area. The color of the heatmap indicates the crime severity and recency.
Metrics Year-on-Year
- Average area value
- 346,250.00 £Increased by 11.21 %
- Average area rental value
- 1,105.00 £/moDecreased by 1.78 %
- Est rental Yield
- 3.83 %Decreased by 11.75 %
- Crime Rate
- 14.00 %Unchanged by 0.00 %
Agent Activity
The Norfolk Agents created the listing.
Nearby Schools
| Name | Type | Ofsted | Distance |
|---|---|---|---|
| Ashleigh Primary School And Nursery, Wymondham | Community School | Outstanding | 1.90 KM |
| Wymondham Area Children'S Centre | Children's Centre | 1.95 KM | |
| Wymondham High Academy | Academy Converter | Good | 2.83 KM |
| Robert Kett Primary School | Foundation School | Requires improvement | 2.98 KM |
| Browick Road Primary And Nursery School | Community School | Outstanding | 3.10 KM |
Images
Nearby Streets
| Name | Average Price | Average Sqft | Distance |
|---|---|---|---|
| Barnes Close | £ 0 | 0 | 0.00 KM |
| Wisteria Drive | £ 441,667 | 0 | 0.00 KM |
| Croft Way | £ 0 | 0 | 0.00 KM |
| Granger Close | £ 0 | 0 | 0.00 KM |
| Briggs Mead | £ 0 | 0 | 0.00 KM |
Nearby Transport
| Name | NLC | TLC | Distance |
|---|---|---|---|
| Wymondham | 7383 | WMD | 3.35 KM |
| Spooner Row | 7379 | SPN | 8.20 KM |
Nearby Listings
| Address | Price | Type | Score | Distance |
|---|---|---|---|---|
| Poll Close, Wymondham, Norfolk | £ 325,000 | BUY | 7 / 10 | 0.00 KM |
| St Edmunds, Wymondham | £ 230,000 | BUY | 7 / 10 | 0.05 KM |
| St. Edmunds Court, Wymondham | £ 250,000 | BUY | 6 / 10 | 0.06 KM |
| Albini Way, Wymondham, Norfolk, NR18 | £ 375,000 | BUY | 7 / 10 | 0.07 KM |
| St. Edmunds Court, Wymondham | £ 210,000 | BUY | 7 / 10 | 0.08 KM |
Nearby Properties
| Address | Price | Distance |
|---|---|---|
| 21 Poll Close | £ 260,000 | 0.05 KM |
| 5 Poll Close | £ 168,000 | 0.05 KM |
| 17 Poll Close | £ 350,000 | 0.05 KM |
| 9 St Edmunds Court | £ 149,950 | 0.06 KM |
| 2 St Edmunds Court | £ 205,000 | 0.06 KM |