Adamsrill Road, Sydenham, London, SE26
By Robinson Jackson
£ 300,000
Reviews
3 out of 5 stars
Robinson Jackson says ..
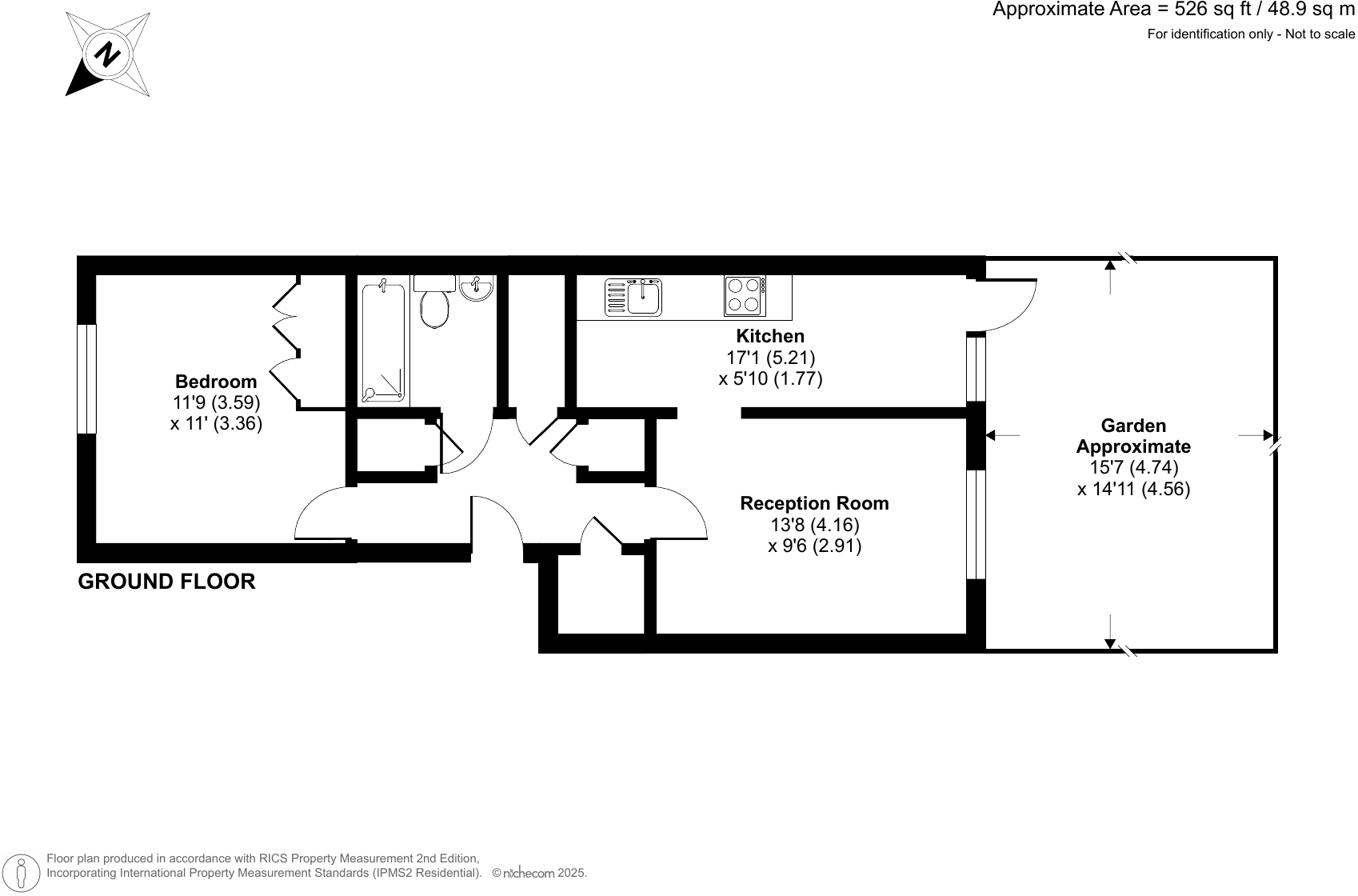
**** Guide Price £300,000-£325,000 **** Spacious and well presented ground floor purpose built flat with private garden. Benefitting from 13' lounge overlooking garden, modern kitchen and bathroom, direct access to private garden, double glazing and gas central heating and 1...
Property Oracle says ..
The property is a one-bedroom, one-bathroom flat located in Sydenham, South East London. The flat benefits from a private garden, a feature that is desirable in a London property. The images show the property to be in good condition, with a modern kitchen and bathroom. The interior is presented well and appears clean and well-maintained. The location is convenient, with Adamsrill Primary School being very close by (0.17km). Other schools with a “Good” or “Outstanding” Ofsted rating are also within a reasonable distance. Several Southeastern and London Overground train stations are also within walking distance, providing good transport links. The list price of £300,000 is significantly lower than the average price of £597,971 for the area. However, the average property size in the area is 963 sqft, considerably larger than this 526 sqft property. The average price per sqft in the area is £620, suggesting the list price may be reasonable considering the smaller size of the property. Further analysis of nearby properties on Adamsrill Road reveals prices ranging from £148,000 to £350,000, indicating some price variation on the street. The presence of a private garden adds value, although the plot size is not specified. The property’s condition appears to be good, which is a positive factor.
Therefore, we give this property 7 / 10. *Disclaimer: This is our option and does constitute a recommendation or financial advice. Do your own research. *
- Price
- 7
- Condition
- 8
- Location
- 8
- Land
- 7
- Bedrooms
- 1
- Bathrooms
- 1
- Sqft (est)
- 526.00
The heatmap indicates the level of crime in the area. The color of the heatmap indicates the crime severity and recency.
Metrics Year-on-Year
- Average area value
- 552,857.00 £Decreased by 5.99 %
- Est sale value
- 400,286.00 £Increased by 29.42 %
- Average area rental value
- 1,921.00 £/moIncreased by 1.64 %
- Est letting value
- 1,052.00 £/moIncreased by 100.00 %
- Est rental Yield
- 4.17 %Increased by 8.03 %
- Crime Rate
- 5.00 %Unchanged by 0.00 %
Agent Activity
Robinson Jackson created the listing.
Nearby Schools
| Name | Type | Ofsted | Distance |
|---|---|---|---|
| Adamsrill Primary School | Community School | Good | 0.17 KM |
| Brent Knoll School | Foundation Special School | Good | 0.17 KM |
| Greenvale School | Community Special School | Outstanding | 0.18 KM |
| St Michael'S Church Of England Primary School | Voluntary Aided School | Good | 0.30 KM |
| Haseltine Primary School | Community School | Good | 0.46 KM |
Images
Nearby Streets
| Name | Average Price | Average Sqft | Distance |
|---|---|---|---|
| Carters Lane | £ 0 | 0 | 0.00 KM |
| Thomas Dean Road | £ 625,000 | 0 | 0.00 KM |
| Broseley Grove | £ 0 | 0 | 0.00 KM |
| Hatcham Street | £ 380,163 | 0 | 0.00 KM |
| Worsley Bridge Road | £ 403,571 | 0 | 0.00 KM |
Nearby Transport
| Name | NLC | TLC | Distance |
|---|---|---|---|
| Lower Sydenham | 5053 | LSY | 0.96 KM |
| New Beckenham | 5058 | NBC | 1.62 KM |
| Sydenham | 5437 | SYD | 1.63 KM |
| Forest Hill | 5362 | FOH | 1.76 KM |
| Penge East | 5072 | PNE | 2.02 KM |
Nearby Listings
| Address | Price | Type | Score | Distance |
|---|---|---|---|---|
| Paxton Court, 164 Adamsrill Road, London, SE26 | £ 280,000 | BUY | 7 / 10 | 0.00 KM |
| Adamsrill Road, London | £ 500,000 | BUY | 5 / 10 | 0.06 KM |
| Adamsrill Road, London, SE26 | £ 365,000 | BUY | 6 / 10 | 0.08 KM |
| Perry Rise, London, SE23 | £ 675,000 | BUY | 6 / 10 | 0.14 KM |
| Dillwyn Close, Sydenham, London | £ 500,000 | BUY | Unknown | 0.14 KM |
Nearby Properties
| Address | Price | Distance |
|---|---|---|
| 156 Adamsrill Road | £ 350,000 | 0.06 KM |
| 144 Adamsrill Road | £ 227,300 | 0.06 KM |
| 150 Adamsrill Road | £ 188,500 | 0.06 KM |
| 142 Adamsrill Road | £ 340,000 | 0.06 KM |
| 138 Adamsrill Road | £ 148,000 | 0.06 KM |