Goodway House, Copps Road, Leamington Spa
By Handles Property
£ 399,500
Reviews
4 out of 5 stars
Handles Property says ..
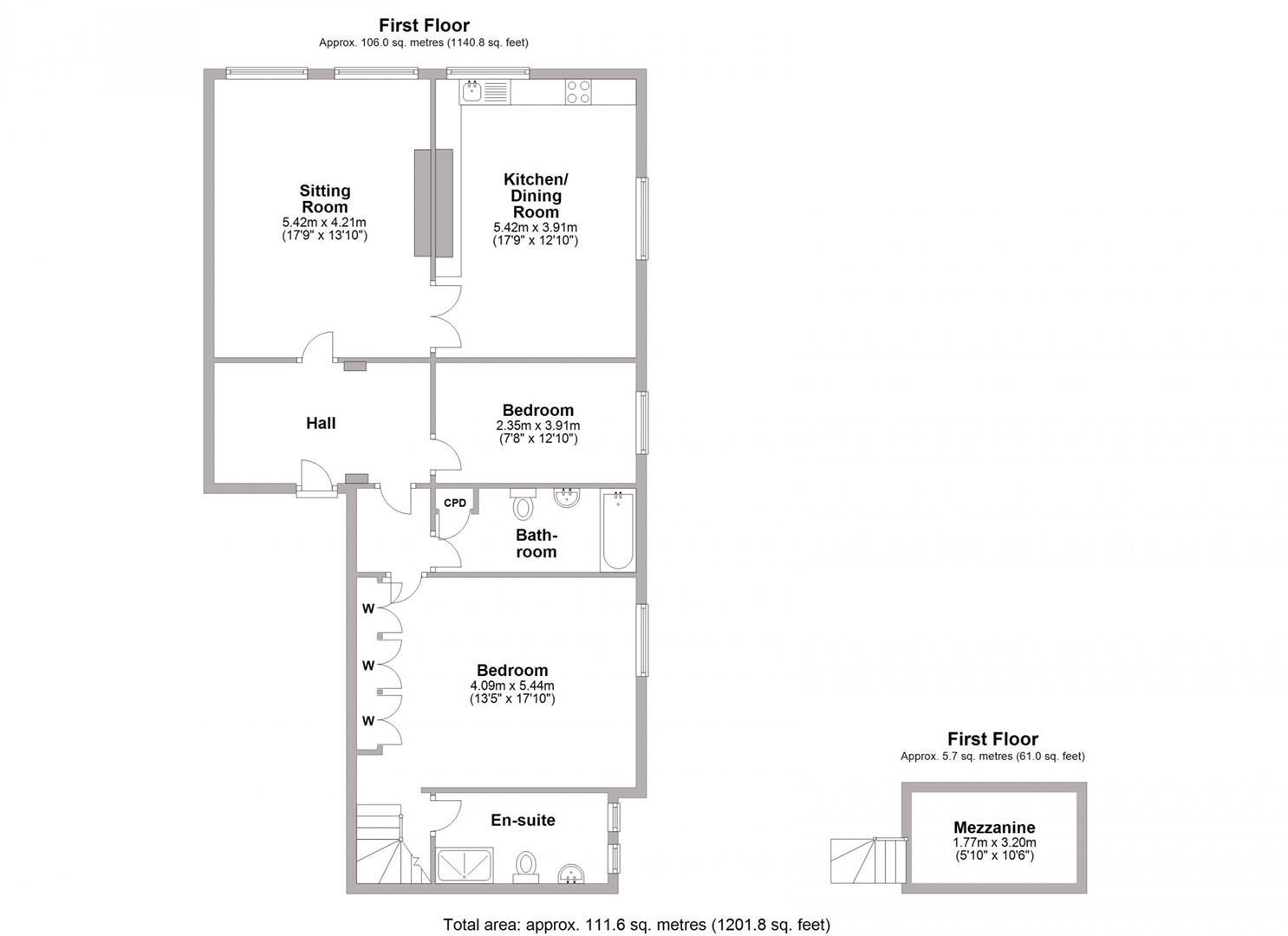
Good Way House Royal Leamington Spa An Iconic Address. A Rare Opportunity. Overview A truly spectacular and generously proportioned apartment set within Good Way House, arguably Leamington Spa’s most distinguished listed building. This remarkable residence offers a rare blend...
Property Oracle says ..
This property is a 2 bedroom, 2 bathroom apartment located in Leamington Spa, Warwickshire. The apartment is part of a larger building, which appears to be a converted house, and benefits from allocated parking. The property has been recently renovated to a high standard, with a modern kitchen and bathrooms. The living spaces are well-proportioned and benefit from plenty of natural light. The property is situated close to Leamington Spa train station, providing easy access to major cities. There are also a number of schools and amenities within a short distance. The average price for a property in the area is £361,341, with an average price per square foot of £345. This property is listed at £399,500, which is slightly above the average price. However, given the size of the property (873.92 sqft) and its modern condition, the asking price appears reasonable. The property also benefits from a plot size of 1,201.25 sqft, which is larger than the average plot size in the area. The property’s location is excellent, being close to transport links, schools and amenities. The condition of the property is also very good, having been recently renovated. The land size is relatively small for the area, but still provides some outdoor space. Considering all of these factors, the price seems reasonable.
Therefore, we give this property 8 / 10. *Disclaimer: This is our option and does constitute a recommendation or financial advice. Do your own research. *
- Price
- 8
- Condition
- 9
- Location
- 9
- Land
- 6
- Bedrooms
- 2
- Bathrooms
- 2
- Sqft (est)
- 873.92
- Lot (est)
- 1,201.25
The heatmap indicates the level of crime in the area. The color of the heatmap indicates the crime severity and recency.
Metrics Year-on-Year
- Average area value
- 323,778.00 £Decreased by 12.49 %
- Est sale value
- 325,098.24 £Decreased by 6.06 %
- Average area rental value
- 1,273.00 £/moDecreased by 6.53 %
- Est letting value
- 873.92 £/moUnchanged by 0.00 %
- Est rental Yield
- 4.72 %Increased by 6.79 %
- Crime Rate
- 1.00 %Unchanged by 0.00 %
Agent Activity
Handles Property created the listing.
Nearby Schools
| Name | Type | Ofsted | Distance |
|---|---|---|---|
| Warwickshire College Group | Further Education | Good | 0.11 KM |
| Trinity Catholic School | Academy Converter | 0.86 KM | |
| Brookhurst Primary School | Community School | Good | 0.91 KM |
| Milverton Primary School | Community School | Good | 1.15 KM |
| St Peter'S Catholic Primary School | Voluntary Aided School | Good | 1.37 KM |
Images
Nearby Streets
| Name | Average Price | Average Sqft | Distance |
|---|---|---|---|
| Oswald Road | £ 0 | 0 | 0.00 KM |
| Guy's Cliffe Road | £ 0 | 0 | 0.00 KM |
| Cliffe Road | £ 0 | 0 | 0.00 KM |
| Europa Way | £ 0 | 0 | 0.00 KM |
| Riverside | £ 189,950 | 0 | 0.00 KM |
Nearby Transport
| Name | NLC | TLC | Distance |
|---|---|---|---|
| Leamington Spa | 4597 | LMS | 1.58 KM |
| Warwick | 4600 | WRW | 3.54 KM |
| Kenilworth | 7985 | KNW | 6.54 KM |
| Warwick Parkway | 8530 | WRP | 6.88 KM |
Nearby Listings
| Address | Price | Type | Score | Distance |
|---|---|---|---|---|
| Goodway House, Copps Road, Leamington Spa | £ 399,500 | BUY | 8 / 10 | 0.00 KM |
| Warwick New Road, Leamington Spa | £ 400,000 | BUY | 6 / 10 | 0.11 KM |
| Copps Road, Leamington Spa, Warwickshire, CV32 | £ 385,000 | BUY | Unknown | 0.12 KM |
| Beech House, Lucas Court, Leamington Spa | £ 300,000 | BUY | 6 / 10 | 0.16 KM |
| Lucas Court, Leamington Spa, Warwickshire, CV32 | £ 275,000 | BUY | 5 / 10 | 0.17 KM |
Nearby Properties
| Address | Price | Distance |
|---|---|---|
| 2 Copps Road | £ 297,000 | 0.14 KM |
| 12 Copps Road | £ 450,000 | 0.14 KM |
| 19 Copps Road | £ 195,000 | 0.16 KM |
| 37 Copps Road | £ 109,500 | 0.16 KM |
| 15 Copps Road | £ 148,000 | 0.16 KM |