Goldcrest Road, Allerton Bywater
By Tudor Sales & Lettings
£ 220,000
Reviews
3 out of 5 stars
Tudor Sales & Lettings says ..
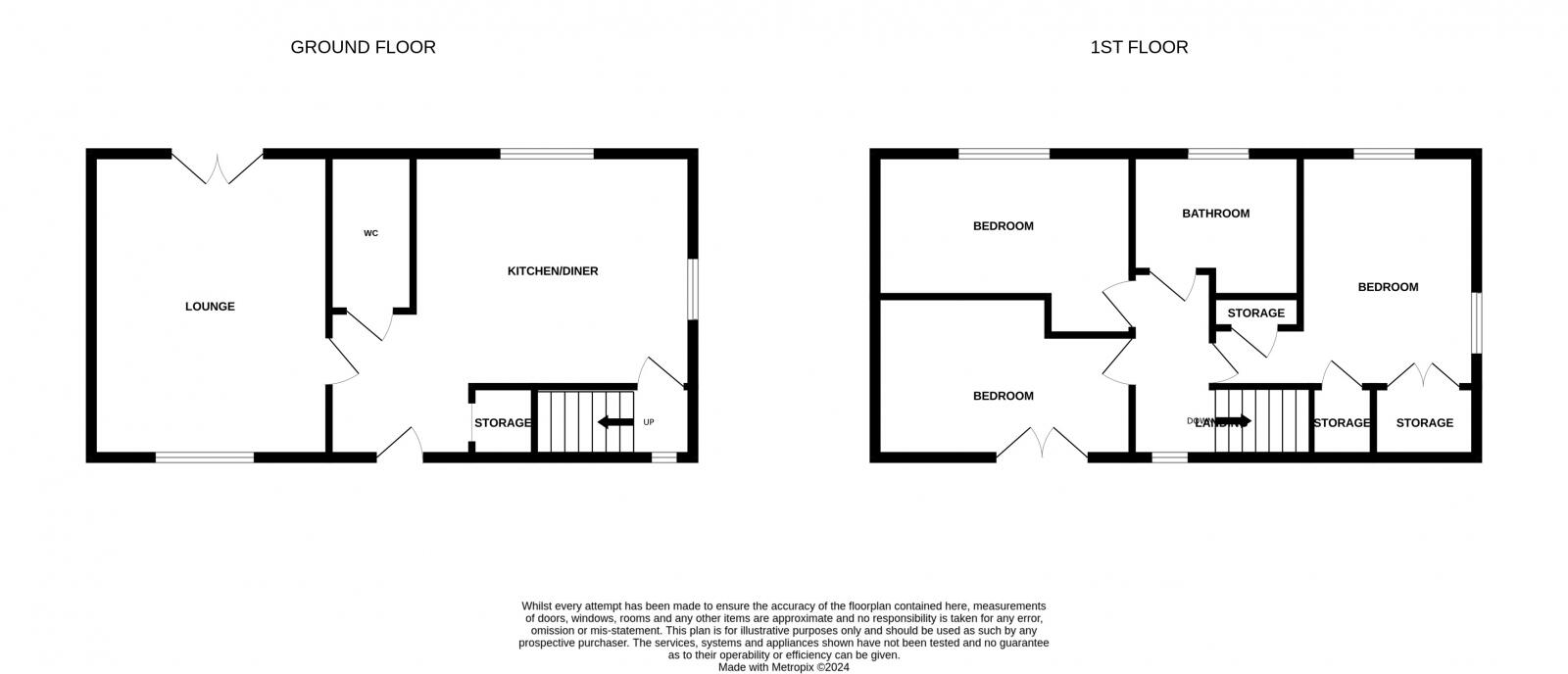
Brought to the market for sale is this three bedroom end townhouse, located on Goldcrest Road in Allerton Bywater. Modern throughout, the internal layout comprises in brief: - ground floor: - entrance hall, kitchen diner
Property Oracle says ..
This three-bedroom, two-bathroom property located in Allerton Bywater, Leeds, presents itself as a well-maintained and attractively presented home. The interior appears modern and recently updated, with a stylish and contemporary aesthetic. Images reveal a well-equipped kitchen-diner and a spacious living area. The bedrooms are presented neatly, and the bathrooms are modern. The property also offers a rear garden which is primarily a decked space, with artificial turf, but still offering a functional area for outdoor relaxation. The location in Allerton Bywater provides a convenient balance between access to amenities and a quieter residential setting. The proximity to both Leeds and Castleford offers a selection of amenities and transportation links. However, the exact size of the property is not specified in the provided details, which is a notable absence of relevant information. The provided nearby property listings display a wide range of prices, which could indicate some variability within the local market. Therefore, while the property itself appears to be in good condition and well-presented, a conclusive judgment on the value and reasonableness of the list price could be strengthened by clearer information on property size and more precise comparable pricing data.
Therefore, we give this property 7 / 10. *Disclaimer: This is our option and does constitute a recommendation or financial advice. Do your own research. *
- Price
- 7
- Condition
- 9
- Location
- 7
- Land
- 6
- Bedrooms
- 3
- Bathrooms
- 2
- Sqft (est)
- 700.00
The heatmap indicates the level of crime in the area. The color of the heatmap indicates the crime severity and recency.
Metrics Year-on-Year
- Average area value
- 488,600.00 £Decreased by 6.01 %
- Est sale value
- 440,300.00 £Increased by 9.01 %
- Average area rental value
- 1,814.00 £/moIncreased by 6.02 %
- Est letting value
- 1,400.00 £/moIncreased by 100.00 %
- Est rental Yield
- 4.46 %Increased by 12.91 %
- Crime Rate
- 28.00 %Unchanged by 0.00 %
Agent Activity
Tudor Sales & Lettings marked this listing as sold.
Tudor Sales & Lettings created the listing.
Nearby Schools
| Name | Type | Ofsted | Distance |
|---|---|---|---|
| Allerton Bywater Primary School | Academy Converter | Requires improvement | 0.59 KM |
| Brigshaw High School | Academy Converter | Good | 2.30 KM |
| Lady Elizabeth Hastings Cofe Primary School | Voluntary Aided School | Good | 2.35 KM |
| Castleford Three Lane Ends Academy | Academy Converter | Requires improvement | 2.53 KM |
| Kippax Ash Tree Primary School | Academy Converter | Requires improvement | 2.71 KM |
Images
Nearby Streets
| Name | Average Price | Average Sqft | Distance |
|---|---|---|---|
| Victoria Street | £ 0 | 0 | 0.00 KM |
| Colliery Close | £ 233,333 | 0 | 0.00 KM |
| Bramwell Court | £ 0 | 0 | 0.00 KM |
| Westfield Avenue | £ 172,500 | 0 | 0.00 KM |
| Aire View | £ 352,500 | 0 | 0.00 KM |
Nearby Transport
| Name | NLC | TLC | Distance |
|---|---|---|---|
| Castleford | 8359 | CFD | 2.57 KM |
| Glasshoughton | 8360 | GLH | 4.72 KM |
| East Garforth | 8472 | EGF | 5.29 KM |
| Garforth | 8474 | GRF | 6.07 KM |
| Micklefield | 8477 | MIK | 6.47 KM |
Nearby Listings
| Address | Price | Type | Score | Distance |
|---|---|---|---|---|
| Gadwall Drive, Allerton Bywater, Castleford, WF10 2GA | £ 250,000 | BUY | 6 / 10 | 0.09 KM |
| Gadwall Drive, Allerton Bywater | £ 250,000 | BUY | 6 / 10 | 0.09 KM |
| Gadwall Drive, Allerton Bywater, CASTLEFORD | £ 170,000 | BUY | 6 / 10 | 0.09 KM |
| Gadwall Drive, Allerton Bywater, Castleford, West Yorkshire, WF10 | £ 250,000 | BUY | 8 / 10 | 0.11 KM |
| Allerton Bywater, Castleford, WF10 | £ 260,000 | BUY | Unknown | 0.11 KM |
Nearby Properties
| Address | Price | Distance |
|---|---|---|
| 10 Goldcrest Road | £ 144,000 | 0.01 KM |
| 19 Goldcrest Road | £ 275,000 | 0.01 KM |
| 16 Goldcrest Road | £ 169,995 | 0.01 KM |
| 8 Goldcrest Road | £ 185,000 | 0.01 KM |
| 14 Goldcrest Road | £ 268,000 | 0.01 KM |