Belvedere Walk, Haywards Heath, RH16
By Mansell McTaggart
£ 390,000
Reviews
3 out of 5 stars
Mansell McTaggart says ..
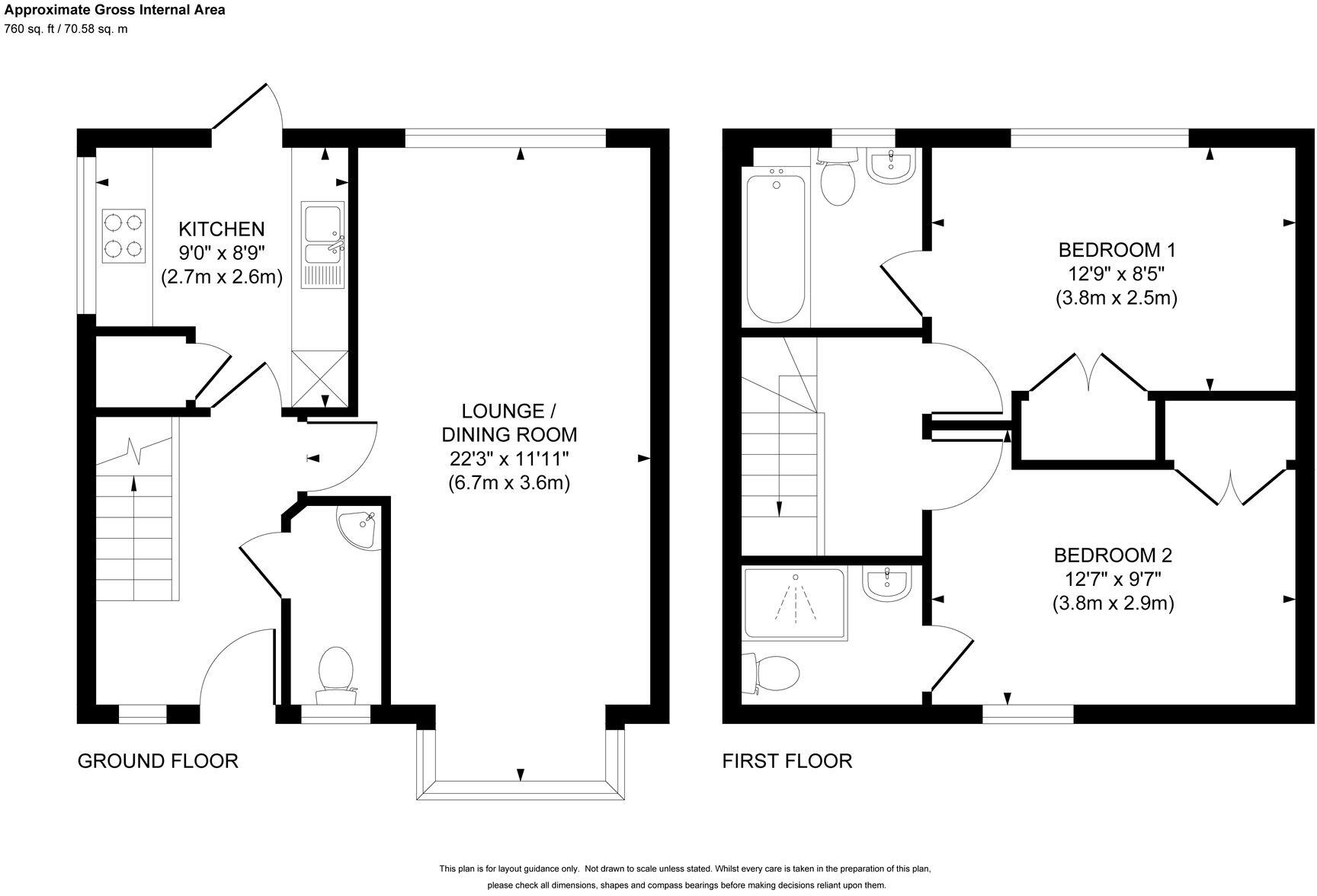
GUIDE PRICE … £390,000-£400,000 … FREEHOLD PLEASE WATCH THE VIDEO BEFORE BOOKING AN APPOINTMENT A spacious 2 double bedroom, 2 bathroom terraced house quietly located along this pretty pedestrian walkway in the desirable Upper Village area of Bolnore within an easy walk of the town centre, the ra...
Property Oracle says ..
This two-bedroom, two-bathroom property located on Belvedere Walk in Haywards Heath presents a potentially appealing opportunity for buyers. The property is situated in a desirable area with good access to local schools and transportation links, although further information on the direct proximity to shops and other amenities would provide a more complete picture. The provided photographs reveal a reasonably well-maintained property with a clean, functional interior. However, some updates to decor or fixtures could enhance the overall appeal. The property’s garden, while pleasant, does not appear excessively spacious. The price of £390,000 appears largely competitive with other similar properties in the surrounding area. The lack of precise plot size information and detailed comparable sales data, prevents a more definitive evaluation. A thorough survey of the property, including a professional assessment of any potential maintenance issues or needed renovations is strongly recommended before purchase. Potential buyers should conduct thorough due diligence to ensure this property aligns with their needs and expectations.
Therefore, we give this property 6 / 10. *Disclaimer: This is our option and does constitute a recommendation or financial advice. Do your own research. *
- Price
- 7
- Condition
- 6
- Location
- 7
- Land
- 4
- Bedrooms
- 2
- Bathrooms
- 2
- Sqft (est)
- 759.72
The heatmap indicates the level of crime in the area. The color of the heatmap indicates the crime severity and recency.
Metrics Year-on-Year
- Average area value
- 395,542.00 £Decreased by 7.24 %
- Est sale value
- 313,004.64 £Increased by 23.72 %
- Average area rental value
- 1,529.00 £/moIncreased by 9.14 %
- Est letting value
- 759.72 £/moUnchanged by 0.00 %
- Est rental Yield
- 4.64 %Increased by 17.77 %
- Crime Rate
- 10.00 %Unchanged by 0.00 %
Agent Activity
Mansell McTaggart marked this listing as sold.
Mansell McTaggart created the listing.
Nearby Schools
| Name | Type | Ofsted | Distance |
|---|---|---|---|
| Bolnore Village Primary School | Foundation School | Good | 0.39 KM |
| Central Education Ltd | Other Independent Special School | Requires improvement | 1.78 KM |
| St Joseph'S Catholic Primary School | Academy Converter | 2.04 KM | |
| Warden Park Secondary Academy | Academy Converter | Good | 2.08 KM |
| Harlands Primary School | Academy Converter | Good | 2.13 KM |
Images
Nearby Streets
| Name | Average Price | Average Sqft | Distance |
|---|---|---|---|
| The Paddocks | £ 0 | 0 | 0.00 KM |
| Beechcroft | £ 600,000 | 0 | 0.00 KM |
| Traunstein Way | £ 0 | 0 | 0.00 KM |
| Oakwood Road | £ 0 | 0 | 0.00 KM |
| Bankside | £ 0 | 0 | 0.00 KM |
Nearby Transport
| Name | NLC | TLC | Distance |
|---|---|---|---|
| Haywards Heath | 5490 | HHE | 1.97 KM |
| Wivelsfield | 5341 | WVF | 3.27 KM |
| Burgess Hill | 5483 | BUG | 4.55 KM |
| Balcombe | 5492 | BAB | 7.21 KM |
| Hassocks | 5489 | HSK | 8.27 KM |
Nearby Listings
| Address | Price | Type | Score | Distance |
|---|---|---|---|---|
| Belvedere Walk, Haywards Heath, RH16 | £ 390,000 | BUY | 6 / 10 | 0.00 KM |
| Parkfield Way, Haywards Heath, RH16 | £ 500,000 | BUY | 8 / 10 | 0.05 KM |
| The Paddocks, Bolnore Village, Haywards Heath, West Sussex, RH16 | £ 450,000 | BUY | 7 / 10 | 0.06 KM |
| The Paddocks, Haywards Heath, RH16 | £ 400,000 | BUY | 6 / 10 | 0.06 KM |
| Trubwick Avenue, Haywards Heath, RH16 | £ 775,000 | BUY | 6 / 10 | 0.17 KM |
Nearby Properties
| Address | Price | Distance |
|---|---|---|
| 7 Belvedere Walk | £ 513,500 | 0.01 KM |
| 9 Belvedere Walk | £ 306,000 | 0.01 KM |
| 1 Belvedere Walk | £ 211,000 | 0.01 KM |
| 5 Belvedere Walk | £ 350,000 | 0.01 KM |
| 10 Belvedere Walk | £ 230,000 | 0.01 KM |