Church Lane, Merton Park, London, SW19
By Hawes & Co
£ 730,000
Reviews
3 out of 5 stars
Hawes & Co says ..
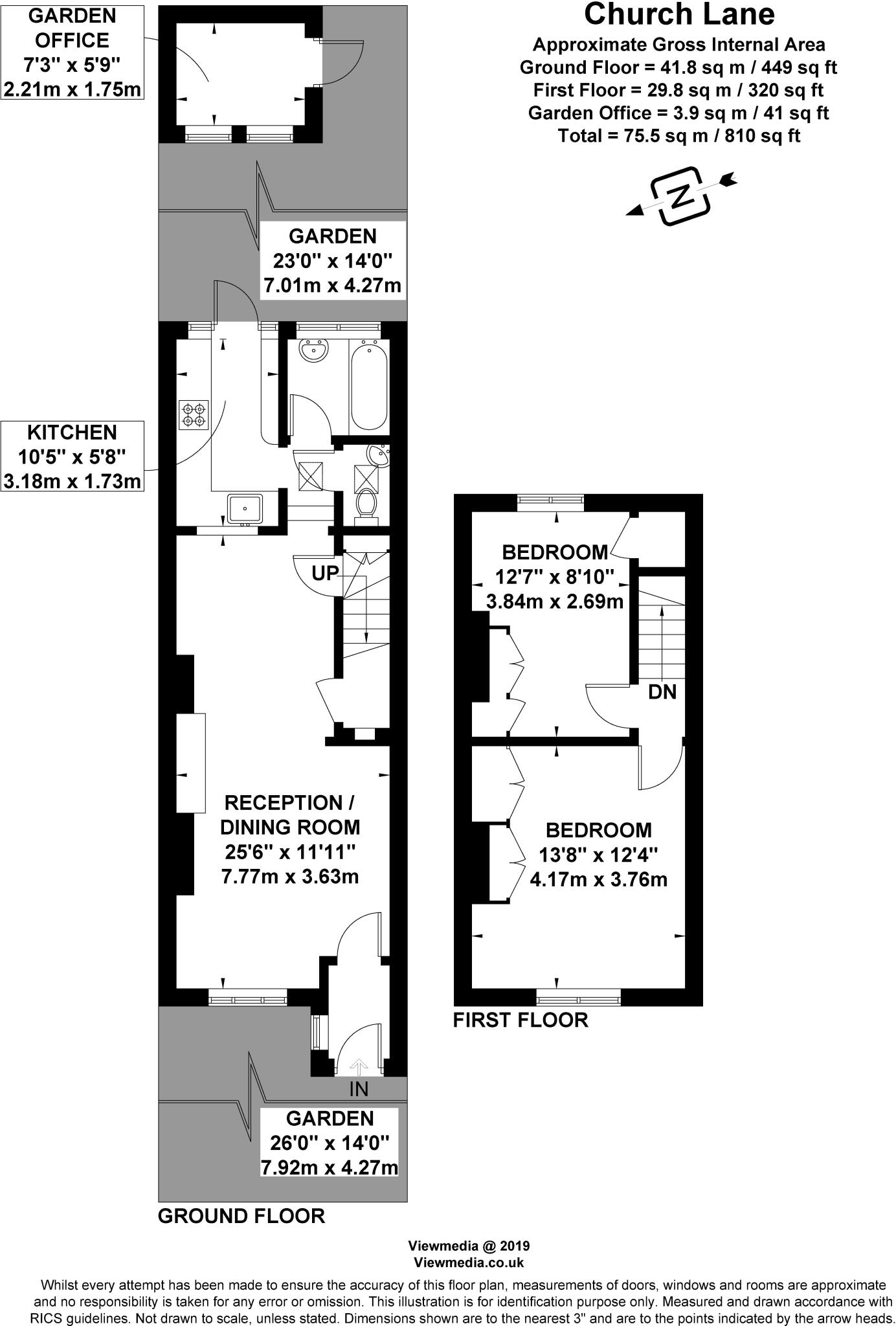
A rare chance to purchase this superb Henry Quartermain arts and crafts two bedroom cottage situated in this most desirable cul-de-sac within the John Innes Merton Park Conservation Area. Wimbledon, Raynes Park and Morden Town Centres are within easy reach and the area is well served by several p...
Property Oracle says ..
This is a well-presented terraced property in the sought-after Merton Park area. It benefits from proximity to excellent schools and good transport links. The property has been modernised, with a contemporary kitchen and bathroom, while retaining some of its original character. The garden is a valuable asset, providing private outdoor space. While the asking price is above the local average, the condition and location of the property make it an attractive proposition.
Therefore, we give this property 7 / 10. *Disclaimer: This is our option and does constitute a recommendation or financial advice. Do your own research. *
- Price
- 7
- Condition
- 8
- Location
- 8
- Land
- 6
- Bedrooms
- 2
- Bathrooms
- 1
- Sqft (est)
- 812.68
The heatmap indicates the level of crime in the area. The color of the heatmap indicates the crime severity and recency.
Metrics Year-on-Year
- Average area value
- 550,612.00 £Decreased by 24.97 %
- Est sale value
- 545,308.28 £Increased by 2.44 %
- Average area rental value
- 3,214.00 £/moIncreased by 29.81 %
- Est letting value
- 2,438.04 £/moIncreased by 50.00 %
- Est rental Yield
- 7.00 %Increased by 72.84 %
- Crime Rate
- 0.00 %
Agent Activity
Hawes & Co created the listing.
Nearby Schools
| Name | Type | Ofsted | Distance |
|---|---|---|---|
| Merton Park Primary School | Community School | Outstanding | 0.08 KM |
| Rutlish School | Voluntary Controlled School | Outstanding | 0.74 KM |
| Poplar Primary School | Community School | Good | 0.80 KM |
| Pelham Primary School | Community School | Good | 0.85 KM |
| St Mary'S Catholic Primary School | Voluntary Aided School | Outstanding | 0.89 KM |
Images
Nearby Streets
| Name | Average Price | Average Sqft | Distance |
|---|---|---|---|
| Melrose Road | £ 1,250,000 | 0 | 0.00 KM |
| Langley Road | £ 878,738 | 0 | 0.00 KM |
| Harcourt Road | £ 975,000 | 0 | 0.00 KM |
| Covey Close | £ 0 | 0 | 0.00 KM |
| Derby Road | £ 0 | 0 | 0.00 KM |
Nearby Transport
| Name | NLC | TLC | Distance |
|---|---|---|---|
| South Merton | 5292 | SMO | 0.86 KM |
| Wimbledon | 5578 | WIM | 1.40 KM |
| Wimbledon Chase | 5612 | WBO | 1.40 KM |
| Morden South | 5291 | MDS | 1.53 KM |
| Haydons Road | 5289 | HYR | 2.23 KM |
Nearby Listings
| Address | Price | Type | Score | Distance |
|---|---|---|---|---|
| Church Lane, Merton Park, London, SW19 | £ 730,000 | BUY | 7 / 10 | 0.00 KM |
| Church Lane, London | £ 925,000 | BUY | Unknown | 0.02 KM |
| Church Lane, London | £ 825,000 | BUY | Unknown | 0.04 KM |
| Church Lane, Wimbledon | £ 775,000 | BUY | 7 / 10 | 0.04 KM |
| Church Lane, Wimbledon | £ 730,000 | BUY | 7 / 10 | 0.04 KM |
Nearby Properties
| Address | Price | Distance |
|---|---|---|
| 53 Church Lane | £ 307,000 | 0.01 KM |
| 45 Church Lane | £ 499,999 | 0.01 KM |
| 61 Church Lane | £ 950,000 | 0.01 KM |
| 47 Church Lane | £ 410,000 | 0.01 KM |
| 49 Church Lane | £ 620,000 | 0.01 KM |