AL
Worcester Road, Upton Warren, Bromsgrove
By Allan Morris
£ 500,000
Reviews
3 out of 5 stars
Allan Morris says ..
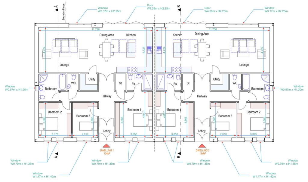
"DEVELOPMENT OPPORTUNITY - PLANNING PERMISSION GRANTED TO CONVERT A DETACHED COMMERCIAL WORKSHOP INTO TWO SINGLE STOREY RESIDENTIAL DWELLINGS IN 2.11 ACRES" This freehold workshop/barn has been granted planning permission for conversion into two single storey attached residential dwelli...
Property Oracle says ..
Therefore, we give this property 7 / 10. *Disclaimer: This is our option and does constitute a recommendation or financial advice. Do your own research. *
- Price
- 7
- Condition
- 7
- Location
- 7
- Land
- 8
- Bedrooms
- 3
- Bathrooms
- 2
- Sqft (est)
- 1,442.36
The heatmap indicates the level of crime in the area. The color of the heatmap indicates the crime severity and recency.
Metrics Year-on-Year
- Average area value
- 283,333.00 £Decreased by 37.45 %
- Est sale value
- 478,863.52 £Increased by 2.15 %
- Average area rental value
- 1,195.00 £/moDecreased by 32.68 %
- Est letting value
- 1,442.36 £/moUnchanged by 0.00 %
- Est rental Yield
- 5.06 %Increased by 7.66 %
- Crime Rate
- 0.00 %
from 452,952.00 £
from 468,767.00 £
from 1,775.00 £/mo
from 1,442.36 £/mo
from 4.70 %
from 0.00 %
Agent Activity
Allan Morris created the listing.
Nearby Schools
| Name | Type | Ofsted | Distance |
|---|---|---|---|
| Stoke Prior First School | Community School | Outstanding | 0.78 KM |
| Millfields First School | Community School | Good | 2.99 KM |
| St Peter'S Catholic First School | Academy Converter | Good | 3.12 KM |
| Wychbold First And Nursery School | Academy Converter | 3.23 KM | |
| West Wood Children'S Centre | Children's Centre Linked Site | 3.23 KM |
Images
Nearby Streets
| Name | Average Price | Average Sqft | Distance |
|---|---|---|---|
| Verbena Close | £ 0 | 0 | 0.00 KM |
| Redditch Road | £ 453,333 | 0 | 0.00 KM |
Nearby Transport
| Name | NLC | TLC | Distance |
|---|---|---|---|
| Bromsgrove | 4715 | BMV | 5.04 KM |
| Droitwich Spa | 4878 | DTW | 8.67 KM |
Nearby Listings
| Address | Price | Type | Score | Distance |
|---|---|---|---|---|
| Worcester Road, Worcester Road, Upton Warren | £ 575,000 | BUY | 8 / 10 | 0.00 KM |
| Worcester Road, Upton Warren, Bromsgrove | £ 500,000 | BUY | 7 / 10 | 0.00 KM |
| Shaw Lane, Stoke Prior, B60 | £ 235,000 | BUY | 6 / 10 | 0.35 KM |
| Shaw Lane, Stoke Prior, Bromsgrove, Worcestershire, B60 | £ 250,000 | BUY | 7 / 10 | 0.41 KM |
| Shaw Lane, Stoke Prior, Bromsgrove, Worcestershire, B60 | £ 425,000 | BUY | 6 / 10 | 0.55 KM |
Nearby Properties
| Address | Price | Distance |
|---|---|---|
| 24 Shaw Lane | £ 180,000 | 0.41 KM |
| 4 Shaw Lane | £ 147,500 | 0.41 KM |
| 14 Shaw Lane | £ 181,000 | 0.41 KM |
| 22 Shaw Lane | £ 132,500 | 0.41 KM |
| 46 Shaw Lane | £ 185,000 | 0.41 KM |