Flats 1 - 66, 1 BANISTER ROAD, Southampton, SO15
By McCarthy & Stone - South East
£ 160,000
Reviews
3 out of 5 stars
McCarthy & Stone - South East says ..
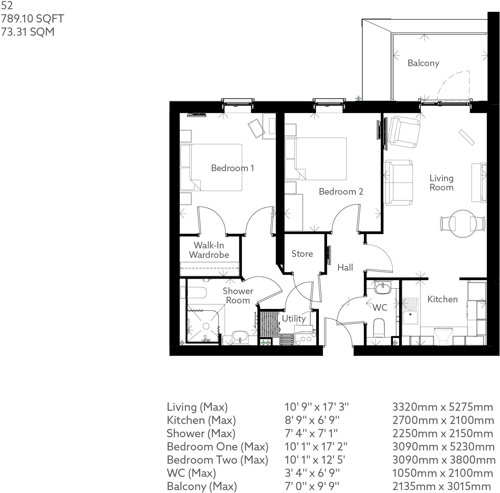
Apartment 52 is a beautiful two-bedroom apartment at our stunning May Tree Place development in Southampton.
Property Oracle says ..
This property is a 2-bedroom apartment located in Southampton, Hampshire. The listing price is significantly below the average price for the area, which is £271,752. However, the average price per square foot is unavailable due to missing square footage data for this property and comparable listings. The property benefits from being close to several amenities, including Southampton Central train station (1.52km), and well-regarded schools such as St Anne’s Catholic School (0.36km). The apartment appears to be in excellent condition, with modern fixtures and fittings. The development includes communal gardens and shared facilities, which is a positive aspect for potential buyers. The limited plot size of 789.10 sqft should be considered.
Therefore, we give this property 7 / 10. *Disclaimer: This is our option and does constitute a recommendation or financial advice. Do your own research. *
- Price
- 7
- Condition
- 10
- Location
- 8
- Land
- 3
- Bedrooms
- 2
- Bathrooms
- 0
- Lot (est)
- 789.10
The heatmap indicates the level of crime in the area. The color of the heatmap indicates the crime severity and recency.
Metrics Year-on-Year
- Average area value
- 345,413.00 £Increased by 43.37 %
- Average area rental value
- 1,031.00 £/moDecreased by 7.37 %
- Est rental Yield
- 3.58 %Decreased by 35.38 %
- Crime Rate
- 3.00 %Unchanged by 0.00 %
Agent Activity
McCarthy & Stone - South East created the listing.
Nearby Schools
| Name | Type | Ofsted | Distance |
|---|---|---|---|
| Portswood Sure Start Childrens Centre | Children's Centre | 0.31 KM | |
| St Anne'S Catholic School | Academy Converter | Outstanding | 0.36 KM |
| Banister Primary School | Foundation School | Good | 0.53 KM |
| Bevois Town Primary School | Foundation School | Good | 0.68 KM |
| The Gregg Preparatory School | Other Independent School | 0.89 KM |
Images
Nearby Streets
| Name | Average Price | Average Sqft | Distance |
|---|---|---|---|
| Grosvenor Square | £ 0 | 0 | 0.00 KM |
| Leroux Close | £ 0 | 0 | 0.00 KM |
| Commercial Road | £ 0 | 0 | 0.00 KM |
| Raven Road | £ 0 | 0 | 0.00 KM |
| Morris Road | £ 0 | 0 | 0.00 KM |
Nearby Transport
| Name | NLC | TLC | Distance |
|---|---|---|---|
| Southampton Central | 5932 | SOU | 1.52 KM |
| St Denys | 5914 | SDN | 1.95 KM |
| Bitterne | 5945 | BTE | 3.08 KM |
| Millbrook (Hants) | 5909 | MBK | 3.29 KM |
| Woolston | 5925 | WLS | 3.73 KM |
Nearby Listings
| Address | Price | Type | Score | Distance |
|---|---|---|---|---|
| Flats 1 - 66, 1 BANISTER ROAD, Southampton, SO15 | £ 160,000 | BUY | 7 / 10 | 0.00 KM |
| Flats 1 - 66, 1 BANISTER ROAD, Southampton, SO15 | £ 250,000 | BUY | Unknown | 0.00 KM |
| Flats 1 - 66, 1 BANISTER ROAD, Southampton, SO15 | £ 390,000 | BUY | 6 / 10 | 0.00 KM |
| Flats 1 - 66, 1 BANISTER ROAD, Southampton, SO15 | £ 330,000 | BUY | 6 / 10 | 0.00 KM |
| Flats 1 - 66, 1 BANISTER ROAD, Southampton, SO15 | £ 127,500 | BUY | 7 / 10 | 0.00 KM |
Nearby Properties
| Address | Price | Distance |
|---|---|---|
| 6 Brighton Road | £ 390,000 | 0.06 KM |
| 7 Brighton Road | £ 250,000 | 0.07 KM |
| 5 Brighton Road | £ 300,000 | 0.07 KM |
| 4 Brighton Road | £ 110,000 | 0.07 KM |
| 12a Brighton Road | £ 205,000 | 0.09 KM |