Bletchington Court, Lower Park Road, Belvedere, Kent, DA17
By The Property Cloud
£ 250,000
Reviews
3 out of 5 stars
The Property Cloud says ..
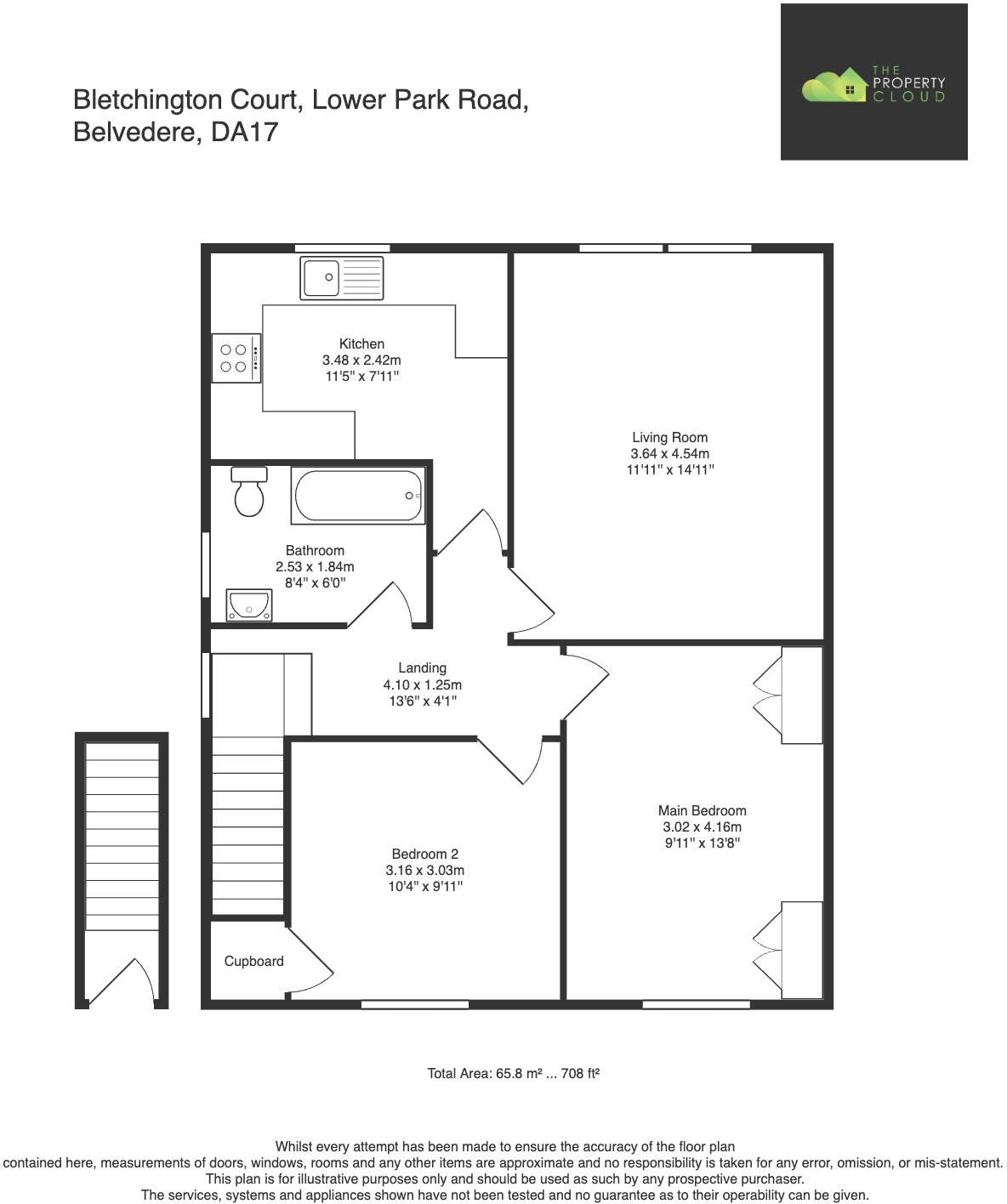
GUIDE PRICE £250,000 - £260,000. Looking for a chain free home nearby to train links with parking and scope to add value? This two bedroom first floor maisonette is a short walk to Belvedere Station, just one stop to Abbey Wood for the Elizabeth Line, and comes with a garage en bloc plus access to c
Property Oracle says ..
This two-bedroom maisonette in Belvedere, Kent, offers a blend of accessibility and potential. Its location provides convenient access to transportation and nearby schools, making it suitable for families or commuters. While the property is in fair condition, it presents an opportunity for modernisation to enhance its appeal and value. The presence of a garden is a notable advantage. Considering the list price in relation to the area’s average property values, this property could be a worthwhile investment for those willing to undertake some renovations.
Therefore, we give this property 6 / 10. *Disclaimer: This is our option and does constitute a recommendation or financial advice. Do your own research. *
- Price
- 8
- Condition
- 5
- Location
- 7
- Land
- 7
- Bedrooms
- 2
- Bathrooms
- 1
The heatmap indicates the level of crime in the area. The color of the heatmap indicates the crime severity and recency.
Metrics Year-on-Year
- Average area value
- 395,833.00 £Increased by 7.53 %
- Average area rental value
- 1,588.00 £/moDecreased by 8.68 %
- Est rental Yield
- 4.81 %Decreased by 15.17 %
- Crime Rate
- 7.00 %Unchanged by 0.00 %
Agent Activity
The Property Cloud created the listing.
Nearby Schools
| Name | Type | Ofsted | Distance |
|---|---|---|---|
| Cornerstone School | Free Schools Special | 0.47 KM | |
| Belvedere Junior School | Academy Sponsor Led | Good | 0.64 KM |
| Lessness Heath Primary School | Academy Sponsor Led | Good | 0.74 KM |
| Belvedere Infant School | Academy Converter | 0.79 KM | |
| St Augustine Of Canterbury Cofe Primary School | Academy Sponsor Led | Good | 0.90 KM |
Images
Nearby Streets
| Name | Average Price | Average Sqft | Distance |
|---|---|---|---|
| Orchard Road | £ 175,000 | 0 | 0.00 KM |
| Brook Street | £ 230,000 | 0 | 0.00 KM |
| Fox House Road | £ 0 | 0 | 0.00 KM |
| Chapman Road | £ 0 | 0 | 0.00 KM |
| Baltimore Close | £ 0 | 0 | 0.00 KM |
Nearby Transport
| Name | NLC | TLC | Distance |
|---|---|---|---|
| Belvedere | 5092 | BVD | 0.33 KM |
| Erith | 5104 | ERH | 2.72 KM |
| Barnehurst | 5089 | BNH | 2.84 KM |
| Abbey Wood | 5131 | ABW | 3.35 KM |
| Bexleyheath | 5094 | BXH | 3.48 KM |
Nearby Listings
| Address | Price | Type | Score | Distance |
|---|---|---|---|---|
| Bletchington Court, Lower Park Road, Belvedere, Kent, DA17 | £ 250,000 | BUY | 6 / 10 | 0.00 KM |
| Bletchington Court Lower Park Road, Belvedere, Kent, DA17 | £ 275,000 | BUY | 6 / 10 | 0.05 KM |
| Halt Robin Road, Belvedere, DA17 | £ 899,995 | BUY | 6 / 10 | 0.05 KM |
| Halt Robin Road, Belvedere | £ 475,000 | BUY | 5 / 10 | 0.08 KM |
| Halt Robin Road, Belvedere, DA17 | £ 629,995 | BUY | 7 / 10 | 0.09 KM |
Nearby Properties
| Address | Price | Distance |
|---|---|---|
| 5a Lower Park Road | £ 50,000 | 0.04 KM |
| 5 Lower Park Road | £ 248,000 | 0.04 KM |
| 23 Halt Robin Road | £ 235,000 | 0.06 KM |
| 8 Halt Robin Road | £ 275,000 | 0.06 KM |
| 25 Halt Robin Road | £ 75,000 | 0.06 KM |