Chancellors says ..
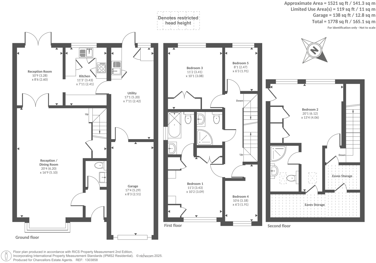
This five bedroom family home is ideally located for Horsell HIgh Street and Woking Town Centre is easily accessible with selection of boutiques, bars and restaurants with Woking Station providing links into The City and The West End
Property Oracle says ..
Therefore, we give this property 7 / 10. *Disclaimer: This is our option and does constitute a recommendation or financial advice. Do your own research. *
- Price
- 8
- Condition
- 7
- Location
- 8
- Land
- 7
- Bedrooms
- 5
- Bathrooms
- 2
- Sqft (est)
- 1,414.85
The heatmap indicates the level of crime in the area. The color of the heatmap indicates the crime severity and recency.
Metrics Year-on-Year
- Average area value
- 350,000.00 £Decreased by 4.27 %
- Est sale value
- 991,809.85 £Increased by 53.39 %
- Average area rental value
- 2,283.00 £/moIncreased by 41.19 %
- Est letting value
- 5,659.40 £/moIncreased by 100.00 %
- Est rental Yield
- 7.83 %Increased by 47.46 %
- Crime Rate
- 5.00 %Unchanged by 0.00 %
from 365,615.00 £
from 646,586.45 £
from 1,617.00 £/mo
from 2,829.70 £/mo
from 5.31 %
from 5.00 %
Agent Activity
Chancellors created the listing.
Nearby Schools
| Name | Type | Ofsted | Distance |
|---|---|---|---|
| Goldsworth Primary School | Academy Converter | 0.34 KM | |
| The Horsell Village School | Academy Converter | 0.88 KM | |
| Horsell Cofe Aided Junior School | Voluntary Aided School | Good | 0.88 KM |
| North West Surrey Short Stay School | Pupil Referral Unit | Good | 0.90 KM |
| Sythwood Primary School | Academy Converter | Good | 0.90 KM |
Images
Nearby Streets
| Name | Average Price | Average Sqft | Distance |
|---|---|---|---|
| Parley Drive | £ 0 | 0 | 0.00 KM |
| Eastmead Connector | £ 0 | 0 | 0.00 KM |
| Julian Close | £ 0 | 0 | 0.00 KM |
| Langdale Close | £ 699,950 | 0 | 0.00 KM |
| Hammond Close | £ 0 | 0 | 0.00 KM |
Nearby Transport
| Name | NLC | TLC | Distance |
|---|---|---|---|
| Woking | 5685 | WOK | 2.33 KM |
| Worplesdon | 5686 | WPL | 3.27 KM |
| Brookwood | 5687 | BKO | 6.58 KM |
| Longcross | 5674 | LNG | 7.70 KM |
| West Byfleet | 5684 | WBY | 8.36 KM |
Nearby Listings
| Address | Price | Type | Score | Distance |
|---|---|---|---|---|
| Horsell, Woking, Surrey, GU21 | £ 650,000 | BUY | 7 / 10 | 0.00 KM |
| Hedgerley Court, Woking, GU21 | £ 275,000 | BUY | Unknown | 0.05 KM |
| Goldsworth Park, Woking | £ 250,000 | BUY | 5 / 10 | 0.07 KM |
| WOKING | £ 300,000 | BUY | 6 / 10 | 0.08 KM |
| Foxhills, Woking, Surrey, GU21 | £ 250,000 | BUY | 6 / 10 | 0.10 KM |
Nearby Properties
| Address | Price | Distance |
|---|---|---|
| 58 Hedgerley Court | £ 174,500 | 0.01 KM |
| 44 Hedgerley Court | £ 275,000 | 0.01 KM |
| 62 Hedgerley Court | £ 172,000 | 0.01 KM |
| 43 Hedgerley Court | £ 300,000 | 0.01 KM |
| 51 Hedgerley Court | £ 310,000 | 0.01 KM |