Cana Lane, Marton Le Moor, Ripon
By Davis & Lund
£ 595,000
Reviews
3 out of 5 stars
Davis & Lund says ..
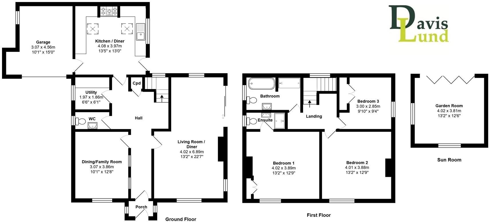
Located in the highly sought after village of Marton Le Moor, dating from 1810 this character property which used to be the village post office/shop and is now a charming characterful property steeped in history but now completely adapted for modern living. Meticulously renovated in rece...
Property Oracle says ..
A detached property in Marton Le Moor, Ripon, North Yorkshire. The house is well-maintained with a modern kitchen and bathrooms. It features a garden with a patio. Nearby schools have mixed Ofsted ratings. The asking price of £595,000 appears competitive compared to the local market’s average price of £712,586 and price per square foot.
Therefore, we give this property 7 / 10. *Disclaimer: This is our option and does constitute a recommendation or financial advice. Do your own research. *
- Price
- 9
- Condition
- 8
- Location
- 7
- Land
- 7
- Bedrooms
- 3
- Bathrooms
- 2
- Sqft (est)
- 1,382.73
The heatmap indicates the level of crime in the area. The color of the heatmap indicates the crime severity and recency.
Metrics Year-on-Year
- Average area value
- 688,333.00 £Decreased by 8.54 %
- Est sale value
- 1,010,775.63 £Increased by 26.03 %
- Average area rental value
- 1,650.00 £/moDecreased by 35.09 %
- Est letting value
- 1,382.73 £/moUnchanged by 0.00 %
- Est rental Yield
- 2.88 %Decreased by 28.89 %
- Crime Rate
- 229.00 %Unchanged by 0.00 %
Agent Activity
Davis & Lund created the listing.
Nearby Schools
| Name | Type | Ofsted | Distance |
|---|---|---|---|
| Dishforth Church Of England Voluntary Controlled Primary School | Voluntary Controlled School | Good | 2.85 KM |
| Skelton Newby Hall Church Of England Primary School | Voluntary Controlled School | Requires improvement | 2.96 KM |
| Dishforth Airfield Community Primary School | Community School | Outstanding | 3.77 KM |
| Kirby Hill Church Of England (Vc) Primary School | Voluntary Controlled School | Requires improvement | 3.96 KM |
| Roecliffe Church Of England Primary School | Voluntary Controlled School | Good | 4.81 KM |
Images
Nearby Streets
| Name | Average Price | Average Sqft | Distance |
|---|---|---|---|
| Chapel Close | £ 0 | 0 | 0.00 KM |
Nearby Listings
| Address | Price | Type | Score | Distance |
|---|---|---|---|---|
| Cana Lane, Marton Le Moor, Ripon | £ 595,000 | BUY | 7 / 10 | 0.00 KM |
| Cana Lane, Marton Le Moor, Ripon | £ 695,000 | BUY | 7 / 10 | 0.02 KM |
| Whitegate Lane, Marton Le Moor, Ripon | £ 425,000 | BUY | 7 / 10 | 0.13 KM |
| Marton Meadow, Marton le Moor, Ripon | £ 550,000 | BUY | Unknown | 0.14 KM |
| Devonshire Cottage, Marton Le Moor, Ripon HG4 5DJ | £ 895,000 | BUY | Unknown | 0.14 KM |
Nearby Properties
| Address | Price | Distance |
|---|---|---|
| 24 Whitegate Lane | £ 212,500 | 0.03 KM |
| The Grange | £ 920,000 | 0.03 KM |
| 23 Whitegate Lane | £ 65,000 | 0.07 KM |
| 11 Cana Lane | £ 627,000 | 0.09 KM |
| Wesley House | £ 434,000 | 0.09 KM |