WI
1 East End, Garton-On-The-Wolds, Driffield, YO25 3EP
By Willowgreen
£ 190,000
Reviews
3 out of 5 stars
Willowgreen says ..
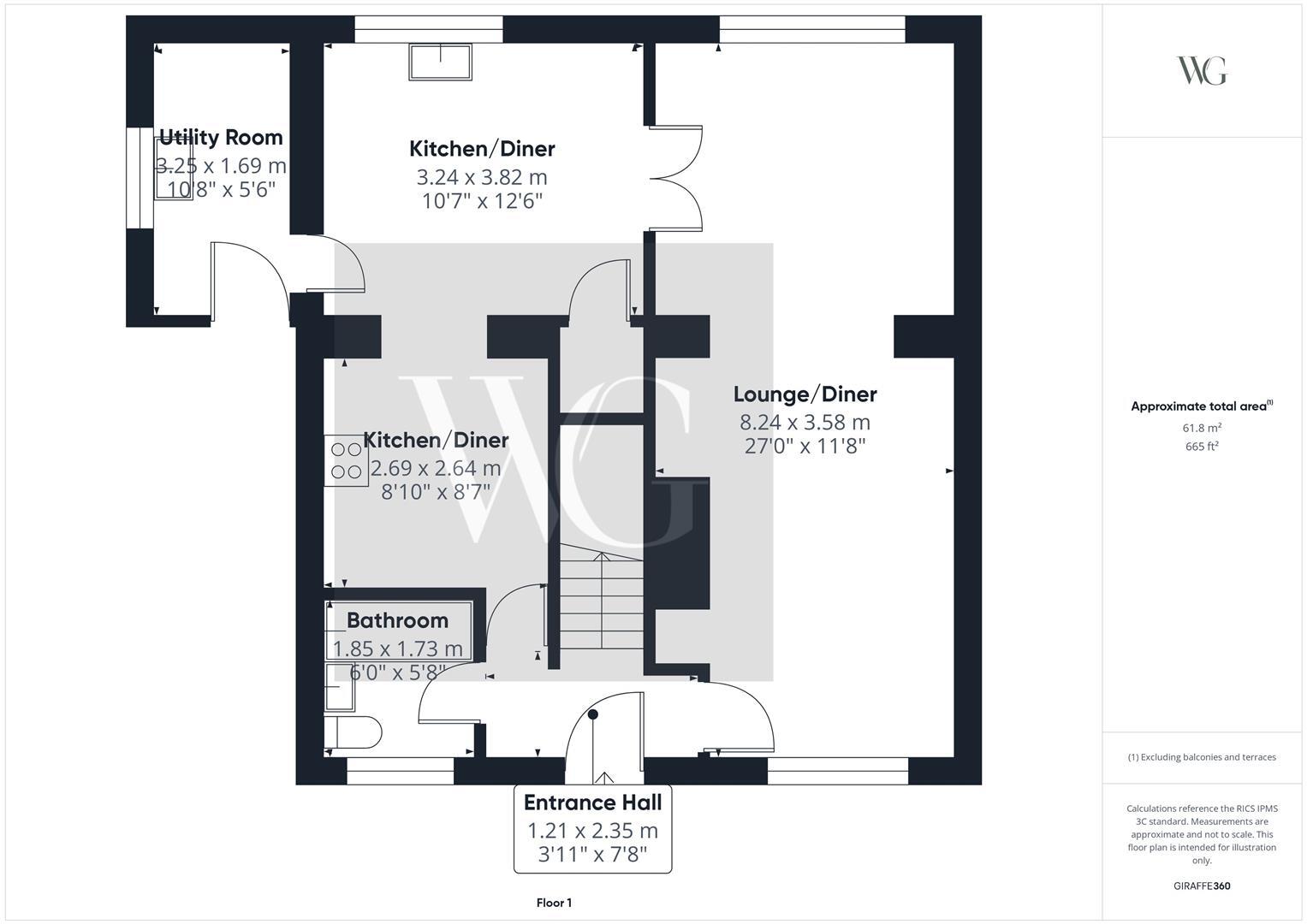
A three bedroom semi-detached house with generous garden and open countryside views. A SUPER VILLAGE LOCATION! Garton on the Wolds is a village and civil parish on the Yorkshire Wolds in the East Riding of Yorkshire, England. It is situated approximately 3 miles north-west of Driffield ...
Property Oracle says ..
Therefore, we give this property 7 / 10. *Disclaimer: This is our option and does constitute a recommendation or financial advice. Do your own research. *
- Price
- 6
- Condition
- 7
- Location
- 7
- Land
- 8
- Bedrooms
- 3
- Bathrooms
- 1
- Sqft (est)
- 334.76
The heatmap indicates the level of crime in the area. The color of the heatmap indicates the crime severity and recency.
Metrics Year-on-Year
- Average area value
- 242,920.00 £Increased by 2.00 %
- Est sale value
- 100,428.00 £Increased by 22.45 %
- Average area rental value
- 670.00 £/moDecreased by 14.65 %
- Est letting value
- 0.00 £/mo
- Est rental Yield
- 3.31 %Decreased by 16.41 %
- Crime Rate
- 0.00 %
from 238,162.00 £
from 82,016.20 £
from 785.00 £/mo
from 0.00 £/mo
from 3.96 %
from 0.00 %
Agent Activity
Willowgreen created the listing.
Nearby Schools
| Name | Type | Ofsted | Distance |
|---|---|---|---|
| Garton-On-The-Wolds Church Of England Voluntary Controlled Primary School | Voluntary Controlled School | Good | 0.95 KM |
| Kings Mill School | Community Special School | Good | 5.86 KM |
| Driffield Church Of England Voluntary Controlled Infant School | Voluntary Controlled School | Good | 6.50 KM |
| Sure Start Children'S Centre Driffield | Children's Centre | 6.84 KM | |
| Driffield Junior School | Community School | Good | 6.87 KM |
Images
Nearby Transport
| Name | NLC | TLC | Distance |
|---|---|---|---|
| Driffield | 8057 | DRF | 7.01 KM |
| Hutton Cranswick | 8099 | HUT | 9.81 KM |
Nearby Listings
| Address | Price | Type | Score | Distance |
|---|---|---|---|---|
| Main Street, Garton-on-the-Wolds, YO25 3EP | £ 220,000 | BUY | 6 / 10 | 0.00 KM |
| 1 East End, Garton-On-The-Wolds, Driffield, YO25 3EP | £ 190,000 | BUY | 7 / 10 | 0.00 KM |
| Main Street, Garton-On-The-Wolds, Driffield | £ 259,000 | BUY | 8 / 10 | 0.02 KM |
| Hostlers Barn, Main Street, Garton-On-The-Wolds | £ 725,000 | BUY | 7 / 10 | 0.13 KM |
| Main Street, Garton-on-the-Wolds, Driffield, East Yorkshire, YO25 | £ 599,950 | BUY | 7 / 10 | 0.16 KM |
Nearby Properties
| Address | Price | Distance |
|---|---|---|
| 17 Church View | £ 237,500 | 0.53 KM |
| 16 Church View | £ 167,500 | 0.53 KM |
| 3 Waggoners Lane | £ 241,000 | 1.03 KM |
| Kirk View | £ 195,000 | 1.04 KM |
| Grange Acre | £ 249,995 | 1.07 KM |