Evans & Company says ..
Evans & Company are pleased to present this spacious one bedroom first floor maisonette located on the popular Westridge Estate. The property is offered with no upper chain and boasts features that include double glazed windows, electric heating and allocated parking.
Property Oracle says ..
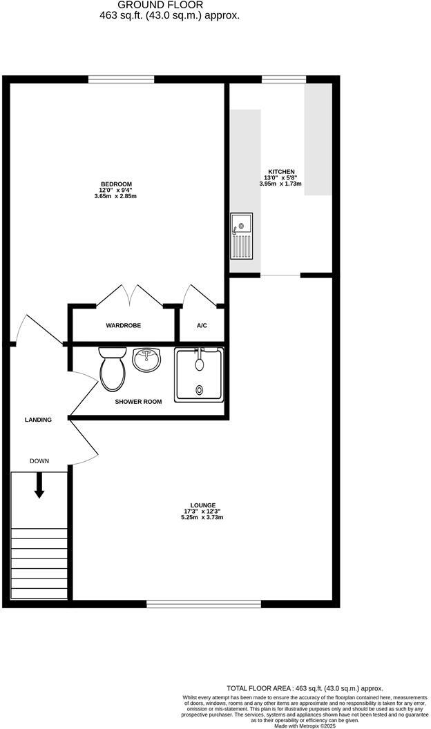
This one bedroom property is located in Greenford, UB6 9UQ. The property is conveniently located near Greenford Broadway, with its shops and amenities. The nearby Greenford underground station provides easy access to central London. There are also several schools within a reasonable distance, including Ravenor Primary School and William Perkin Church of England High School. Based on the images provided, the property appears to be in fair condition, though some modernisation may be desirable. The kitchen and bathroom appear dated and may require updating. The property is small, with a total size of 463 square feet, and sits on a plot of the same size. This means there is no garden. The list price is £309,995. Considering the average price of properties in the area is £430,413 and the average price per square foot is £574, the property is priced below average. However, its smaller size and need for potential modernisation should be considered.
Therefore, we give this property 5 / 10. *Disclaimer: This is our option and does constitute a recommendation or financial advice. Do your own research. *
- Price
- 7
- Condition
- 6
- Location
- 7
- Land
- 1
- Bedrooms
- 1
- Bathrooms
- 1
- Sqft (est)
- 463.00
- Lot (est)
- 463.00
The heatmap indicates the level of crime in the area. The color of the heatmap indicates the crime severity and recency.
Metrics Year-on-Year
- Average area value
- 345,650.00 £Decreased by 14.42 %
- Est sale value
- 178,255.00 £Decreased by 21.75 %
- Average area rental value
- 1,733.00 £/moIncreased by 12.61 %
- Est letting value
- 463.00 £/moUnchanged by 0.00 %
- Est rental Yield
- 6.02 %Increased by 31.73 %
- Crime Rate
- 3.00 %Unchanged by 0.00 %
Agent Activity
Evans & Company created the listing.
Nearby Schools
| Name | Type | Ofsted | Distance |
|---|---|---|---|
| Ravenor Primary School | Community School | Good | 0.92 KM |
| The Edward Betham Church Of England Primary School | Voluntary Aided School | Good | 1.05 KM |
| Coston Primary School | Community School | Good | 1.05 KM |
| Belvue School | Community Special School | Good | 1.08 KM |
| William Perkin Church Of England High School | Free Schools | Outstanding | 1.14 KM |
Images
Nearby Streets
| Name | Average Price | Average Sqft | Distance |
|---|---|---|---|
| Footpath 64 | £ 0 | 0 | 0.00 KM |
| Lyndhurst Road | £ 0 | 0 | 0.00 KM |
| Paddock Close | £ 0 | 0 | 0.00 KM |
| Horseshoe Crescent | £ 0 | 0 | 0.00 KM |
| Brabazon Road | £ 0 | 0 | 0.00 KM |
Nearby Transport
| Name | NLC | TLC | Distance |
|---|---|---|---|
| Greenford | 3136 | GFD | 1.59 KM |
| Northolt Park | 1478 | NLT | 2.21 KM |
| South Greenford | 3138 | SGN | 2.55 KM |
| Sudbury Hill Harrow | 1484 | SDH | 3.49 KM |
| Castle Bar Park | 3098 | CBP | 3.50 KM |
Nearby Listings
| Address | Price | Type | Score | Distance |
|---|---|---|---|---|
| Dacre Close, Greenford | £ 335,000 | BUY | 6 / 10 | 0.01 KM |
| Dacre Close, Greenford | £ 465,000 | BUY | 7 / 10 | 0.01 KM |
| Dacre Close, Greenford | £ 275,000 | BUY | 6 / 10 | 0.01 KM |
| Melrose Avenue, Greenford, UB6 | £ 350,000 | BUY | 5 / 10 | 0.12 KM |
| Millet Road, Greenford | £ 295,000 | BUY | 6 / 10 | 0.13 KM |
Nearby Properties
| Address | Price | Distance |
|---|---|---|
| 29 Dacre Close | £ 153,000 | 0.01 KM |
| 19 Dacre Close | £ 195,000 | 0.01 KM |
| 36 Dacre Close | £ 328,000 | 0.01 KM |
| 31 Dacre Close | £ 275,000 | 0.01 KM |
| 17 Dacre Close | £ 142,000 | 0.01 KM |