Mill Road, Caerphilly
Good Move logo

Mill Road, Caerphilly

By Good Move

£ 150,000

Reviews

2 out of 5 stars

Good Move says ..

** OFFERED WITH NO CHAIN FOR A QUICK SALE ** In the heart of the town of Caerphilly which is nestled in the Southern end of the Rhymney Valley, embodies quaint charm coupled with rich history and modern amenities. This picturesque town offers a perfect balance of tranquility and accessib...

Property Oracle says ..

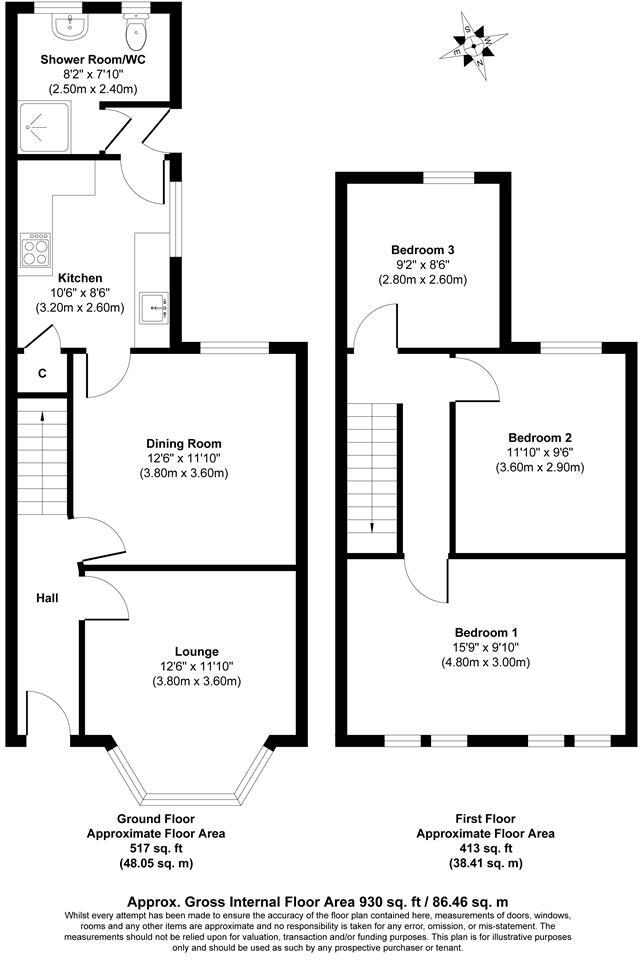
This end of terrace property is located in Caerphilly, South Wales. The property benefits from being close to several primary and secondary schools, as well as having a train station within walking distance. While the location is convenient, the property itself requires some attention. The interior shows signs of needing some modernisation and updating, although the kitchen and bathroom appear to have had recent improvements. The small garden is overgrown and needs work. Considering the average house price in the area is significantly higher, the list price of £150,000 may seem reasonable, especially given the need for modernisation. However, comparable properties in the area have sold for higher prices, suggesting this property might be slightly underpriced, but further analysis is needed to confirm this.

Therefore, we give this property 5 / 10. *Disclaimer: This is our option and does constitute a recommendation or financial advice. Do your own research. *

Price
7
Condition
6
Location
7
Land
3
Bedrooms
3
Bathrooms
1
Sqft (est)
930.65

The heatmap indicates the level of crime in the area. The color of the heatmap indicates the crime severity and recency.

Metrics Year-on-Year

Average area value
249,306.00 £
Increased by 0.03 %
from 249,240.00 £
Est sale value
246,622.25 £
Decreased by 18.96 %
from 304,322.55 £
Average area rental value
1,107.00 £/mo
Increased by 0.82 %
from 1,098.00 £/mo
Est letting value
930.65 £/mo
Unchanged by 0.00 %
from 930.65 £/mo
Est rental Yield
5.33 %
Increased by 0.76 %
from 5.29 %
Crime Rate
7.00 %
Unchanged by 0.00 %
from 7.00 %

Agent Activity

  • Good Move marked this listing as sold.

  • Good Move created the listing.

Nearby Schools

NameTypeOfstedDistance
Ysgol G.G. CaerffiliWelsh Establishment0.43 KM
Twyn Primary SchoolWelsh Establishment0.65 KM
Plasyfelin PrimaryWelsh Establishment0.75 KM
Ysgol Gynradd Gymraeg Y CastellWelsh Establishment0.80 KM
St Martin'S SchoolWelsh Establishment1.04 KM

Images

IMG_20250306_135640.tKX8M.jpg IMG_20250306_140110.1x41R.jpg IMG_20250306_135550.6fW9V.jpg IMG_20250306_135630.EuLrd.jpg IMG_20250303_120639.jpg IMG_20250306_140332.YYTqg.jpg IMG_20250306_140053.tCSqI.jpg IMG_20250306_135756.LNc55.jpg IMG_20250306_140256.ZLOy0.jpg IMG_20250306_140025.jyb3O.jpg IMG_20250306_135712.6ILZv.jpg IMG_20250306_140120.mzXOr.jpg IMG_20250306_135906.IiaVL.jpg IMG_20250306_135916.fnJiB.jpg IMG_20250306_140152.OWAZy.jpg IMG_20250303_120754.jpg IMG_20250306_135954.uYv3N.jpg

Nearby Streets

NameAverage PriceAverage SqftDistance
Maes-Y-Felin £ 210,00000.00 KM
Heol Ty Merchant £ 000.00 KM
Cwrt Pen-Capel £ 350,00000.00 KM
LLwybrY Coetir £ 000.00 KM
Bro Ger Y Nant £ 000.00 KM

Nearby Transport

NameNLCTLCDistance
Caerphilly3812CPH0.82 KM
Energlyn And Churchill Park375ECP1.19 KM
Aber3813ABE1.28 KM
Llanbradach4018LNB3.12 KM
Lisvane And Thornhill3853LVT5.31 KM

Nearby Listings

AddressPriceTypeScoreDistance
Mill Road, Caerphilly £ 150,000BUY5 / 100.00 KM
Pontygwindy Road, Caerphilly, CF83 3AD £ 240,000BUYUnknown0.08 KM
Pontygwindy Road, Caerphilly, CF83 £ 270,000BUY6 / 100.12 KM
Mill Road, Caerphilly £ 210,000BUY6 / 100.13 KM
Pontygwindy Road,Caerphilly,CF83 3AB £ 325,000BUY7 / 100.16 KM

Nearby Properties

AddressPriceDistance
9 Pontygwindy Road £ 180,0000.08 KM
5 Pontygwindy Road £ 124,9500.08 KM
35 Pontygwindy Road £ 175,0000.08 KM
1 Pontygwindy Road £ 79,0000.08 KM
2 Maes Y Felin £ 233,0000.09 KM