Acorn says ..
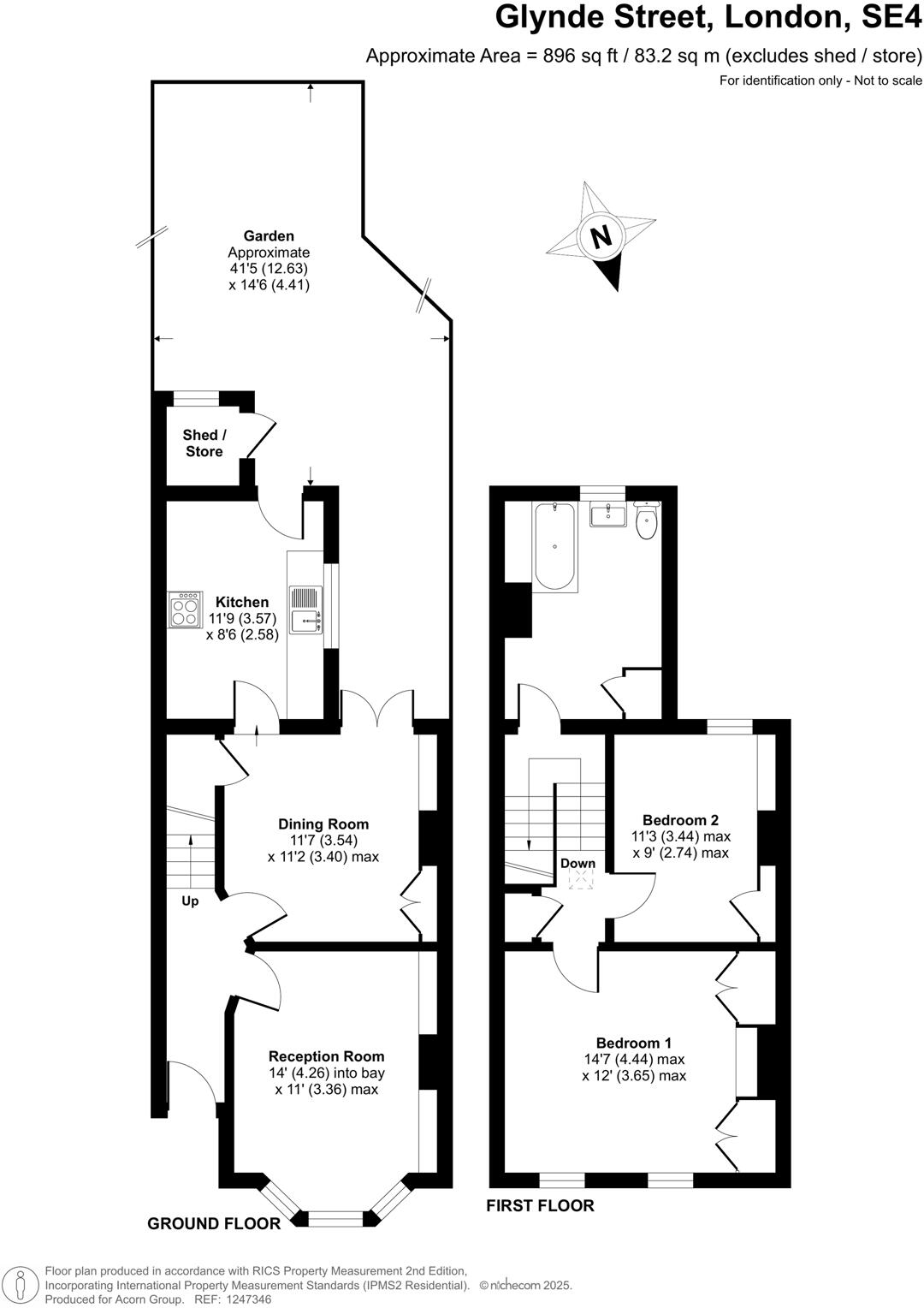
Acorn are pleased to offer this charming, chain-free, two-bedroom mid-terrace house to the SE4 sales market, located on the sought-after tree-lined Glynde Street. This property features a bright and spacious front reception with bay windows, a second reception room, a separate kitchen,...
Property Oracle says ..
This property is a 2 bedroom, 1 bathroom terraced house located on Glynde Street in Crofton Park, Lewisham. The property is in need of modernisation and is currently in a state of disrepair. There is a garden to the rear of the property. The location is convenient with good access to transport links and local schools. However, the property requires significant renovation work which should be taken into consideration when assessing value for money.
Therefore, we give this property 5 / 10. *Disclaimer: This is our option and does constitute a recommendation or financial advice. Do your own research. *
- Price
- 4
- Condition
- 3
- Location
- 8
- Land
- 6
- Bedrooms
- 2
- Bathrooms
- 1
- Sqft (est)
- 1,021.00
- Lot (est)
- 896.00
The heatmap indicates the level of crime in the area. The color of the heatmap indicates the crime severity and recency.
Metrics Year-on-Year
- Average area value
- 606,692.00 £Decreased by 6.50 %
- Est sale value
- 796,380.00 £Increased by 4.70 %
- Average area rental value
- 1,750.00 £/moDecreased by 16.47 %
- Est letting value
- 2,042.00 £/moUnchanged by 0.00 %
- Est rental Yield
- 3.46 %Decreased by 10.59 %
- Crime Rate
- 2.00 %Unchanged by 0.00 %
Agent Activity
Acorn created the listing.
Nearby Schools
| Name | Type | Ofsted | Distance |
|---|---|---|---|
| Prendergast Ladywell School | Foundation School | Good | 0.50 KM |
| Gordonbrock Primary School | Community School | Outstanding | 0.53 KM |
| Ladywell Children'S Centre | Children's Centre | 0.71 KM | |
| Beecroft Garden Primary | Community School | Good | 0.75 KM |
| Stillness Infant School | Community School | Outstanding | 0.89 KM |
Images
Nearby Streets
| Name | Average Price | Average Sqft | Distance |
|---|---|---|---|
| Eastern Road | £ 1,350,000 | 0 | 0.00 KM |
| Desmond Tutu Drive | £ 360,000 | 0 | 0.00 KM |
| Brockley Way | £ 350,000 | 0 | 0.00 KM |
| Railway Terrace | £ 245,000 | 0 | 0.00 KM |
| Scrooby Mews | £ 450,000 | 0 | 0.00 KM |
Nearby Transport
| Name | NLC | TLC | Distance |
|---|---|---|---|
| Crofton Park | 5078 | CFT | 0.66 KM |
| Catford | 5077 | CTF | 1.04 KM |
| Catford Bridge | 5047 | CFB | 1.11 KM |
| Ladywell | 5057 | LAD | 1.43 KM |
| Brockley | 5404 | BCY | 1.54 KM |
Nearby Listings
| Address | Price | Type | Score | Distance |
|---|---|---|---|---|
| Glynde Street, London | £ 650,000 | BUY | 5 / 10 | 0.00 KM |
| Manwood Road, Crofton Park, London, SE4 | £ 825,000 | BUY | Unknown | 0.04 KM |
| Glynde Street, Brockley, London, SE4 | £ 800,000 | BUY | 6 / 10 | 0.05 KM |
| Bexhill Road, London, SE4 | £ 950,000 | BUY | 7 / 10 | 0.08 KM |
| Salehurst Road, Brockley | £ 435,000 | BUY | 6 / 10 | 0.13 KM |
Nearby Properties
| Address | Price | Distance |
|---|---|---|
| 23 Glynde Street | £ 676,000 | 0.01 KM |
| 15 Glynde Street | £ 550,000 | 0.01 KM |
| 21 Glynde Street | £ 650,000 | 0.01 KM |
| 20 Glynde Street | £ 600,000 | 0.01 KM |
| 27 Glynde Street | £ 201,500 | 0.01 KM |