Pearsons says ..
With an abundance of character and charm, this unique, detached three-bedroom home is situated in the heart of a prominent part of the City. Close to so much naval history, the waterfront, highly renowned Gunwharf Quays and main line railway stations, there is so much to discover on your doorstep...
Property Oracle says ..
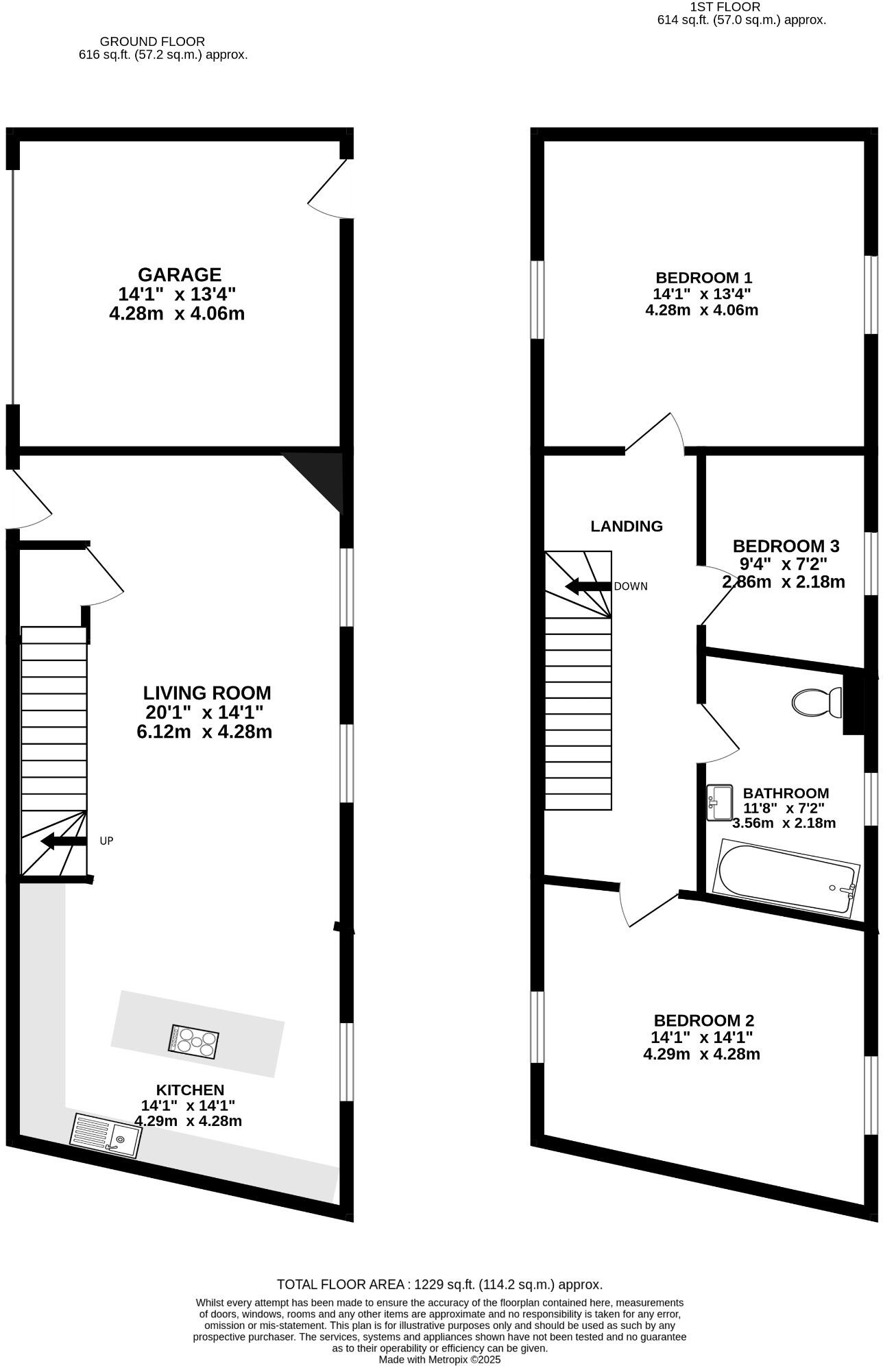
This property is a 3-bedroom, 1-bathroom detached house located in the St Thomas area of Portsmouth, Hampshire. The list price is £450,000, and the property has 1,216.28 sqft of living space and a 1,229 sqft plot. The property is situated close to several railway stations, including Portsmouth and Southsea (0.95km) and Portsmouth Harbour (0.97km), making it convenient for commuters. There are also several schools nearby, including St George’s Beneficial Church of England Primary School (0.44km) and St Jude’s Cofe Primary School (1.00km). The property has been recently renovated to a high standard with a modern kitchen and bathrooms. The property also benefits from a private rear garden.
Therefore, we give this property 7 / 10. *Disclaimer: This is our option and does constitute a recommendation or financial advice. Do your own research. *
- Price
- 7
- Condition
- 9
- Location
- 8
- Land
- 7
- Bedrooms
- 3
- Bathrooms
- 1
- Sqft (est)
- 1,216.28
- Lot (est)
- 1,229.00
The heatmap indicates the level of crime in the area. The color of the heatmap indicates the crime severity and recency.
Metrics Year-on-Year
- Average area value
- 421,780.00 £Increased by 21.83 %
- Est sale value
- 685,981.92 £Increased by 75.70 %
- Average area rental value
- 1,390.00 £/moDecreased by 6.33 %
- Est letting value
- 1,216.28 £/moUnchanged by 0.00 %
- Est rental Yield
- 3.95 %Decreased by 23.15 %
- Crime Rate
- 12.00 %Unchanged by 0.00 %
Agent Activity
Pearsons created the listing.
Nearby Schools
| Name | Type | Ofsted | Distance |
|---|---|---|---|
| St George'S Beneficial Church Of England (Voluntary Controlled) Primary School | Voluntary Controlled School | Good | 0.44 KM |
| Portsea Sure Start Children'S Centre | Children's Centre Linked Site | 0.49 KM | |
| University Of Portsmouth | Higher Education Institutions | 0.79 KM | |
| The Portsmouth Grammar School | Other Independent School | 0.82 KM | |
| St Jude'S Cofe Primary School | Voluntary Controlled School | Good | 1.00 KM |
Images
Nearby Streets
| Name | Average Price | Average Sqft | Distance |
|---|---|---|---|
| Bellevue Terrace | £ 335,000 | 0 | 0.00 KM |
| Park Road | £ 0 | 0 | 0.00 KM |
| Blackthorn Terrace | £ 0 | 0 | 0.00 KM |
| Margery's Court | £ 0 | 0 | 0.00 KM |
| Flathouse Road | £ 0 | 0 | 0.00 KM |
Nearby Transport
| Name | NLC | TLC | Distance |
|---|---|---|---|
| Portsmouth And Southsea | 5537 | PMS | 0.95 KM |
| Portsmouth Harbour | 5540 | PMH | 0.97 KM |
| Fratton | 5509 | FTN | 2.83 KM |
| Hilsea | 5539 | HLS | 5.53 KM |
| Cosham | 5896 | CSA | 5.92 KM |
Nearby Listings
| Address | Price | Type | Score | Distance |
|---|---|---|---|---|
| Beck Street, Portsmouth | £ 450,000 | BUY | 7 / 10 | 0.00 KM |
| Queen Street, Portsmouth | £ 160,000 | BUY | Unknown | 0.06 KM |
| St. James's Street, Portsmouth, Hampshire | £ 194,999 | BUY | 6 / 10 | 0.08 KM |
| St. James's Street, Portsmouth, Hampshire, PO1 | £ 180,000 | BUY | Unknown | 0.08 KM |
| St James Street, Landport, Portsmouth, PO1 | £ 190,000 | BUY | 5 / 10 | 0.09 KM |
Nearby Properties
| Address | Price | Distance |
|---|---|---|
| 5 St James's Street | £ 227,000 | 0.01 KM |
| 6 St James's Street | £ 271,000 | 0.01 KM |
| 3 St James's Street | £ 270,000 | 0.01 KM |
| 2 St James's Street | £ 275,000 | 0.01 KM |
| 31 Queen Street | £ 250,000 | 0.10 KM |