Kenmore Avenue, Kenton, Harrow, HA3
By Sonia Estates
£ 600,000
Reviews
3 out of 5 stars
Sonia Estates says ..
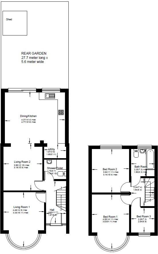
Spacious 3-Bedroom Mid-Terraced Home on Kenmore Avenue, KentonDiscover this well-presented three-bedroom mid-terraced house ideally located on the sought-after Kenmore Avenue in Kenton. Offering generous living space and modern features throughout, this property is perfect for first-time buyers o...
Property Oracle says ..
This is a three-bedroom terraced house located on Kenmore Avenue, Kenton, Harrow. The property benefits from two bathrooms and a garden. The property is listed with Sonia Estates for £600,000. The property is located within a reasonable distance of schools and transportation links, including the Kenton Underground station. The property appears to be in generally good condition, with modern fixtures and fittings in the kitchen and bathrooms. However, some areas may benefit from updating or redecoration to maximize its appeal. The property has a garden, which is a desirable feature. The garden appears to be a reasonable size for a terraced property.
Therefore, we give this property 6 / 10. *Disclaimer: This is our option and does constitute a recommendation or financial advice. Do your own research. *
- Price
- 7
- Condition
- 7
- Location
- 7
- Land
- 6
- Bedrooms
- 3
- Bathrooms
- 2
- Lot (est)
- 27.70
The heatmap indicates the level of crime in the area. The color of the heatmap indicates the crime severity and recency.
Metrics Year-on-Year
- Average area value
- 341,429.00 £Increased by 9.95 %
- Average area rental value
- 875.00 £/moDecreased by 18.53 %
- Est rental Yield
- 3.08 %Decreased by 25.78 %
- Crime Rate
- 2.00 %Unchanged by 0.00 %
Agent Activity
Sonia Estates created the listing.
Nearby Schools
| Name | Type | Ofsted | Distance |
|---|---|---|---|
| Elmgrove Primary School & Nursery | Community School | Good | 0.45 KM |
| Elmgrove | Children's Centre Linked Site | 0.53 KM | |
| Priestmead Primary School And Nursery | Academy Converter | 0.77 KM | |
| St Joseph'S Catholic Primary School | Academy Converter | 0.78 KM | |
| Belmont School | Community School | Outstanding | 1.04 KM |
Images
Nearby Streets
| Name | Average Price | Average Sqft | Distance |
|---|---|---|---|
| Burnham Close | £ 0 | 0 | 0.00 KM |
| Forward Drive | £ 0 | 0 | 0.00 KM |
| Kenton Lane | £ 0 | 0 | 0.00 KM |
| Clifton Avenue | £ 0 | 0 | 0.00 KM |
| Phoenix Industrial Estate | £ 0 | 0 | 0.00 KM |
Nearby Transport
| Name | NLC | TLC | Distance |
|---|---|---|---|
| Kenton | 1399 | KNT | 1.30 KM |
| Harrow And Wealdstone | 1397 | HRW | 1.47 KM |
| Harrow-On-The-Hill | 598 | HOH | 2.31 KM |
| South Kenton | 1453 | SOK | 2.87 KM |
| North Wembley | 1422 | NWB | 3.85 KM |
Nearby Listings
| Address | Price | Type | Score | Distance |
|---|---|---|---|---|
| Kenmore Avenue, Kenton, Harrow, HA3 | £ 600,000 | BUY | 6 / 10 | 0.00 KM |
| Kenmore Avenue, Harrow | £ 725,000 | BUY | Unknown | 0.00 KM |
| Kenmore Avenue, Harrow | £ 715,000 | BUY | Unknown | 0.00 KM |
| Kenmore Avenue, Kenton, Harrow, HA3 | £ 750,000 | BUY | Unknown | 0.03 KM |
| Beaufort Avenue, Kenton | £ 589,950 | BUY | 6 / 10 | 0.23 KM |
Nearby Properties
| Address | Price | Distance |
|---|---|---|
| 48 Kenmore Avenue | £ 550,000 | 0.05 KM |
| 54 Kenmore Avenue | £ 755,000 | 0.05 KM |
| 38b Kenmore Avenue | £ 100,000 | 0.09 KM |
| 38c Kenmore Avenue | £ 80,000 | 0.09 KM |
| 62 Kenmore Avenue | £ 192,000 | 0.10 KM |