Hatchet Lane, Beaulieu, Brockenhurst, SO42
By Fells Gulliver
£ 940,000
Reviews
3 out of 5 stars
Fells Gulliver says ..
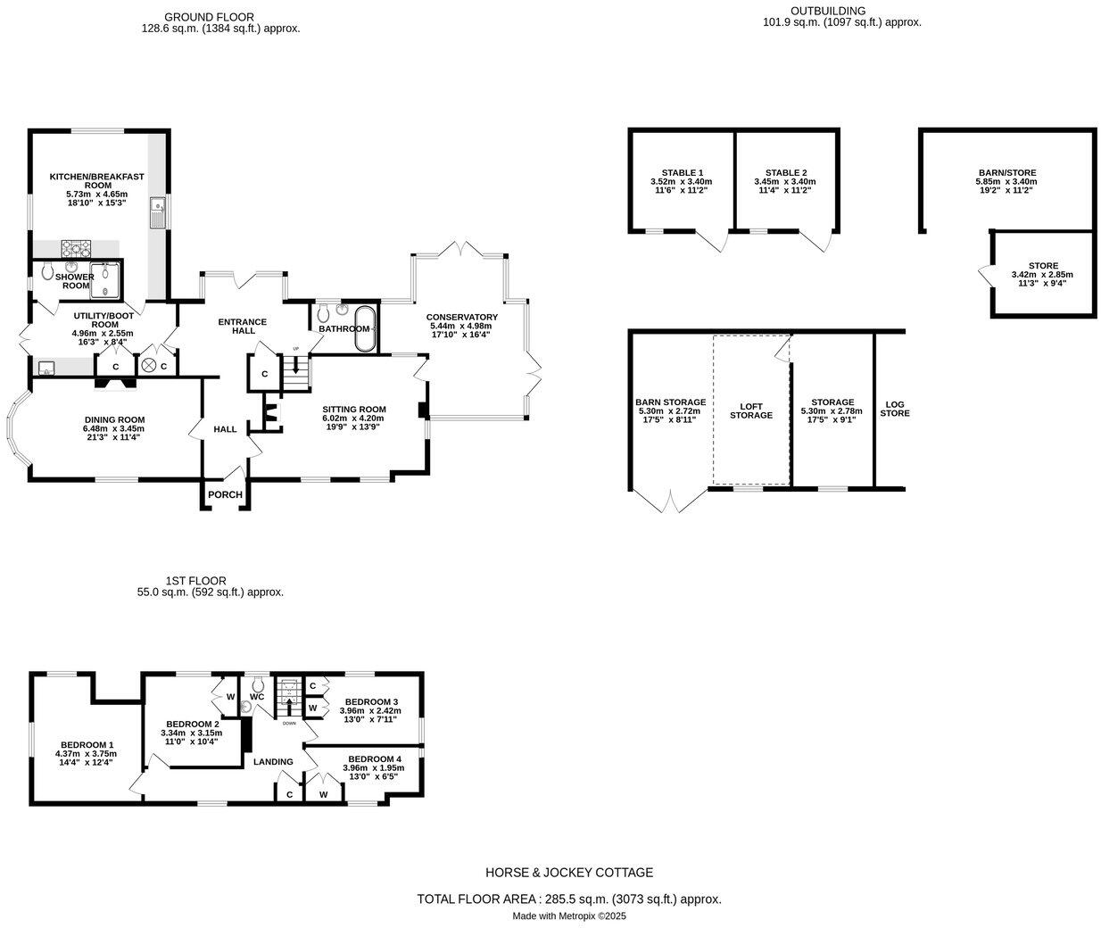
Beautifully positioned close to the open forest and within easy reach of Beaulieu village centre, this impressive four-bedroom residence is set within approximately 1.5 acres of gardens and paddocks. The property benefits from an exceptional range of outbuildings, including two stables, a smal...
Property Oracle says ..
Horse and Jockey Cottage presents a charming period property with equestrian facilities in the desirable New Forest area. The house features four bedrooms and two bathrooms, offering comfortable living space. The interior showcases a blend of traditional and modern elements, with exposed beams and updated bathrooms. The property benefits from a large plot of land, ideal for equestrian pursuits, and includes a garden and outbuildings. While generally well-maintained, some areas could benefit from modernisation. Its location offers a rural lifestyle with convenient access to local amenities and transportation links. The price appears competitive given the location and equestrian facilities.
Therefore, we give this property 7 / 10. *Disclaimer: This is our option and does constitute a recommendation or financial advice. Do your own research. *
- Price
- 7
- Condition
- 7
- Location
- 7
- Land
- 9
- Bedrooms
- 4
- Bathrooms
- 2
The heatmap indicates the level of crime in the area. The color of the heatmap indicates the crime severity and recency.
Metrics Year-on-Year
- Average area value
- 471,111.00 £Increased by 12.11 %
- Average area rental value
- 1,283.00 £/moDecreased by 19.91 %
- Est rental Yield
- 3.27 %Decreased by 28.45 %
- Crime Rate
- 0.00 %
Agent Activity
Fells Gulliver created the listing.
Nearby Schools
| Name | Type | Ofsted | Distance |
|---|---|---|---|
| Beaulieu Village Primary School | Community School | Good | 2.23 KM |
| South Baddesley Church Of England Primary School | Voluntary Controlled School | Good | 6.33 KM |
| Oak Lodge School | Community Special School | Good | 6.96 KM |
| Applemore College | Foundation School | Good | 6.96 KM |
| Greenwood School | Pupil Referral Unit | Good | 7.38 KM |
Images
Nearby Streets
| Name | Average Price | Average Sqft | Distance |
|---|---|---|---|
| Whithers Lane | £ 0 | 0 | 0.00 KM |
| Wood Lane | £ 0 | 0 | 0.00 KM |
Nearby Transport
| Name | NLC | TLC | Distance |
|---|---|---|---|
| Beaulieu Road | 5890 | BEU | 5.85 KM |
| Lymington Pier | 5892 | LYP | 8.93 KM |
| Lymington Town | 5887 | LYT | 9.38 KM |
Nearby Listings
| Address | Price | Type | Score | Distance |
|---|---|---|---|---|
| Hatchet Lane, Beaulieu, Brockenhurst, SO42 | £ 940,000 | BUY | 7 / 10 | 0.00 KM |
| Hatchet Lane, Beaulieu, Brockenhurst, Hampshire, SO42 | £ 1,000,000 | BUY | 7 / 10 | 0.06 KM |
| Furzey Lane, Beaulieu, Brockenhurst, SO42 | £ 1,200,000 | BUY | 7 / 10 | 0.53 KM |
| Masseys Lane, East Boldre, Brockenhurst, Hampshire, SO42 | £ 1,100,000 | BUY | 8 / 10 | 0.58 KM |
| Furzey Lane, Beaulieu, Hampshire | £ 1,300,000 | BUY | 8 / 10 | 0.74 KM |
Nearby Properties
| Address | Price | Distance |
|---|---|---|
| Peachtree House | £ 850,000 | 0.26 KM |
| Little Hillcroft | £ 720,000 | 0.26 KM |
| Forest Ponies Cottage | £ 830,000 | 0.26 KM |
| Little Hatchett | £ 1,200,000 | 0.26 KM |
| Memorial Cottage | £ 445,111 | 0.26 KM |