Ocean says ..
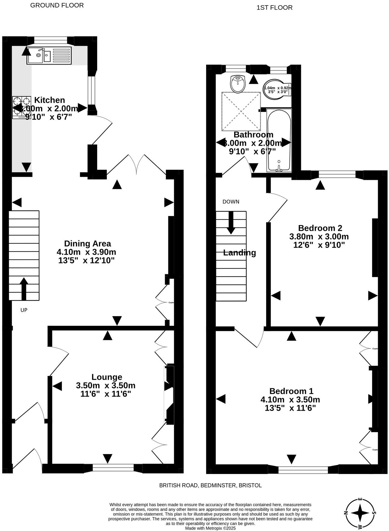
This charming 2-bedroom terraced house is located on British Road in the popular area of Bedminster in Bristol. This property is perfect for first-time buyers or investors looking for a cozy and well-maintained home.
Property Oracle says ..
This two bedroom terraced house is located in the popular Bedminster area of Bristol. The property benefits from a good-sized garden, which is a rarity for terraced houses in this area. The interior is presented in good condition and has been well-maintained. The location is excellent, with easy access to local amenities, schools, and transport links. Parson Street train station is within walking distance, providing convenient access to Bristol Temple Meads and beyond. Several highly-rated primary schools are also nearby. While the average price per square foot in the area is £443, this property is slightly above average, likely reflecting its desirable features and location. The list price is competitive when compared to similar properties in the area. Overall, this property represents a good value for money in a highly sought-after location.
Therefore, we give this property 7 / 10. *Disclaimer: This is our option and does constitute a recommendation or financial advice. Do your own research. *
- Price
- 7
- Condition
- 8
- Location
- 9
- Land
- 7
- Bedrooms
- 2
- Bathrooms
- 1
- Sqft (est)
- 787.92
The heatmap indicates the level of crime in the area. The color of the heatmap indicates the crime severity and recency.
Metrics Year-on-Year
- Average area value
- 331,250.00 £Decreased by 14.00 %
- Est sale value
- 405,778.80 £Increased by 22.91 %
- Average area rental value
- 1,534.00 £/moDecreased by 7.03 %
- Est letting value
- 1,575.84 £/moIncreased by 100.00 %
- Est rental Yield
- 5.56 %Increased by 8.17 %
- Crime Rate
- 5.00 %Unchanged by 0.00 %
Agent Activity
Ocean created the listing.
Nearby Schools
| Name | Type | Ofsted | Distance |
|---|---|---|---|
| Compass Point Primary School | Academy Converter | 0.13 KM | |
| Compass Point: South Street School & Children'S Centre | Children's Centre | 0.23 KM | |
| Southville Primary School | Community School | Good | 0.57 KM |
| Parson Street Primary School | Academy Converter | Requires improvement | 0.65 KM |
| Holy Cross Rc Primary School | Voluntary Aided School | Good | 0.74 KM |
Images
Nearby Streets
| Name | Average Price | Average Sqft | Distance |
|---|---|---|---|
| Gladstone Street | £ 455,000 | 0 | 0.00 KM |
| Diamond Street | £ 450,000 | 0 | 0.00 KM |
| Shepton Walk | £ 0 | 0 | 0.00 KM |
| Saint Dunstans Road | £ 426,000 | 0 | 0.00 KM |
| Kingdom View | £ 0 | 0 | 0.00 KM |
Nearby Transport
| Name | NLC | TLC | Distance |
|---|---|---|---|
| Parson Street | 3246 | PSN | 0.65 KM |
| Bedminster | 3245 | BMT | 1.17 KM |
| Bristol Temple Meads | 3231 | BRI | 2.84 KM |
| Clifton Down | 3202 | CFN | 3.04 KM |
| Redland | 3247 | RDA | 3.41 KM |
Nearby Listings
| Address | Price | Type | Score | Distance |
|---|---|---|---|---|
| British Road, Bedminster, Bristol | £ 400,000 | BUY | 7 / 10 | 0.00 KM |
| Clifton Street, Bedminster, Bristol | £ 400,000 | BUY | 7 / 10 | 0.05 KM |
| British Road, Bedminster, BS3 3BU | £ 425,000 | BUY | Unknown | 0.06 KM |
| Mount Zion, Victor Road, Bedminster, Bristol | £ 235,000 | BUY | 6 / 10 | 0.06 KM |
| British Road, Bedminster, Bristol, BS3 | £ 400,000 | BUY | 6 / 10 | 0.07 KM |
Nearby Properties
| Address | Price | Distance |
|---|---|---|
| 12 Clifton Street | £ 534,000 | 0.04 KM |
| 10 Clifton Street | £ 182,000 | 0.04 KM |
| 8 Clifton Street | £ 137,500 | 0.05 KM |
| 3 Clifton Street | £ 92,000 | 0.05 KM |
| 63 British Road | £ 345,000 | 0.06 KM |