Wheatcroft & Lloyd says ..
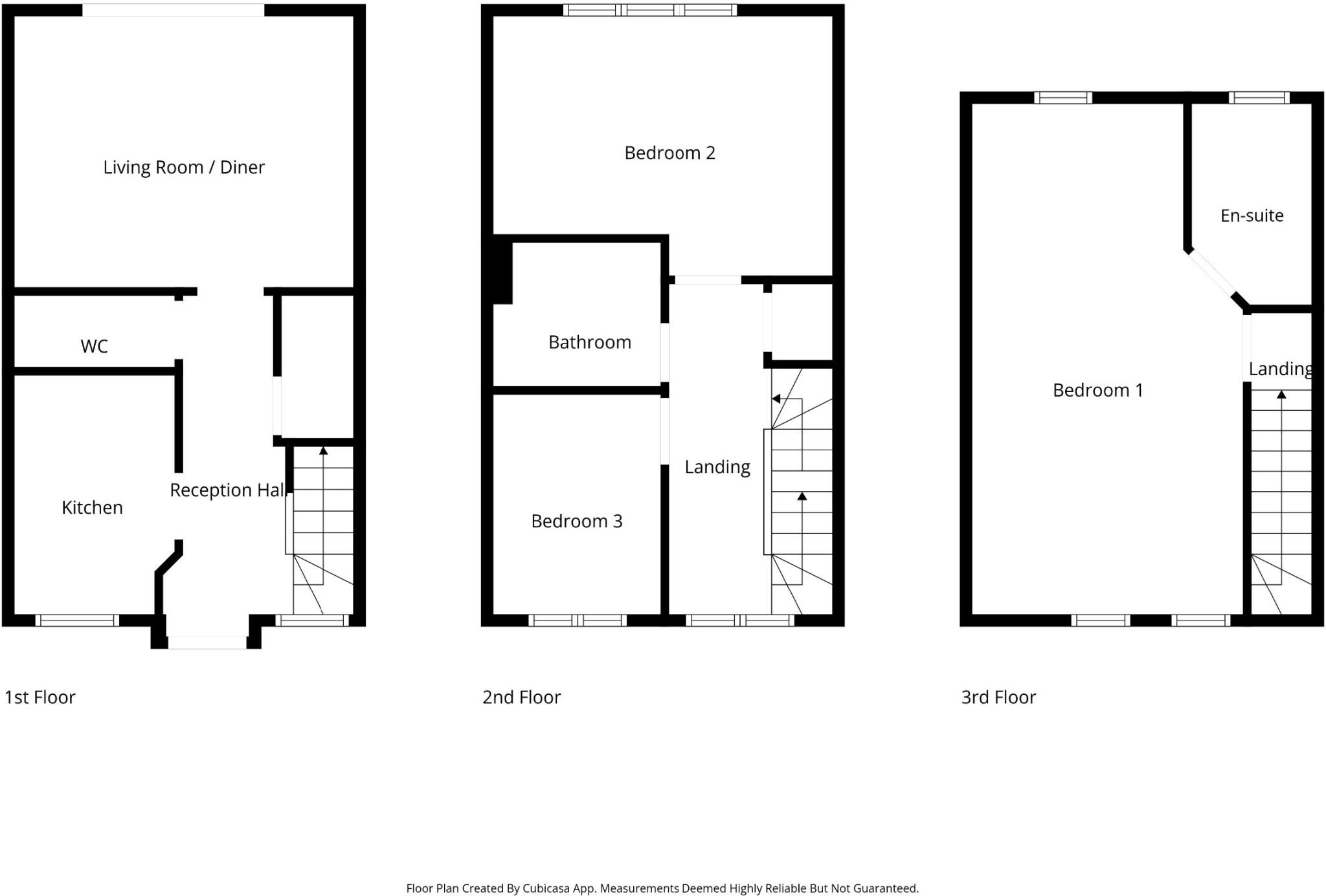
A spacious three bedroom, three storey townhouse benefiting from en-suite facilities to further compliment the family bathroom. The property is offered for sale with no upward chain.
Property Oracle says ..
This is a 3-bedroom mews property located on Pyms Lane, Crewe. It features two bathrooms and a garden. The property appears to be in generally good condition, with modern fixtures. The location offers proximity to schools and transportation links. The price is slightly above the local average but seems reasonable considering the property’s features and condition.
Therefore, we give this property 6 / 10. *Disclaimer: This is our option and does constitute a recommendation or financial advice. Do your own research. *
- Price
- 7
- Condition
- 7
- Location
- 6
- Land
- 7
- Bedrooms
- 3
- Bathrooms
- 2
The heatmap indicates the level of crime in the area. The color of the heatmap indicates the crime severity and recency.
Metrics Year-on-Year
- Average area value
- 162,625.00 £Increased by 2.92 %
- Average area rental value
- 965.00 £/moIncreased by 20.78 %
- Est rental Yield
- 7.12 %Increased by 17.30 %
- Crime Rate
- 6.00 %Unchanged by 0.00 %
Agent Activity
Wheatcroft & Lloyd created the listing.
Nearby Schools
| Name | Type | Ofsted | Distance |
|---|---|---|---|
| Leighton Academy | Academy Converter | Requires improvement | 0.86 KM |
| Underwood West Academy | Academy Converter | Good | 1.08 KM |
| Oaktree Children'S Centre | Children's Centre | 1.22 KM | |
| The Axis Academy | Free Schools Special | 1.51 KM | |
| Wistaston Academy | Academy Converter | 1.72 KM |
Images
Nearby Streets
| Name | Average Price | Average Sqft | Distance |
|---|---|---|---|
| George Dingley Close | £ 0 | 0 | 0.00 KM |
| Ken Wooley Road | £ 185,000 | 0 | 0.00 KM |
| Wakefield Close | £ 160,000 | 0 | 0.00 KM |
| Linnet Close | £ 0 | 0 | 0.00 KM |
| Turner Close | £ 0 | 0 | 0.00 KM |
Nearby Transport
| Name | NLC | TLC | Distance |
|---|---|---|---|
| Crewe | 1243 | CRE | 4.39 KM |
| Nantwich | 1247 | NAN | 7.27 KM |
| Sandbach | 1261 | SDB | 9.69 KM |
| Winsford | 2269 | WSF | 9.80 KM |
Nearby Listings
| Address | Price | Type | Score | Distance |
|---|---|---|---|---|
| Pyms Lane, Crewe | £ 180,000 | BUY | 6 / 10 | 0.00 KM |
| Ashbank Place, Crewe, CW1 | £ 160,000 | BUY | 6 / 10 | 0.10 KM |
| Ashbank Place, Crewe, CW1 | £ 180,000 | BUY | 7 / 10 | 0.11 KM |
| Pyms Lane, Crewe, CW1 | £ 160,000 | BUY | Unknown | 0.12 KM |
| Minshull New Road, Crewe, Cheshire, CW1 | £ 140,000 | BUY | 6 / 10 | 0.13 KM |
Nearby Properties
| Address | Price | Distance |
|---|---|---|
| 10 Pyms Lane | £ 190,000 | 0.03 KM |
| 12 Pyms Lane | £ 125,000 | 0.03 KM |
| 8 Pyms Lane | £ 99,500 | 0.03 KM |
| 19 Pyms Lane | £ 94,000 | 0.03 KM |
| 14 Pyms Lane | £ 174,000 | 0.06 KM |