West Stoke Road, West Broyle, PO19
By Henry Adams
£ 325,000
Reviews
2 out of 5 stars
Henry Adams says ..
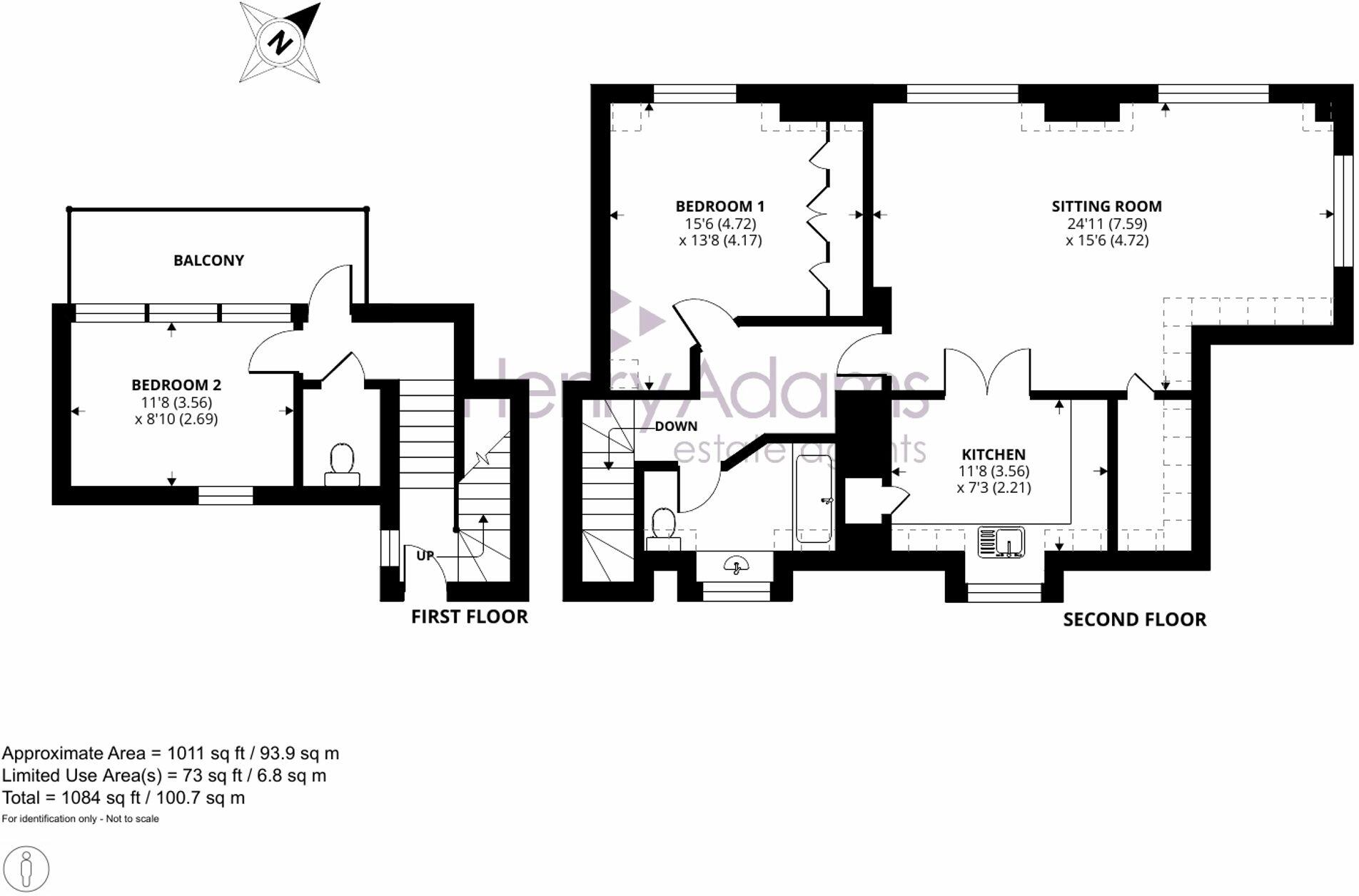
NO ONWARD CHAIN. A unique FIRST & SECOND FLOOR APARTMENT with spectacular views. Sitting room, kitchen, TWO BEDROOMS, woodland facing BALCONY. Allocated parking space. EPC-G
Property Oracle says ..
This property is a two-bedroom apartment situated in West Broyle, Chichester, West Sussex. The listing highlights its semi-rural location and proximity to Chichester city centre and transport links, including nearby railway stations such as Fishbourne. Several schools within a two-kilometre radius appear to offer quality education, which is a positive aspect for families. The provided aerial and interior images showcase the property to be a relatively well-maintained older style apartment. The interior photographs depict the apartment’s living spaces. The kitchen and bathroom are functional but lack modern features. The apartment has a balcony, suggesting that outdoor space is limited. The property is listed at £325,000. Considering the location, condition, and limited land, this price appears reasonable, although the absence of a price-per-square-foot data point for comparable properties makes a precise valuation difficult. More information on local amenities and a comparison to similar apartment sales within the immediate vicinity would assist in a more accurate assessment of the property’s value.
Therefore, we give this property 5 / 10. *Disclaimer: This is our option and does constitute a recommendation or financial advice. Do your own research. *
- Price
- 7
- Condition
- 6
- Location
- 7
- Land
- 2
- Bedrooms
- 2
- Bathrooms
- 1
- Sqft (est)
- 1,084.00
The heatmap indicates the level of crime in the area. The color of the heatmap indicates the crime severity and recency.
Metrics Year-on-Year
- Average area value
- 925,384.00 £Decreased by 3.08 %
- Est sale value
- 392,408.00 £Increased by 31.16 %
- Average area rental value
- 2,116.00 £/moIncreased by 16.52 %
- Est letting value
- 0.00 £/mo
- Est rental Yield
- 2.74 %Increased by 20.18 %
- Crime Rate
- 0.00 %
Agent Activity
Henry Adams created the listing.
Nearby Schools
| Name | Type | Ofsted | Distance |
|---|---|---|---|
| Bishop Luffa School, Chichester | Academy Converter | 1.86 KM | |
| Parklands Community Primary School | Community School | Good | 1.96 KM |
| Jessie Younghusband Primary School | Community School | Good | 2.02 KM |
| St Anthony'S School | Community Special School | Outstanding | 2.07 KM |
| Lavant Cofe Primary School | Voluntary Controlled School | Good | 2.12 KM |
Images
Nearby Streets
| Name | Average Price | Average Sqft | Distance |
|---|---|---|---|
| Skelton Mead | £ 0 | 0 | 0.00 KM |
| Piper Way | £ 0 | 0 | 0.00 KM |
| Schirmer Road | £ 84,375 | 0 | 0.00 KM |
| Harris Road | £ 0 | 0 | 0.00 KM |
| Purchase Place | £ 0 | 0 | 0.00 KM |
Nearby Transport
| Name | NLC | TLC | Distance |
|---|---|---|---|
| Fishbourne (Sussex) | 5261 | FSB | 2.51 KM |
| Chichester | 5255 | CCH | 3.26 KM |
| Bosham | 5254 | BOH | 5.49 KM |
| Nutbourne | 5262 | NUT | 9.29 KM |
Nearby Listings
| Address | Price | Type | Score | Distance |
|---|---|---|---|---|
| West Stoke Road, West Broyle, PO19 | £ 325,000 | BUY | 5 / 10 | 0.00 KM |
| West Stoke Road, West Broyle, PO19 | £ 325,000 | BUY | 8 / 10 | 0.00 KM |
| Old Broyle Road, West Broyle, PO19 | £ 1,000,000 | BUY | 8 / 10 | 0.36 KM |
| Forest Lodge, West Way, Chichester | £ 1,500,000 | BUY | 7 / 10 | 0.65 KM |
| West Broyle Drive, Chichester | £ 1,500,000 | BUY | 7 / 10 | 0.69 KM |
Nearby Properties
| Address | Price | Distance |
|---|---|---|
| West Broyle Park | £ 800,000 | 0.03 KM |
| Heronwood | £ 1,165,000 | 0.55 KM |
| Greensands | £ 825,000 | 0.55 KM |
| Woodside | £ 1,100,000 | 0.55 KM |
| Piers Lodge | £ 663,000 | 0.55 KM |