Patrick Brae House, Glen Avon Mews
By Momo Homes
£ 725,000
Reviews
4 out of 5 stars
Momo Homes says ..
Patrick Brae House, arguably one of Lanarkshire's finest Homes.
Property Oracle says ..
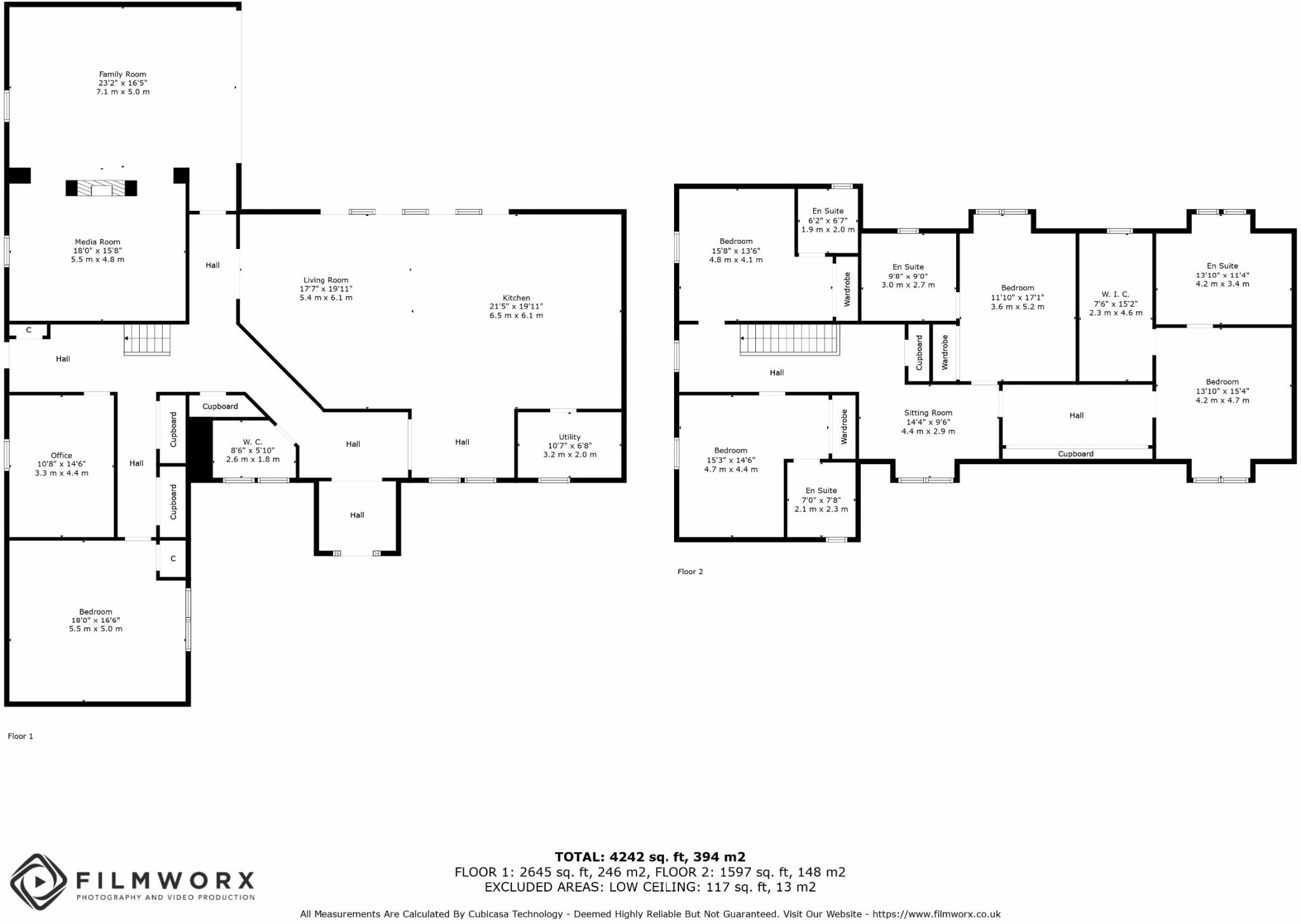
This property is a beautiful, modern home located in Larkhall, South Lanarkshire. It boasts 4 bedrooms, 5 bathrooms, and a large plot size of 4,242 sqft. The property is in excellent condition and appears to be well-maintained, with high-quality finishes throughout. The location is relatively close to Larkhall train station, offering convenient access to public transportation. While there is no information on nearby schools, the property itself is spacious and would be suitable for a family. The list price of £725,000 is not easily comparable due to a lack of similar properties in the area, however, considering the property’s size, condition, and features, it could be considered a reasonable price in the current market.
Therefore, we give this property 8 / 10. *Disclaimer: This is our option and does constitute a recommendation or financial advice. Do your own research. *
- Price
- 8
- Condition
- 10
- Location
- 7
- Land
- 9
- Bedrooms
- 4
- Bathrooms
- 5
- Sqft (est)
- 2,977.40
- Lot (est)
- 4,242.00
The heatmap indicates the level of crime in the area. The color of the heatmap indicates the crime severity and recency.
Metrics Year-on-Year
- Average area value
- 288,590.00 £Decreased by 37.85 %
- Est sale value
- 955,745.40 £Decreased by 32.70 %
- Average area rental value
- 2,219.00 £/moDecreased by 2.72 %
- Est letting value
- 5,954.80 £/moUnchanged by 0.00 %
- Est rental Yield
- 9.23 %Increased by 56.71 %
- Crime Rate
- 0.00 %
Agent Activity
Momo Homes created the listing.
Images
Nearby Streets
| Name | Average Price | Average Sqft | Distance |
|---|---|---|---|
| Millheugh | £ 0 | 0 | 0.00 KM |
| Ringsdale Avenue | £ 0 | 0 | 0.00 KM |
| Primrose Avenue | £ 100,000 | 0 | 0.00 KM |
| Earn Gardens | £ 95,000 | 0 | 0.00 KM |
| Ness Gardens | £ 0 | 0 | 0.00 KM |
Nearby Transport
| Name | NLC | TLC | Distance |
|---|---|---|---|
| Larkhall | 9728 | LRH | 1.86 KM |
| Merryton | 9705 | MEY | 2.97 KM |
| Chatelherault | 9707 | CTE | 5.64 KM |
| Shieldmuir | 9552 | SDM | 6.58 KM |
| Airbles | 9695 | AIR | 6.99 KM |
Nearby Listings
| Address | Price | Type | Score | Distance |
|---|---|---|---|---|
| Primrose Avenue, Larkhall, ML9 | £ 95,000 | BUY | 6 / 10 | 0.61 KM |
| Glen Avenue, Larkhall | £ 130,000 | BUY | 7 / 10 | 0.62 KM |
| Glen Avenue, Larkhall, ML9 | £ 110,000 | BUY | 6 / 10 | 0.62 KM |
| 150 Glen Avenue, Larkhall, ML9 1LA | £ 65,000 | BUY | 6 / 10 | 0.69 KM |
| Craigbank Street, Larkhall, Lanarkshire, ML9 | £ 115,000 | BUY | 7 / 10 | 0.70 KM |