PLOTS | PLANNING | RANGEWORTHY
HO

PLOTS | PLANNING | RANGEWORTHY

By Hollis Morgan Auctions

£ 200,000

Reviews

3 out of 5 stars

Hollis Morgan Auctions says ..

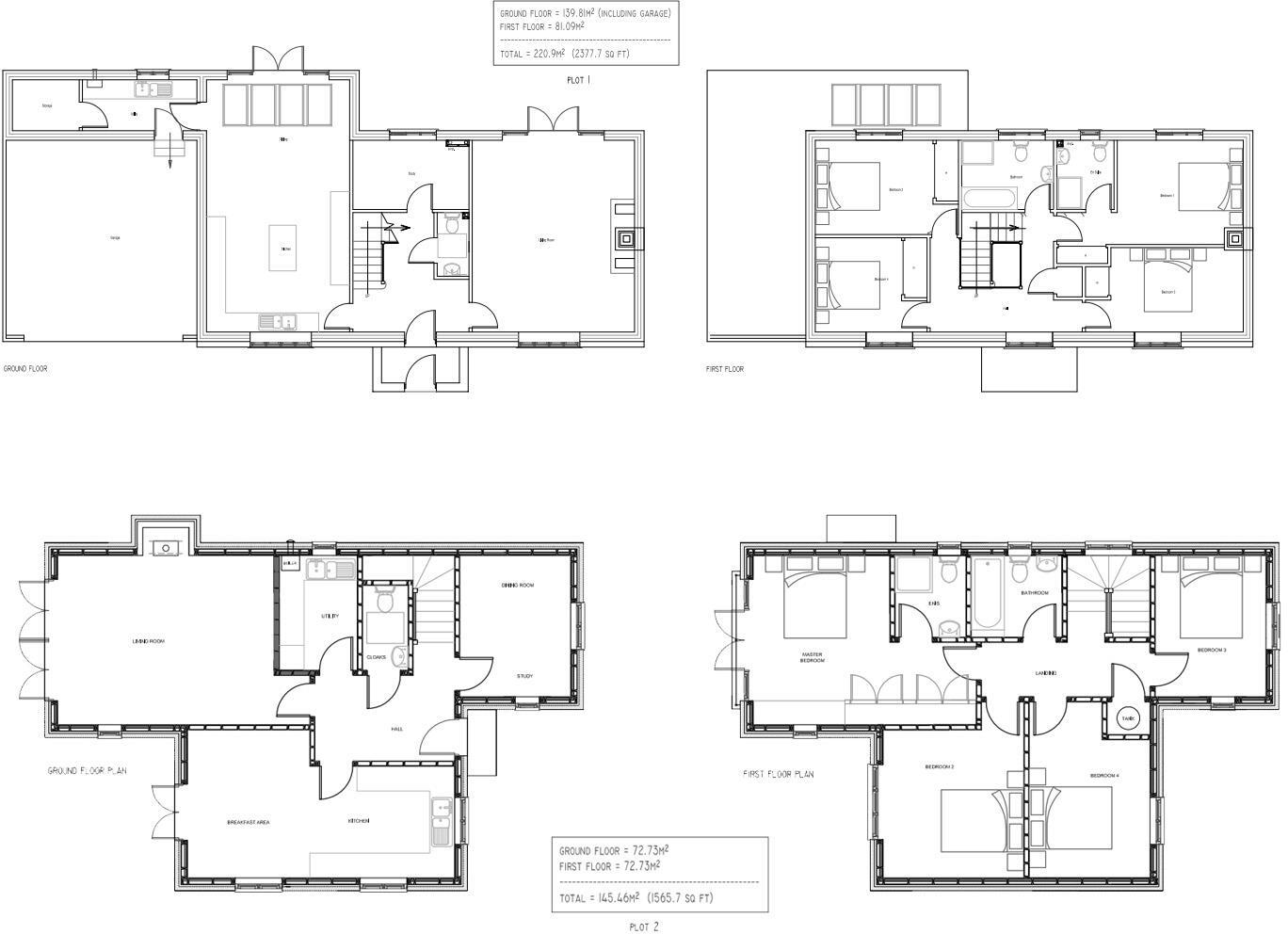
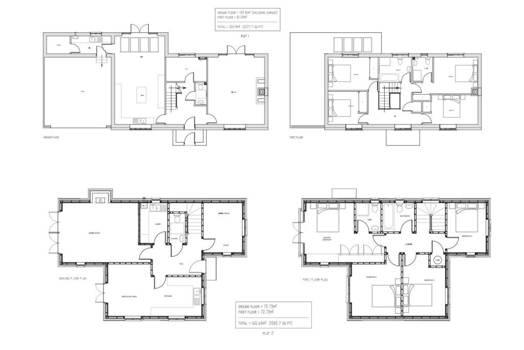
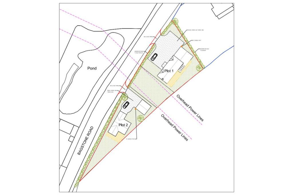
Hollis Morgan – JUNE LIVE ONLINE AUCTION – A Freehold DEVELOPMENT SITE ( 0.34 acre ) with PLANNING GRANTED to erect 2 x DETACHED HOUSES with GARDEN and GARAGE | GDV £1.3m

Property Oracle says ..

This plot of land presents a unique opportunity in Rangeworthy, South Gloucestershire. The plot size is substantial, offering considerable space for a new build. The location is convenient, with proximity to a well-regarded primary school and good transport links. However, the price, while seemingly low compared to average house prices in the area, needs to be considered in the context of the construction costs required to develop the plot. Potential buyers should carefully assess the building costs before making an offer.

Therefore, we give this property 6 / 10. *Disclaimer: This is our option and does constitute a recommendation or financial advice. Do your own research. *

Price
4
Condition
0
Location
8
Land
7
Bedrooms
8
Bathrooms
4
Sqft (est)
1,722.23
Lot (est)
2,377.75

The heatmap indicates the level of crime in the area. The color of the heatmap indicates the crime severity and recency.

Metrics Year-on-Year

Average area value
477,492.00 £
Decreased by 9.28 %
from 526,317.00 £
Est sale value
775,003.50 £
Increased by 19.36 %
from 649,280.71 £
Average area rental value
1,915.00 £/mo
Increased by 20.52 %
from 1,589.00 £/mo
Est letting value
1,722.23 £/mo
Unchanged by 0.00 %
from 1,722.23 £/mo
Est rental Yield
4.81 %
Increased by 32.87 %
from 3.62 %
Crime Rate
46.00 %
Unchanged by 0.00 %
from 46.00 %

Agent Activity

  • Hollis Morgan Auctions created the listing.

Nearby Schools

NameTypeOfstedDistance
Rangeworthy Church Of England Primary SchoolVoluntary Controlled SchoolGood0.42 KM
North Road Community Primary SchoolCommunity SchoolGood3.18 KM
Iron Acton Church Of England Primary SchoolVoluntary Controlled SchoolGood3.26 KM
Brimsham Green SchoolCommunity SchoolGood3.79 KM
St Andrew'S Church Of England Primary School, CromhallVoluntary Controlled SchoolGood3.89 KM

Images

Building Plots @ The Grange, Bagstone Road Bagston Building Plots @ The Grange, Bagstone Road Bagston Building Plots @ The Grange, Bagstone Road Bagston Building Plots @ The Grange, Bagstone Road Bagston Building Plots @ The Grange, Bagstone Road Bagston Building Plots @ The Grange, Bagstone Road Bagston Building Plots @ The Grange, Bagstone Road Bagston Building Plots @ The Grange, Bagstone Road Bagston Building Plots @ The Grange, Bagstone Road Bagston Building Plots @ The Grange, Bagstone Road Bagston Hollis Morgan Live Online Land and Property Auctio Hollis Morgan Live Online Auctions How to Register

Nearby Streets

NameAverage PriceAverage SqftDistance
Rangeworthy Park £ 000.00 KM
Redmay Grove £ 795,00000.00 KM
Manor Road £ 000.00 KM
B4058 £ 808,75000.00 KM

Nearby Transport

NameNLCTLCDistance
Yate3380YAE4.44 KM

Nearby Listings

AddressPriceTypeScoreDistance
PLOTS | PLANNING | RANGEWORTHY £ 200,000BUY6 / 100.00 KM
Church Lane, Rangeworthy, BS37 £ 650,000BUYUnknown0.37 KM
Church Lane, Bristol £ 925,000BUY5 / 100.41 KM
Church Lane, Rangeworthy £ 595,000BUY7 / 100.46 KM
Rangeworthy Park, Rangeworthy £ 795,000BUY6 / 100.49 KM

Nearby Properties

AddressPriceDistance
Woodland View £ 358,0000.22 KM
Court View House £ 280,0000.22 KM
Woodbury Cottage £ 450,0000.42 KM
School House £ 370,0000.42 KM
Orchard House £ 465,0000.49 KM