Tower Road, Hilgay, Downham Market, PE38
By Morris Armitage
£ 375,000
Reviews
3 out of 5 stars
Morris Armitage says ..
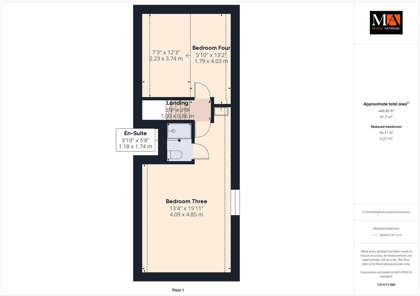
Located within this popular village of Hilgay is this spacious and flexible, four bedroom, detached chalet bungalow. The accommodation includes the entrance hall which has stairs to the first floor bedrooms. The ground floor consists of the lounge positioned to the front with dual aspect windo...
Property Oracle says ..
This four-bedroom, two-bathroom property located on Tower Road in Hilgay offers a blend of rural tranquility and convenient access to amenities. Situated in a small village, it benefits from a relatively peaceful setting while remaining reasonably close to Downham Market for additional facilities and transport links, including a train station. The property appears well-maintained, though the interior shows signs of age in some areas. The kitchen has been renovated, and the property features a spacious conservatory. The substantial garden is a significant asset, providing considerable outdoor living space and offering the potential for further enhancements.
The pricing is competitive compared to some homes in nearby streets. The larger size of this property and its significant garden are notable features and likely contribute to its price point. Overall, this property is likely suited to families or individuals seeking a balance between a quiet rural lifestyle and convenient access to town facilities.
Therefore, we give this property 7 / 10. *Disclaimer: This is our option and does constitute a recommendation or financial advice. Do your own research. *
- Price
- 7
- Condition
- 6
- Location
- 7
- Land
- 8
- Bedrooms
- 4
- Bathrooms
- 2
- Sqft (est)
- 1,727.61
The heatmap indicates the level of crime in the area. The color of the heatmap indicates the crime severity and recency.
Metrics Year-on-Year
- Average area value
- 245,074.00 £Decreased by 15.93 %
- Est sale value
- 405,988.35 £Decreased by 37.50 %
- Average area rental value
- 1,254.00 £/moDecreased by 5.43 %
- Est letting value
- 1,727.61 £/moUnchanged by 0.00 %
- Est rental Yield
- 6.14 %Increased by 12.45 %
- Crime Rate
- 297.00 %Unchanged by 0.00 %
Agent Activity
Morris Armitage created the listing.
Nearby Schools
| Name | Type | Ofsted | Distance |
|---|---|---|---|
| Hilgay Riverside Academy | Academy Converter | Requires improvement | 0.33 KM |
| Ten Mile Bank Riverside Academy | Academy Converter | Good | 3.23 KM |
| Denver Voluntary Controlled Primary School | Voluntary Controlled School | Good | 3.61 KM |
| Southery Academy | Academy Sponsor Led | Good | 3.65 KM |
| Downham Market Academy | Academy Sponsor Led | 5.25 KM |
Images
Nearby Streets
| Name | Average Price | Average Sqft | Distance |
|---|---|---|---|
| Power's Place | £ 0 | 0 | 0.00 KM |
| Hill's Court | £ 475,000 | 0 | 0.00 KM |
| Church Road | £ 440,000 | 0 | 0.00 KM |
| Green Hill | £ 0 | 0 | 0.00 KM |
| Hubbard's Drove | £ 372,500 | 0 | 0.00 KM |
Nearby Transport
| Name | NLC | TLC | Distance |
|---|---|---|---|
| Downham Market | 7055 | DOW | 5.74 KM |
Nearby Listings
| Address | Price | Type | Score | Distance |
|---|---|---|---|---|
| Tower Road, Hilgay, Downham Market, PE38 | £ 375,000 | BUY | 7 / 10 | 0.00 KM |
| Tower Road, Hilgay, Downham Market, PE38 | £ 425,000 | BUY | 5 / 10 | 0.00 KM |
| Powers Place, Hilgay, Downham Market, PE38 | £ 275,000 | BUY | 7 / 10 | 0.10 KM |
| Powers Place, Hilgay, DOWNHAM MARKET | £ 260,000 | BUY | 7 / 10 | 0.15 KM |
| Foresters Avenue, Hilgay, Downham Market | £ 675,000 | BUY | 7 / 10 | 0.20 KM |
Nearby Properties
| Address | Price | Distance |
|---|---|---|
| 18a Tower Road | £ 170,000 | 0.01 KM |
| 36 Tower Road | £ 255,000 | 0.01 KM |
| 4 Tower Road | £ 184,000 | 0.01 KM |
| 44 Tower Road | £ 185,000 | 0.02 KM |
| Roanda | £ 140,000 | 0.02 KM |