JI says ..
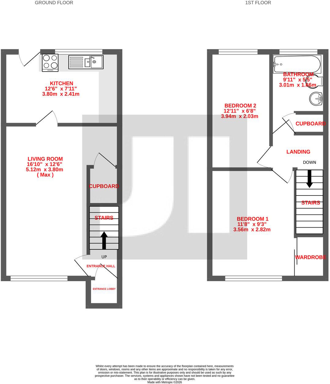
Two bedroom inner terraced townhouse, being situated in a short row of three properties. Ideally located for Shipley Town centre and it's range of amenities. Accommodation has a gas central heating system and Upvc double glazing. Garden areas to both the front and the rear. Offered with no upw...
Property Oracle says ..
This is a two-bedroom terraced property located in Shipley, West Yorkshire. The property is situated in a convenient location, close to local schools, amenities, and transportation links. While the property is in reasonable condition, it would benefit from some modernisation. The property features a garden, which is a desirable feature for many buyers. The asking price of £150,000 appears to be reasonable, considering the location, size, and condition of the property.
Therefore, we give this property 6 / 10. *Disclaimer: This is our option and does constitute a recommendation or financial advice. Do your own research. *
- Price
- 8
- Condition
- 5
- Location
- 7
- Land
- 6
- Bedrooms
- 2
- Bathrooms
- 1
- Sqft (est)
- 555.97
The heatmap indicates the level of crime in the area. The color of the heatmap indicates the crime severity and recency.
Metrics Year-on-Year
- Average area value
- 256,364.00 £Increased by 21.19 %
- Est sale value
- 155,115.63 £Increased by 30.37 %
- Average area rental value
- 934.00 £/moIncreased by 31.00 %
- Est letting value
- 555.97 £/mo
- Est rental Yield
- 4.37 %Increased by 8.17 %
- Crime Rate
- 7.00 %Unchanged by 0.00 %
Agent Activity
JI created the listing.
Nearby Schools
| Name | Type | Ofsted | Distance |
|---|---|---|---|
| Shipley Cofe Primary School | Academy Sponsor Led | 0.21 KM | |
| Wycliffe Cofe Primary School | Academy Sponsor Led | 0.91 KM | |
| Bradford Alternative Provision Academy | Academy Alternative Provision Converter | 0.97 KM | |
| High Crags Primary Leadership Academy | Academy Sponsor Led | Good | 1.05 KM |
| St Walburga'S Catholic Primary School, A Voluntary Academy | Academy Converter | Good | 1.06 KM |
Images
Nearby Streets
| Name | Average Price | Average Sqft | Distance |
|---|---|---|---|
| Well Croft | £ 69,125 | 0 | 0.00 KM |
| Croft Street | £ 0 | 0 | 0.00 KM |
| Charles Court | £ 234,950 | 0 | 0.00 KM |
| Grange Terrace | £ 160,000 | 0 | 0.00 KM |
| Thompson Street | £ 195,000 | 0 | 0.00 KM |
Nearby Transport
| Name | NLC | TLC | Distance |
|---|---|---|---|
| Shipley (Yorks) | 8347 | SHY | 0.80 KM |
| Saltaire | 8561 | SAE | 1.44 KM |
| Frizinghall | 8556 | FZH | 1.68 KM |
| Baildon | 8552 | BLD | 3.68 KM |
| Bradford Forster Square | 8346 | BDQ | 4.80 KM |
Nearby Listings
| Address | Price | Type | Score | Distance |
|---|---|---|---|---|
| Castle Mews, Shipley, BD18 | £ 150,000 | BUY | 6 / 10 | 0.00 KM |
| Hall Royd, Shipley, BD18 | £ 210,000 | BUY | 4 / 10 | 0.04 KM |
| Birklands Road, Shipley, West Yorkshire, BD18 | £ 235,000 | BUY | Unknown | 0.10 KM |
| Birklands Road, Shipley | £ 240,000 | BUY | 7 / 10 | 0.11 KM |
| Birklands Terrace, Shipley | £ 255,000 | BUY | 6 / 10 | 0.13 KM |
Nearby Properties
| Address | Price | Distance |
|---|---|---|
| 3 Castle Mews | £ 112,000 | 0.00 KM |
| 5 Castle Mews | £ 95,000 | 0.00 KM |
| 6 Westcliffe Mews | £ 93,000 | 0.03 KM |
| 4 Westcliffe Mews | £ 111,000 | 0.03 KM |
| 10 Westcliffe Mews | £ 124,950 | 0.03 KM |