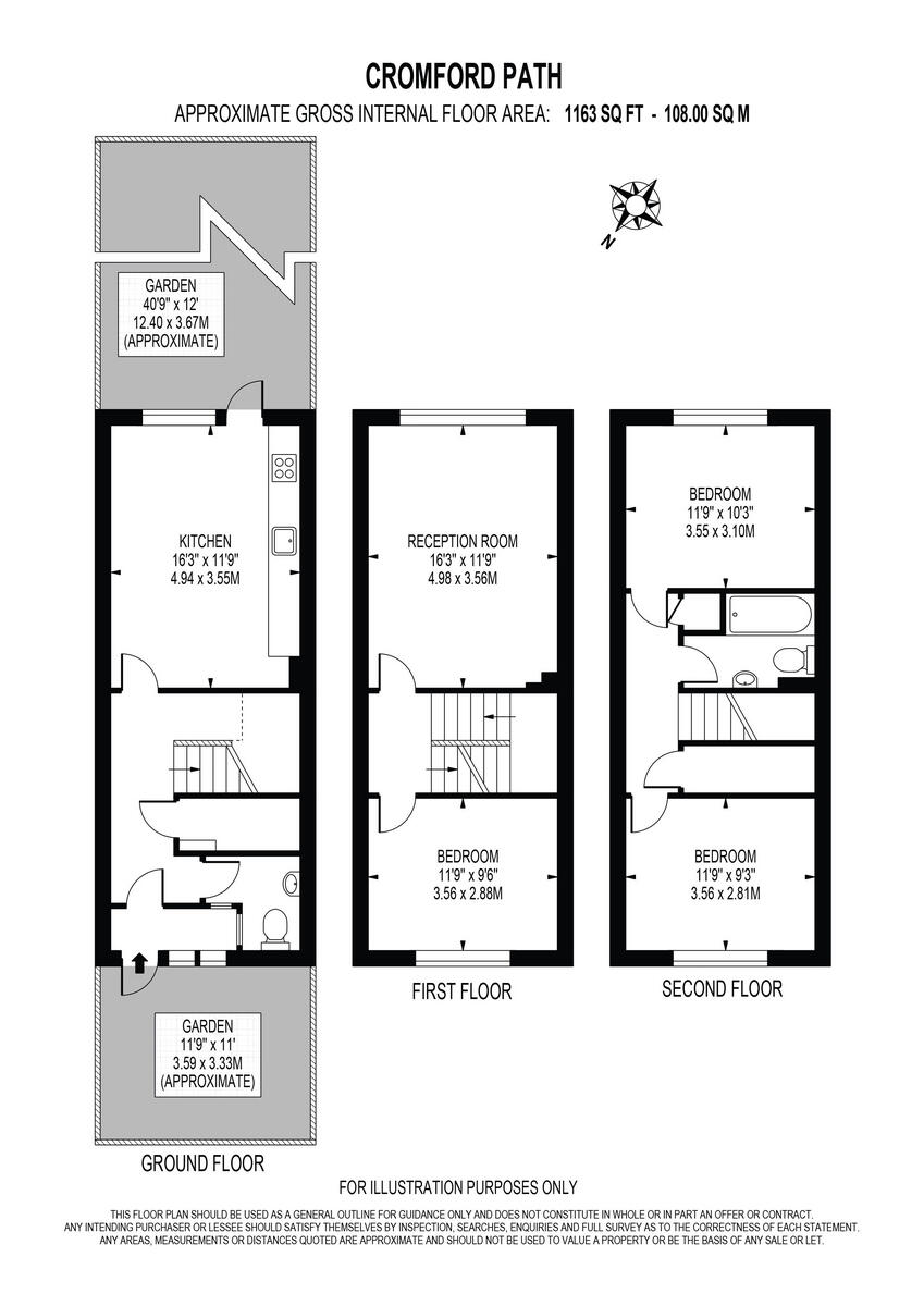
Cromford Path, Clapton, E5
By Felicity J Lord
£ 600,000
Reviews
2 out of 5 stars
Felicity J Lord says ..
We are delighted to present this 3-bedroom mid-terraced house, offering approximately 1,163 square feet of internal living space
Property Oracle says ..
This 3-bedroom mid-terraced house located in Clapton, E5, offers a comfortable living space within a reasonably convenient location. The property benefits from being close to several primary schools with positive Ofsted ratings and public transport links via the London Overground. The included garden is an attractive feature for families. However, the interior of the property requires modernisation; the kitchen and bathroom appear dated, and a more thorough deep clean might be necessary. While the price of £600,000 seems fair for the area and its features, buyers should factor in potential renovation costs to achieve their ideal living space. The property is likely to appeal to families or those looking for a property which they can update to their own taste.
Therefore, we give this property 5 / 10. *Disclaimer: This is our option and does constitute a recommendation or financial advice. Do your own research. *
- Price
- 7
- Condition
- 5
- Location
- 7
- Land
- 4
- Bedrooms
- 3
- Bathrooms
- 1
- Sqft (est)
- 1,162.50
The heatmap indicates the level of crime in the area. The color of the heatmap indicates the crime severity and recency.
Metrics Year-on-Year
- Average area value
- 786,667.00 £Decreased by 0.96 %
- Est sale value
- 876,525.00 £Decreased by 11.29 %
- Average area rental value
- 2,720.00 £/moDecreased by 8.48 %
- Est letting value
- 2,325.00 £/moDecreased by 33.33 %
- Est rental Yield
- 4.15 %Decreased by 7.57 %
- Crime Rate
- 4.00 %Unchanged by 0.00 %
Agent Activity
Felicity J Lord marked this listing as sold.
Felicity J Lord created the listing.
Nearby Schools
| Name | Type | Ofsted | Distance |
|---|---|---|---|
| Mandeville Primary School | Community School | Good | 0.30 KM |
| Rushmore Primary School | Community School | Good | 0.55 KM |
| Daubeney Primary School | Community School | Requires improvement | 0.56 KM |
| Clapton Park Children'S Centre | Children's Centre Linked Site | 0.59 KM | |
| Daubeney Children'S Centre | Children's Centre | 0.60 KM |
Images
Nearby Streets
| Name | Average Price | Average Sqft | Distance |
|---|---|---|---|
| Thyme Walk | £ 0 | 0 | 0.00 KM |
| Chowdhury Walk | £ 625,000 | 0 | 0.00 KM |
| Fisher Close | £ 0 | 0 | 0.00 KM |
| Fletching Road | £ 0 | 0 | 0.00 KM |
| Chatsworth Road | £ 0 | 0 | 0.00 KM |
Nearby Transport
| Name | NLC | TLC | Distance |
|---|---|---|---|
| Homerton | 6979 | HMN | 0.98 KM |
| Lea Bridge | 6927 | LEB | 1.33 KM |
| Clapton | 6926 | CPT | 1.79 KM |
| Hackney Central | 6977 | HKC | 1.84 KM |
| Hackney Downs | 6867 | HAC | 2.23 KM |
Nearby Listings
| Address | Price | Type | Score | Distance |
|---|---|---|---|---|
| Cromford Path, London, E5 | £ 640,000 | BUY | 7 / 10 | 0.03 KM |
| Cromford Path, Homerton, London, E5 | £ 750,000 | BUY | 6 / 10 | 0.06 KM |
| Cromford Path, London, E5 | £ 725,000 | BUY | 6 / 10 | 0.06 KM |
| Rushmore Road, Homerton, London, E5 | £ 680,000 | BUY | 7 / 10 | 0.11 KM |
| Glyn Road, London, E5 | £ 450,000 | BUY | 8 / 10 | 0.14 KM |
Nearby Properties
| Address | Price | Distance |
|---|---|---|
| 89 Overbury Street | £ 360,000 | 0.05 KM |
| 75 Overbury Street | £ 300,000 | 0.05 KM |
| 99 Overbury Street | £ 490,000 | 0.05 KM |
| 4 Cromford Path | £ 286,000 | 0.07 KM |
| 5 Cromford Path | £ 215,000 | 0.07 KM |