The Park Apartments, Broad Walk, Buxton
JO

The Park Apartments, Broad Walk, Buxton

By Jon Mellor & Co Estate Agents

£ 650,000

Reviews

3 out of 5 stars

Jon Mellor & Co Estate Agents says ..

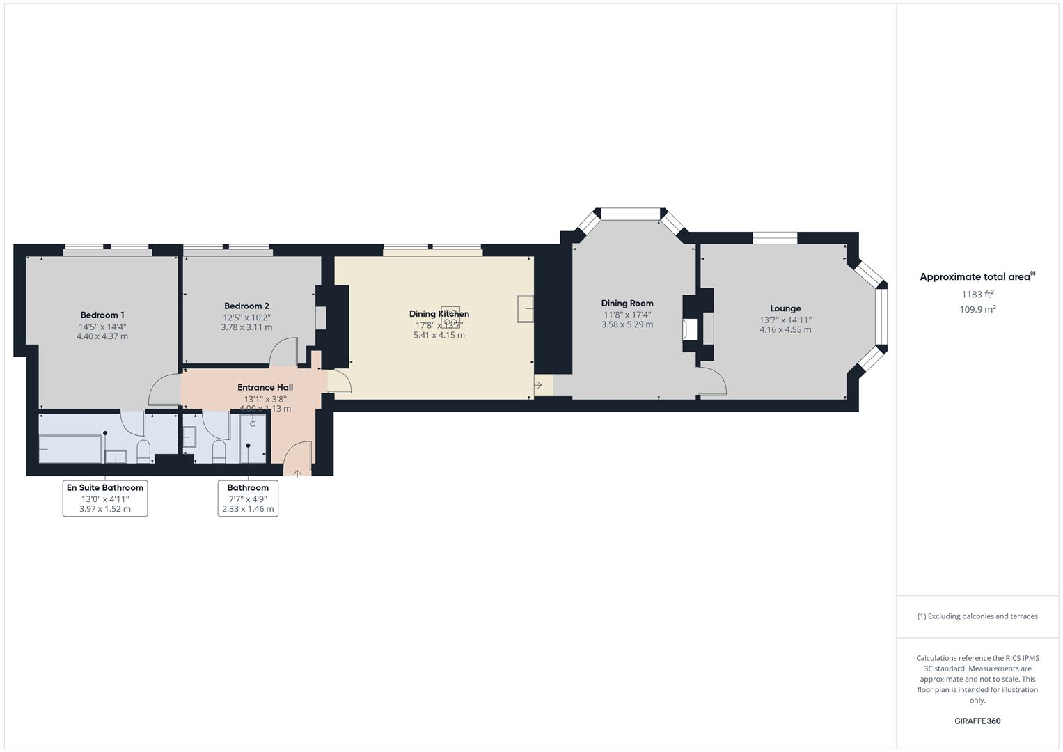
A delightful first floor apartment in this recently converted development offering excellent accommodation with two bedrooms, two bathrooms and two reception rooms. Presented to the highest of standards throughout with quality fittings including quartz work surfaces and a selection of fitted app...

Property Oracle says ..

The property is a 2-bedroom flat located on Broad Walk in Buxton Central. The location benefits from being near several schools and Buxton train station. The images show that the property has been modernised and is in good condition. The property is listed at £650,000, which is higher than the average price in the area.

Therefore, we give this property 7 / 10. *Disclaimer: This is our option and does constitute a recommendation or financial advice. Do your own research. *

Price
6
Condition
9
Location
8
Land
5
Bedrooms
2
Bathrooms
2
Sqft (est)
1,182.95

The heatmap indicates the level of crime in the area. The color of the heatmap indicates the crime severity and recency.

Metrics Year-on-Year

Average area value
256,000.00 £
Increased by 4.70 %
from 244,515.00 £
Est sale value
331,226.00 £
Increased by 73.91 %
from 190,454.95 £
Average area rental value
995.00 £/mo
Decreased by 24.68 %
from 1,321.00 £/mo
Est letting value
1,182.95 £/mo
from 0.00 £/mo
Est rental Yield
4.66 %
Decreased by 28.09 %
from 6.48 %
Crime Rate
15.00 %
Unchanged by 0.00 %
from 15.00 %

Agent Activity

  • Jon Mellor & Co Estate Agents created the listing.

Nearby Schools

NameTypeOfstedDistance
Buxton And Leek CollegeMiscellaneous0.49 KM
Buxton Community SchoolVoluntary Controlled SchoolGood0.70 KM
Buxton Infant SchoolCommunity SchoolOutstanding0.72 KM
Buxton Junior SchoolCommunity SchoolGood0.72 KM
St Thomas More Catholic Voluntary AcademyAcademy Converter0.86 KM

Images

CAM03145G0-PR0367-STILL005.jpg CAM03145G0-PR0356-STILL001.jpg CAM03145G0-PR0356-STILL002.jpg CAM03145G0-PR0356-STILL004.jpg CAM03145G0-PR0356-STILL007.jpg CAM03145G0-PR0356-STILL009.jpg CAM03145G0-PR0367-STILL009.jpg CAM03145G0-PR0356-STILL010.jpg CAM03145G0-PR0367-STILL007.jpg CAM03145G0-PR0356-STILL006.jpg CAM03145G0-PR0356-STILL008.jpg CAM03145G0-PR0367-STILL005.jpg CAM03145G0-PR0367-STILL003.jpg CAM03145G0-PR0367-STILL008.jpg CAM03145G0-PR0367-STILL004.jpg

Nearby Streets

NameAverage PriceAverage SqftDistance
Saint. James Terrace £ 425,00000.00 KM
Back Hall Bank £ 244,75000.00 KM
Bath Road £ 000.00 KM
The Square £ 000.00 KM
Spencer Road £ 000.00 KM

Nearby Transport

NameNLCTLCDistance
Buxton2946BUX0.75 KM
Dove Holes2766DVH5.80 KM
Chapel-En-Le-Frith2762CEF6.29 KM
Chinley2823CLY9.86 KM

Nearby Listings

AddressPriceTypeScoreDistance
The Park Apartments, Broad Walk, Buxton £ 650,000BUY7 / 100.00 KM
12 Broad Walk, Buxton £ 600,000BUY5 / 100.00 KM
Broad Walk, Buxton £ 550,000BUY5 / 100.00 KM
The Park Apartments, Broad Walk, Buxton £ 725,000BUY6 / 100.00 KM
12 Broad Walk, Buxton £ 500,000BUYUnknown0.00 KM

Nearby Properties

AddressPriceDistance
29 St James Terrace £ 350,0000.10 KM
15a St James Terrace £ 210,0000.10 KM
15 St James Terrace £ 37,0000.10 KM
9 St James Terrace £ 130,0000.10 KM
25 St James Terrace £ 220,0000.10 KM