Bridge Street, Llanfair Caereinion, Welshpool
HA

Bridge Street, Llanfair Caereinion, Welshpool

By Halls Estate Agents

£ 158,500

Reviews

3 out of 5 stars

Halls Estate Agents says ..

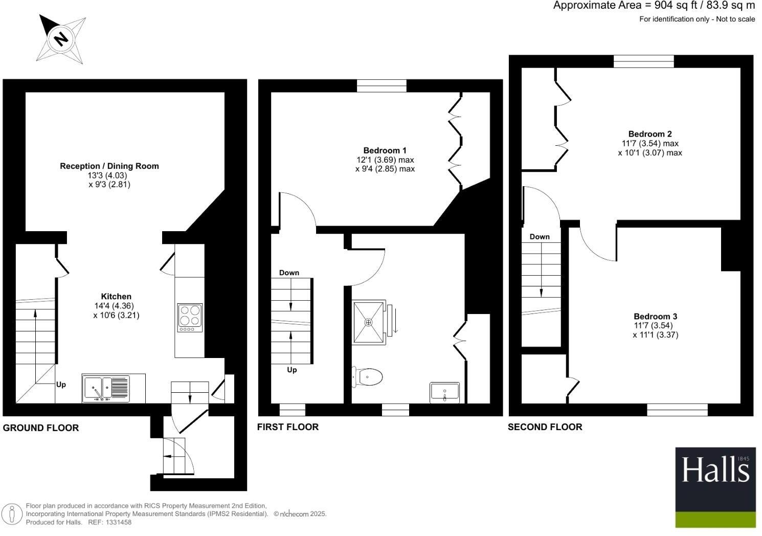
Situated a short walk from local amenities, this three bedroom mid terrace has undergone a comprehensive refurbishment including new DPC with a 10 year guarantee, new boiler and central heating system, refitted kitchen and shower room, complete redecoration inside and out, new fuse board and new ...

Property Oracle says ..

This terraced property on Bridge Street, Llanfair Caereinion, offers a blend of traditional charm and modern updates. The interior features a recently renovated kitchen and bathroom, while retaining some of its original character. The property includes three bedrooms and one bathroom, making it suitable for a small family or couple. The rear garden provides a pleasant outdoor space. The location is central, with convenient access to local schools and amenities. Overall, this property represents a good opportunity for buyers seeking a well-maintained home in a desirable village setting.

Therefore, we give this property 7 / 10. *Disclaimer: This is our option and does constitute a recommendation or financial advice. Do your own research. *

Price
8
Condition
7
Location
7
Land
6
Bedrooms
3
Bathrooms
1
Sqft (est)
206.24

The heatmap indicates the level of crime in the area. The color of the heatmap indicates the crime severity and recency.

Metrics Year-on-Year

Average area value
311,704.00 £
Increased by 34.17 %
from 232,321.00 £
Est sale value
75,483.84 £
Increased by 10.57 %
from 68,265.44 £
Average area rental value
1,067.00 £/mo
Decreased by 19.35 %
from 1,323.00 £/mo
Est letting value
206.24 £/mo
Unchanged by 0.00 %
from 206.24 £/mo
Est rental Yield
4.11 %
Decreased by 39.82 %
from 6.83 %
Crime Rate
143.00 %
Unchanged by 0.00 %
from 143.00 %

Agent Activity

  • Halls Estate Agents created the listing.

Nearby Schools

NameTypeOfstedDistance
Llanfair Caereinion C.P.Welsh Establishment0.28 KM
Ysgol Uwchradd Caereinion High SchoolWelsh Establishment0.41 KM
Ysgol Gymraeg Y TrallwngWelsh Establishment0.72 KM
Ysgol PontrobertWelsh Establishment5.99 KM
Ysgol Rhiw BechanWelsh Establishment7.92 KM

Images

Front row.jpg Bedroom 1.jpg Bedroom 1 corner.jpg Shower Room with W.C..jpg Shower Room.jpg Bedroom 2 view.jpg Bedroom 2.jpg Bedroom 3.jpg Front.jpg Rear.jpg Patio view.jpg Patio area.jpg Decked seating area.jpg Seating area.jpg Kitchen.jpg Kitchen corner.jpg Kitchen with view to Lounge.jpg Lounge view.jpg Lounge.jpg Bedroom 1 wardrobes.jpg

Nearby Streets

NameAverage PriceAverage SqftDistance
Mount Road £ 000.00 KM
Maes Derwyn £ 165,00000.00 KM

Nearby Listings

AddressPriceTypeScoreDistance
Bridge Street, Llanfair Caereinion, Welshpool £ 158,500BUY7 / 100.00 KM
Bridge Street, Llanfair Caereinion, Welshpool £ 162,500BUY7 / 100.00 KM
Bridge Street, Llanfair Caereinion, Welshpool £ 185,000BUY5 / 100.02 KM
Bridge Street, Llanfair Caereinion, Welshpool, SY21 £ 250,000BUY6 / 100.04 KM
Bridge Street, Llanfair Caereinion, Welshpool, Powys, SY21 £ 175,000BUY6 / 100.05 KM

Nearby Properties

AddressPriceDistance
Gwenallt £ 220,0000.05 KM
Mona House £ 130,0000.06 KM
Eldon House £ 122,5000.06 KM
Paris House £ 85,0000.06 KM
Bridge House £ 224,9500.06 KM