TH
Plot 16 The Regent (Lifetime), Pendle Farm, Worsthorne
By The Agency UK
£ 320,000
Reviews
3 out of 5 stars
The Agency UK says ..
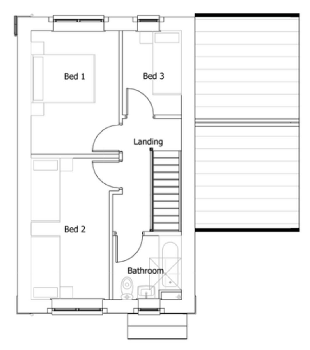
A NATURAL STONE LIFETIME home with SOLAR PANELS, offering ACCESSIBLE living in a beautiful VILLAGE setting. SPACIOUS layout with STEP-FREE access, WIDER doorways, and a PRIVATE GARDEN
Property Oracle says ..
Therefore, we give this property 7 / 10. *Disclaimer: This is our option and does constitute a recommendation or financial advice. Do your own research. *
- Price
- 8
- Condition
- 9
- Location
- 7
- Land
- 6
- Bedrooms
- 3
- Bathrooms
- 2
- Sqft (est)
- 1,025.00
The heatmap indicates the level of crime in the area. The color of the heatmap indicates the crime severity and recency.
Metrics Year-on-Year
- Average area value
- 537,450.00 £Increased by 70.34 %
- Est sale value
- 405,900.00 £Increased by 40.43 %
- Average area rental value
- 988.00 £/moIncreased by 30.00 %
- Est letting value
- 0.00 £/mo
- Est rental Yield
- 2.21 %Decreased by 23.53 %
- Crime Rate
- 78.00 %Unchanged by 0.00 %
from 315,507.00 £
from 289,050.00 £
from 760.00 £/mo
from 0.00 £/mo
from 2.89 %
from 78.00 %
Agent Activity
The Agency UK created the listing.
Nearby Schools
| Name | Type | Ofsted | Distance |
|---|---|---|---|
| Worsthorne Primary School | Community School | Good | 0.30 KM |
| Compass Community School Lancashire | Other Independent Special School | 2.65 KM | |
| Burnley Brunshaw Primary School | Community School | Requires improvement | 3.21 KM |
| Briercliffe Primary School | Community School | Good | 3.26 KM |
| Unity College | Foundation School | Good | 3.39 KM |
Images
Nearby Streets
| Name | Average Price | Average Sqft | Distance |
|---|---|---|---|
| Chapel Street | £ 159,950 | 0 | 0.00 KM |
| Hall Street | £ 0 | 0 | 0.00 KM |
| Halstead Street | £ 0 | 0 | 0.00 KM |
| Dawson Drive | £ 0 | 0 | 0.00 KM |
| Deerpark Road | £ 229,950 | 0 | 0.00 KM |
Nearby Transport
| Name | NLC | TLC | Distance |
|---|---|---|---|
| Nelson | 2565 | NEL | 5.91 KM |
| Burnley Central | 2550 | BNC | 5.98 KM |
| Burnley Manchester Road | 2549 | BYM | 6.37 KM |
| Brierfield | 2554 | BRF | 6.49 KM |
| Burnley Barracks | 2743 | BUB | 7.40 KM |
Nearby Listings
| Address | Price | Type | Score | Distance |
|---|---|---|---|---|
| Ormerod Street, Worsthorne, Lancashire, BB10 3NU | £ 265,000 | BUY | 6 / 10 | 0.00 KM |
| Pendle Farm, Worsthorne, BB10 | £ 400,000 | BUY | 7 / 10 | 0.00 KM |
| Plot 22 The Emily, Pendle Farm, Worsthorne | £ 400,000 | BUY | 5 / 10 | 0.00 KM |
| Plot 11 The Berkeley, Pendle Farm, Worsthorne | £ 495,000 | BUY | 6 / 10 | 0.00 KM |
| Plot 29, The Byre Pendle Farm, Worsthorne | £ 315,000 | BUY | 7 / 10 | 0.00 KM |
Nearby Properties
| Address | Price | Distance |
|---|---|---|
| 19 Ormerod Street | £ 250,000 | 0.01 KM |
| 40 Ormerod Street | £ 150,000 | 0.01 KM |
| 20 Ormerod Street | £ 210,000 | 0.01 KM |
| 17 Ormerod Street | £ 165,000 | 0.01 KM |
| 3 Ormerod Street | £ 150,000 | 0.01 KM |