House of character and quality in just under half an acre in Bunbury Heath
By Gascoigne Halman
£ 850,000
Reviews
3 out of 5 stars
Gascoigne Halman says ..
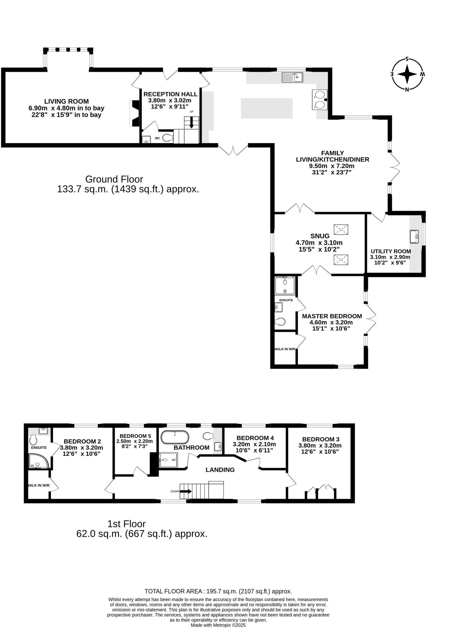
Set in a plot of just under half an acre and located within walking distance of Bunbury village, a superb five bedroom, three bathroom house of character with stunning open plan kitchen family space.
Property Oracle says ..
A beautiful barn conversion located in Bunbury Heath, Cheshire. The property boasts four bedrooms and three bathrooms, making it suitable for families. The property benefits from a substantial, well-maintained garden and sits in just under half an acre. The property is located near well-regarded schools.
Therefore, we give this property 7 / 10. *Disclaimer: This is our option and does constitute a recommendation or financial advice. Do your own research. *
- Price
- 7
- Condition
- 8
- Location
- 7
- Land
- 8
- Bedrooms
- 4
- Bathrooms
- 3
The heatmap indicates the level of crime in the area. The color of the heatmap indicates the crime severity and recency.
Metrics Year-on-Year
- Average area value
- 486,321.00 £Decreased by 11.71 %
- Average area rental value
- 1,340.00 £/moDecreased by 8.91 %
- Est rental Yield
- 3.31 %Increased by 3.44 %
- Crime Rate
- 0.00 %
Agent Activity
Gascoigne Halman created the listing.
Nearby Schools
| Name | Type | Ofsted | Distance |
|---|---|---|---|
| Bunbury Aldersey Cofe Primary School | Academy Converter | Good | 0.69 KM |
| Tarporley High School And Sixth Form College | Academy Converter | Outstanding | 3.81 KM |
| Tarporley Cofe Primary School | Voluntary Controlled School | Good | 4.28 KM |
| Eaton Primary School | Academy Sponsor Led | 5.91 KM | |
| Utkinton St Paul'S Cofe Primary School | Academy Converter | 7.44 KM |
Images
Nearby Streets
| Name | Average Price | Average Sqft | Distance |
|---|---|---|---|
| The Hawthorns | £ 625,000 | 0 | 0.00 KM |
| Spurstow FP 3 | £ 320,000 | 0 | 0.00 KM |
| St. Boniface Road | £ 850,000 | 0 | 0.00 KM |
| Grange Close | £ 0 | 0 | 0.00 KM |
| Sandford Road | £ 0 | 0 | 0.00 KM |
Nearby Listings
| Address | Price | Type | Score | Distance |
|---|---|---|---|---|
| House of character and quality in just under half an acre in Bunbury Heath | £ 850,000 | BUY | 7 / 10 | 0.00 KM |
| School Lane, Bunbury | £ 1,500,000 | BUY | Unknown | 0.16 KM |
| Whitchurch Road, Tarporley | £ 400,000 | BUY | 7 / 10 | 0.17 KM |
| School Lane, Bunbury, CW6 | £ 580,000 | BUY | 7 / 10 | 0.26 KM |
| Whitchurch Road, Bunbury Heath | £ 945,000 | BUY | 8 / 10 | 0.29 KM |
Nearby Properties
| Address | Price | Distance |
|---|---|---|
| Stanner Cottage | £ 235,000 | 0.15 KM |
| Holly House | £ 300,000 | 0.15 KM |
| Firbank House | £ 850,000 | 0.17 KM |
| Ruffield | £ 250,000 | 0.17 KM |
| Lyndhurst | £ 262,500 | 0.17 KM |