WA
Green Wrythe Lane, Carshalton
By Watson Homes
£ 485,000
Reviews
3 out of 5 stars
Watson Homes says ..
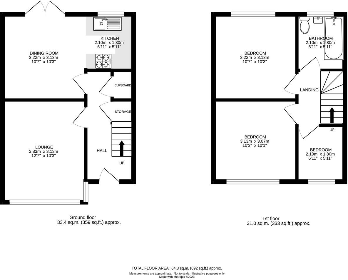
* NO ONWARD CHAIN * Watson Homes are delighted to offer this recently refurbished three bedroom family home. The property benefits from a spacious kitchen/diner, a large rear garden with scope to extend s.t.p.p, and ample off street parking. Located in a sought after residential road in...
Property Oracle says ..
Therefore, we give this property 6 / 10. *Disclaimer: This is our option and does constitute a recommendation or financial advice. Do your own research. *
- Price
- 4
- Condition
- 8
- Location
- 8
- Land
- 7
- Bedrooms
- 3
- Bathrooms
- 1
- Sqft (est)
- 571.46
The heatmap indicates the level of crime in the area. The color of the heatmap indicates the crime severity and recency.
Metrics Year-on-Year
- Average area value
- 403,333.00 £Decreased by 10.97 %
- Est sale value
- 165,151.94 £Decreased by 44.10 %
- Average area rental value
- 1,450.00 £/moDecreased by 6.45 %
- Est letting value
- 571.46 £/moUnchanged by 0.00 %
- Est rental Yield
- 4.31 %Increased by 4.87 %
- Crime Rate
- 3.00 %Unchanged by 0.00 %
from 453,045.00 £
from 295,444.82 £
from 1,550.00 £/mo
from 571.46 £/mo
from 4.11 %
from 3.00 %
Agent Activity
Watson Homes created the listing.
Nearby Schools
| Name | Type | Ofsted | Distance |
|---|---|---|---|
| Muschamp Primary School And Language Opportunity Base | Foundation School | Good | 0.37 KM |
| Rushy Meadow Primary Academy | Academy Sponsor Led | Good | 0.43 KM |
| Muschamp Children'S Centre | Children's Centre | 0.54 KM | |
| Carshalton High School For Girls | Academy Converter | Good | 0.56 KM |
| Harris Junior Academy Carshalton | Academy Sponsor Led | Good | 0.66 KM |
Images
Nearby Streets
| Name | Average Price | Average Sqft | Distance |
|---|---|---|---|
| William Street | £ 370,000 | 0 | 0.00 KM |
| Green Close | £ 0 | 0 | 0.00 KM |
| Limes Avenue | £ 550,000 | 0 | 0.00 KM |
| Tyrell Court | £ 0 | 0 | 0.00 KM |
| Palmerston Road | £ 415,000 | 0 | 0.00 KM |
Nearby Transport
| Name | NLC | TLC | Distance |
|---|---|---|---|
| Carshalton | 5405 | CSH | 0.76 KM |
| Hackbridge | 5364 | HCB | 1.74 KM |
| Carshalton Beeches | 5406 | CSB | 1.92 KM |
| Mitcham Junction | 5427 | MIJ | 2.41 KM |
| Wallington | 5394 | WLT | 2.59 KM |
Nearby Listings
| Address | Price | Type | Score | Distance |
|---|---|---|---|---|
| Green Wrythe Lane, Carshalton | £ 485,000 | BUY | 6 / 10 | 0.00 KM |
| St. Andrews Road, Carshalton, SM5 | £ 525,000 | BUY | Unknown | 0.10 KM |
| St James Road, Carshalton, SM5 2DU | £ 475,000 | BUY | Unknown | 0.16 KM |
| St James Road, Carshalton, SM5 2DU | £ 450,000 | BUY | 7 / 10 | 0.16 KM |
| Green Wrythe Lane, Carshalton | £ 325,000 | BUY | 7 / 10 | 0.19 KM |
Nearby Properties
| Address | Price | Distance |
|---|---|---|
| 92 Green Wrythe Lane | £ 195,000 | 0.09 KM |
| 122 Green Wrythe Lane | £ 320,000 | 0.09 KM |
| 140 Green Wrythe Lane | £ 169,500 | 0.09 KM |
| 86a Green Wrythe Lane | £ 297,500 | 0.09 KM |
| 144 Green Wrythe Lane | £ 410,000 | 0.09 KM |