Lavender Road, Up Hatherley, Cheltenham
By Peter Ball & Co
£ 475,000
Reviews
4 out of 5 stars
Peter Ball & Co says ..
A Cotswold stone style detached property enjoying a tucked away position overlooking a well-kept green set within the popular Up Hatherley area of Cheltenham, within easy reach of local amenities and Cheltenham Town Centre. The area boasts a number of sought after schools, a doctors surgery, libr...
Property Oracle says ..
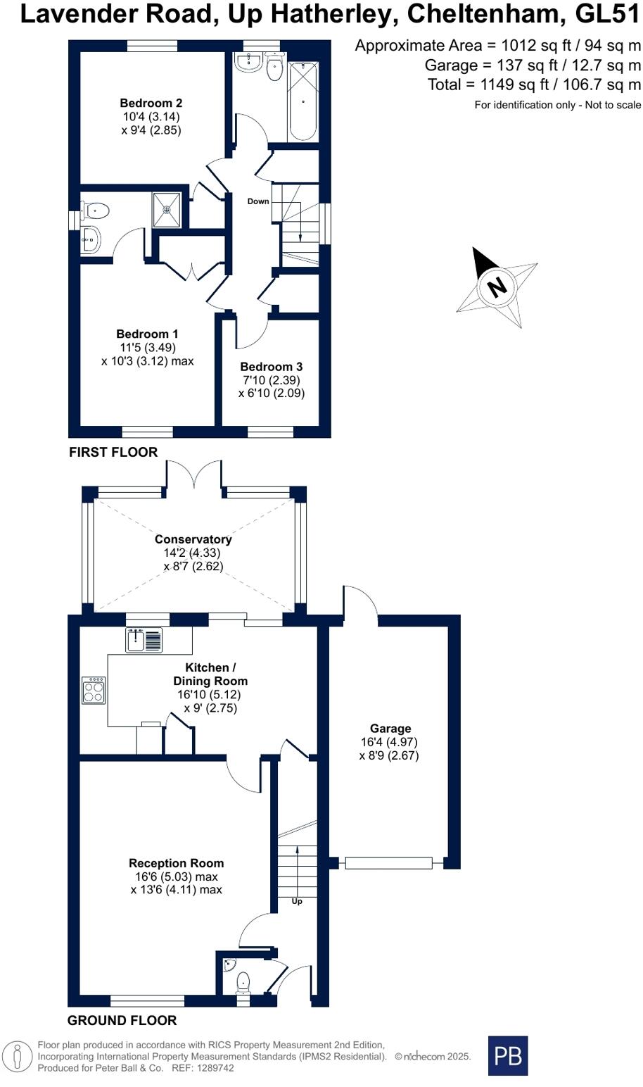
This property is a three-bedroom detached house located in Up Hatherley, Cheltenham. The location benefits from being close to highly-rated primary schools such as Warden Hill Primary School (Outstanding Ofsted rating) and Greatfield Park Primary School (Good Ofsted rating), both within a short distance. Cheltenham Spa train station is also relatively close by, providing convenient access to transport links. The property itself appears to be in excellent condition, with a modern kitchen and bathrooms. The images show a well-maintained garden, adding to its appeal. The list price of £475,000 is slightly below the average price for the area (£510,640), and considering the property’s condition, location, and size (1334 sqft), it seems to be a reasonable price, especially given that the average price per sqft in the area is £574, while this property is smaller and therefore likely priced lower per sqft. However, more specific comparable sales data would be needed to confirm this.
Therefore, we give this property 8 / 10. *Disclaimer: This is our option and does constitute a recommendation or financial advice. Do your own research. *
- Price
- 8
- Condition
- 9
- Location
- 9
- Land
- 7
- Bedrooms
- 3
- Bathrooms
- 2
- Sqft (est)
- 1,334.00
- Lot (est)
- 1,149.00
The heatmap indicates the level of crime in the area. The color of the heatmap indicates the crime severity and recency.
Metrics Year-on-Year
- Average area value
- 513,942.00 £Decreased by 2.28 %
- Est sale value
- 761,714.00 £Decreased by 5.93 %
- Average area rental value
- 2,061.00 £/moIncreased by 1.93 %
- Est letting value
- 2,668.00 £/moUnchanged by 0.00 %
- Est rental Yield
- 4.81 %Increased by 4.34 %
- Crime Rate
- 3.00 %Unchanged by 0.00 %
Agent Activity
Peter Ball & Co created the listing.
Nearby Schools
| Name | Type | Ofsted | Distance |
|---|---|---|---|
| Up Hatherley Library Children'S Centre | Children's Centre | 0.44 KM | |
| Warden Hill Primary School | Foundation School | Outstanding | 0.45 KM |
| Greatfield Park Primary School | Community School | Good | 0.52 KM |
| Cheltenham Bournside School And Sixth Form Centre | Academy Converter | Good | 0.82 KM |
| Belmont School | Academy Special Converter | 1.04 KM |
Images
Nearby Streets
| Name | Average Price | Average Sqft | Distance |
|---|---|---|---|
| Barwick Road | £ 0 | 0 | 0.00 KM |
| Rochester Close | £ 300,000 | 0 | 0.00 KM |
| Warren Close | £ 0 | 0 | 0.00 KM |
| Friars Close | £ 0 | 0 | 0.00 KM |
| Alma Road | £ 300,000 | 0 | 0.00 KM |
Nearby Transport
| Name | NLC | TLC | Distance |
|---|---|---|---|
| Cheltenham Spa | 4731 | CNM | 1.98 KM |
Nearby Listings
| Address | Price | Type | Score | Distance |
|---|---|---|---|---|
| Lavender Road, Up Hatherley, Cheltenham | £ 475,000 | BUY | 8 / 10 | 0.00 KM |
| Lavender Road, Up Hatherley, Cheltenham | £ 260,000 | BUY | 7 / 10 | 0.05 KM |
| Lavender Road, Up Hatherley, Cheltenham, Gloucestershire, GL51 | £ 260,000 | BUY | 6 / 10 | 0.06 KM |
| Bluebell Grove, CHELTENHAM, Gloucestershire, GL51 | £ 190,000 | BUY | Unknown | 0.06 KM |
| Justicia Way, Up Hatherley, Cheltenham, Gloucestershire, GL51 | £ 369,950 | BUY | 8 / 10 | 0.11 KM |
Nearby Properties
| Address | Price | Distance |
|---|---|---|
| 21 Lavender Road | £ 170,000 | 0.05 KM |
| 11 Lavender Road | £ 163,500 | 0.05 KM |
| 7 Lavender Road | £ 125,000 | 0.05 KM |
| 23 Lavender Road | £ 143,000 | 0.05 KM |
| 3 Lavender Road | £ 165,000 | 0.05 KM |