Willowmead Drive, Prestbury, Macclesfield, Cheshire, SK10
By Jackson-Stops
£ 779,950
Reviews
4 out of 5 stars
Jackson-Stops says ..
*** WATCH OUR VIDEO TOUR *** A mid-century classic - imagine free-flowing spaces and swathes of glazing – set in an elevated position with countryside views. Defined by clean geometric lines and masses of light, this modern renovated house evokes a lovely first impress...
Property Oracle says ..
This property is a 4-bedroom, 2-bathroom house located in Prestbury, Cheshire. Prestbury is a desirable village with good schools and transport links, as evidenced by the nearby train stations and highly-rated schools like Upton Priory School and Prestbury Cofe Primary School. The property itself appears to be well-maintained and in good condition, with a modern kitchen and updated bathrooms. The inclusion of a garden is a positive feature. However, the plot size is not specified. Compared to the average price per square foot in the area (£478), the listing price of £779,950 seems slightly below average, potentially representing good value, especially considering the desirable location and apparent condition of the property. More information on the plot size would allow for a more precise evaluation of the price.
Therefore, we give this property 8 / 10. *Disclaimer: This is our option and does constitute a recommendation or financial advice. Do your own research. *
- Price
- 8
- Condition
- 8
- Location
- 9
- Land
- 7
- Bedrooms
- 4
- Bathrooms
- 2
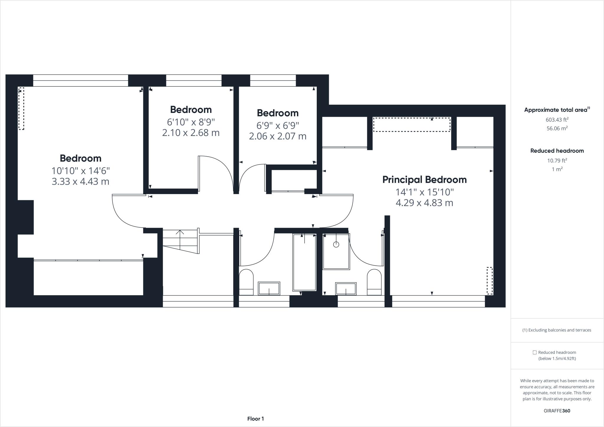
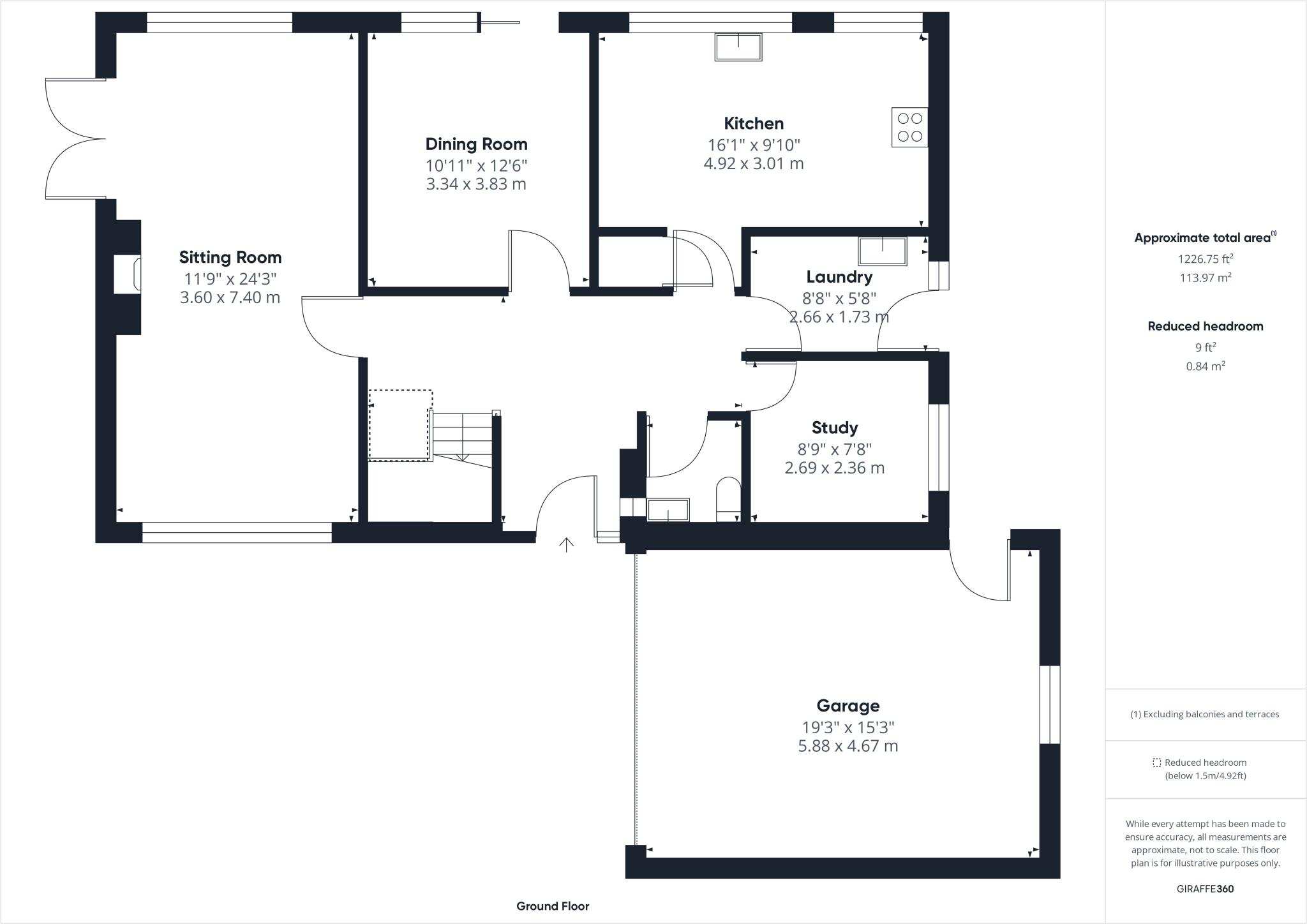
- Sqft (est)
- 1,226.76
The heatmap indicates the level of crime in the area. The color of the heatmap indicates the crime severity and recency.
Metrics Year-on-Year
- Average area value
- 1,007,500.00 £Decreased by 19.91 %
- Est sale value
- 862,412.28 £Increased by 15.82 %
- Average area rental value
- 2,733.00 £/moDecreased by 61.29 %
- Est letting value
- 1,226.76 £/moDecreased by 66.67 %
- Est rental Yield
- 3.26 %Decreased by 51.63 %
- Crime Rate
- 2.00 %Unchanged by 0.00 %
Agent Activity
Jackson-Stops created the listing.
Nearby Schools
| Name | Type | Ofsted | Distance |
|---|---|---|---|
| Upton Priory School | Academy Converter | Good | 1.30 KM |
| Prestbury Cofe Primary School | Voluntary Aided School | Good | 1.45 KM |
| Bollinbrook Cofe (A) Primary School | Voluntary Aided School | Requires improvement | 1.64 KM |
| The Fallibroome Academy | Academy Converter | Outstanding | 1.95 KM |
| St Alban'S Catholic Primary School, A Voluntary Academy | Academy Converter | 1.97 KM |
Images
Nearby Streets
| Name | Average Price | Average Sqft | Distance |
|---|---|---|---|
| Willow Way | £ 695,000 | 0 | 0.00 KM |
| Prestbury Golf Club | £ 1,795,000 | 0 | 0.00 KM |
| Bramble Close | £ 0 | 0 | 0.00 KM |
| Pearl Street | £ 525,000 | 0 | 0.00 KM |
| Severn Close | £ 0 | 0 | 0.00 KM |
Nearby Transport
| Name | NLC | TLC | Distance |
|---|---|---|---|
| Prestbury | 2875 | PRB | 1.49 KM |
| Macclesfield | 2871 | MAC | 3.63 KM |
| Adlington (Cheshire) | 2939 | ADC | 4.65 KM |
| Poynton | 2874 | PYT | 7.95 KM |
| Bramhall | 2944 | BML | 9.14 KM |
Nearby Listings
| Address | Price | Type | Score | Distance |
|---|---|---|---|---|
| Willowmead Drive, Prestbury, Macclesfield, Cheshire, SK10 | £ 779,950 | BUY | 8 / 10 | 0.00 KM |
| Willowmead Drive, Prestbury, Macclesfield | £ 779,950 | BUY | 7 / 10 | 0.00 KM |
| Willowmead Drive, Prestbury, Macclesfield | £ 995,000 | BUY | 7 / 10 | 0.08 KM |
| Southfield, Prestbury, Macclesfield, Cheshire, SK10 | £ 775,000 | BUY | 8 / 10 | 0.08 KM |
| Willowmead Drive, Prestbury | £ 995,000 | BUY | Unknown | 0.09 KM |
Nearby Properties
| Address | Price | Distance |
|---|---|---|
| 28 Willowmead Drive | £ 205,000 | 0.03 KM |
| 42a Willowmead Drive | £ 615,000 | 0.03 KM |
| 56 Willowmead Drive | £ 535,000 | 0.03 KM |
| 37a Willowmead Drive | £ 479,000 | 0.03 KM |
| 37 Willowmead Drive | £ 450,000 | 0.03 KM |