Gascoigne Halman says ..
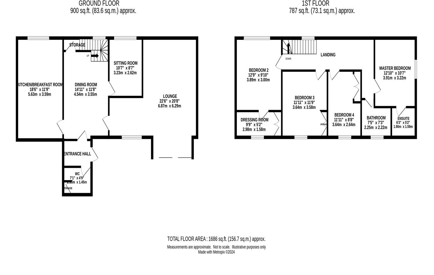
A most handsome old Cheshire brick barn conversion offering immaculate accommodation throughout with three reception rooms, four bedrooms and two bathrooms.
Property Oracle says ..
Therefore, we give this property 6 / 10. *Disclaimer: This is our option and does constitute a recommendation or financial advice. Do your own research. *
- Price
- 6
- Condition
- 8
- Location
- 7
- Land
- 6
- Bedrooms
- 4
- Bathrooms
- 1
- Sqft (est)
- 1,644.48
The heatmap indicates the level of crime in the area. The color of the heatmap indicates the crime severity and recency.
Metrics Year-on-Year
- Average area value
- 291,263.00 £Decreased by 1.08 %
- Est sale value
- 573,923.52 £Increased by 25.99 %
- Average area rental value
- 980.00 £/moDecreased by 0.31 %
- Est letting value
- 1,644.48 £/mo
- Est rental Yield
- 4.04 %Increased by 0.75 %
- Crime Rate
- 3.00 %Unchanged by 0.00 %
from 294,431.00 £
from 455,520.96 £
from 983.00 £/mo
from 0.00 £/mo
from 4.01 %
from 3.00 %
Agent Activity
Gascoigne Halman created the listing.
Nearby Schools
| Name | Type | Ofsted | Distance |
|---|---|---|---|
| Ash Grove Children'S Centre | Children's Centre | 1.31 KM | |
| Ash Grove Academy | Academy Converter | 1.36 KM | |
| Christ The King Catholic And Church Of England Primary School | Academy Sponsor Led | 1.63 KM | |
| Hollinhey Primary School | Academy Converter | 1.79 KM | |
| Macclesfield College | Further Education | Good | 2.28 KM |
Images
Nearby Streets
| Name | Average Price | Average Sqft | Distance |
|---|---|---|---|
| Kingfisher Drive | £ 0 | 0 | 0.00 KM |
| Robin Crescent | £ 650,000 | 0 | 0.00 KM |
| Windsor Square | £ 0 | 0 | 0.00 KM |
| Western Avenue | £ 0 | 0 | 0.00 KM |
| Albion Way | £ 0 | 0 | 0.00 KM |
Nearby Transport
| Name | NLC | TLC | Distance |
|---|---|---|---|
| Macclesfield | 2871 | MAC | 2.89 KM |
| Prestbury | 2875 | PRB | 6.95 KM |
| Adlington (Cheshire) | 2939 | ADC | 9.57 KM |
Nearby Listings
| Address | Price | Type | Score | Distance |
|---|---|---|---|---|
| Robin Lane, Lyme Green | £ 615,000 | BUY | 6 / 10 | 0.00 KM |
| London Road, Macclesfield | £ 245,000 | BUY | 6 / 10 | 0.06 KM |
| London Road, Lyme Green, Macclesfield, SK11 0JX | £ 250,000 | BUY | 6 / 10 | 0.07 KM |
| Cypress Close, Macclesfield, SK11 0EX | £ 114,000 | BUY | 7 / 10 | 0.14 KM |
| Robin Lane, Lyme Green, Macclesfield | £ 370,000 | BUY | 7 / 10 | 0.15 KM |
Nearby Properties
| Address | Price | Distance |
|---|---|---|
| 6 Lindrum Avenue | £ 180,000 | 0.18 KM |
| 2 Lindrum Avenue | £ 190,000 | 0.18 KM |
| 4 Lindrum Avenue | £ 177,500 | 0.18 KM |
| 18 Lindrum Avenue | £ 150,000 | 0.18 KM |
| 5 Lindrum Avenue | £ 160,000 | 0.18 KM |