Gores Lane, Formby, Liverpool, L37
By Stephanie Macnab Estate Agents
£ 675,000
Reviews
3 out of 5 stars
Stephanie Macnab Estate Agents says ..
A much-loved family home on Gores Lane, Formby – offered with no onward chain and a superb west-facing gardenSet on one of Formby’s most sought-after TREE-LINED ROADS, this handsome DETACHED HOME offers a rare opportunity to purchase a property that has been in the same fami...
Property Oracle says ..
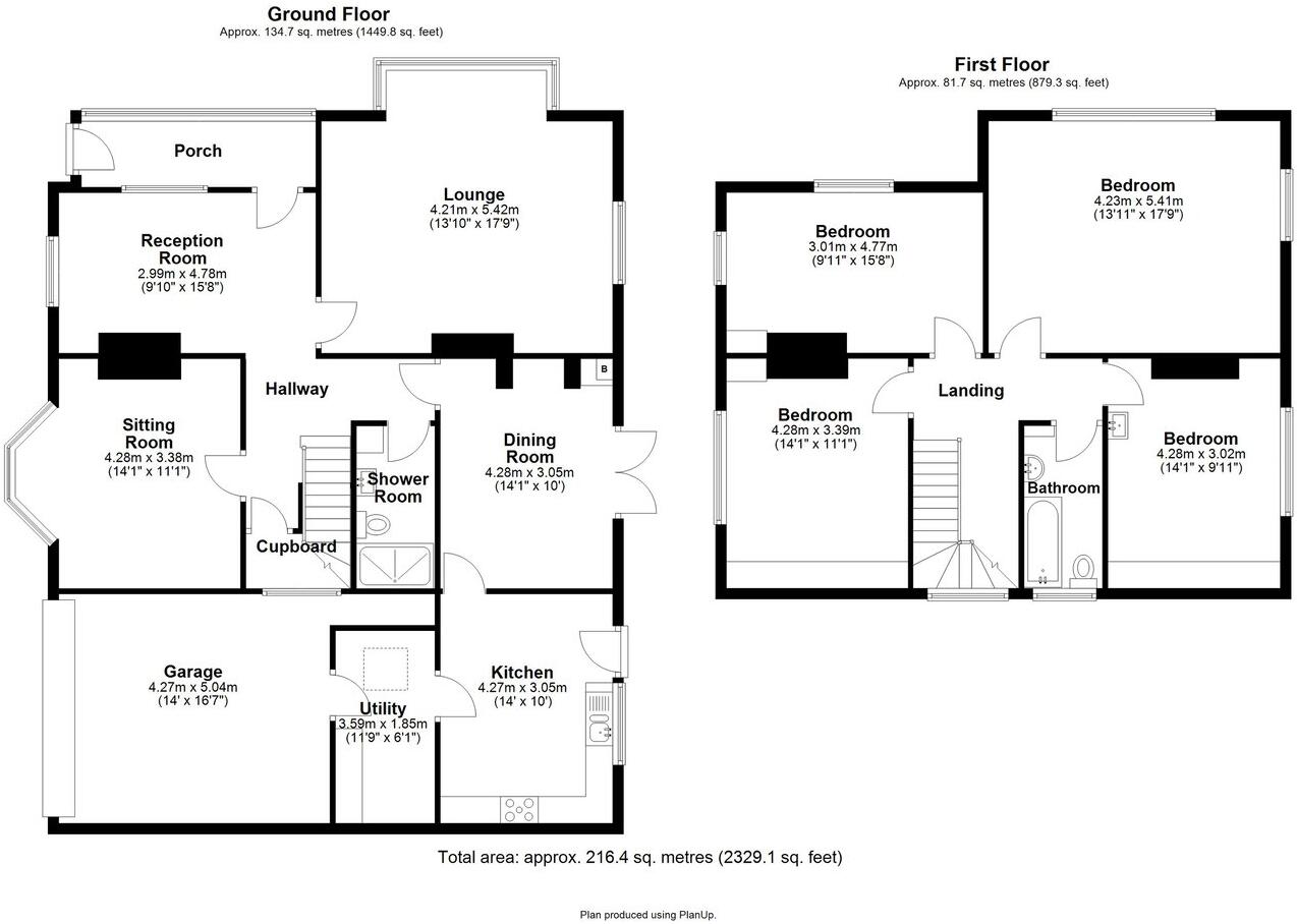
This property is a 4 bedroom detached house located in Formby, Liverpool. It benefits from being close to excellent schools such as Formby High School and Freshfield Primary School, and is also conveniently located near several Merseyrail stations, providing easy access to Liverpool city centre. The property itself is a traditional style house, which appears to be well-maintained, though some modernisation may be desirable. The garden is a significant feature, offering a good-sized plot with mature trees and shrubs. The asking price of £675,000 seems relatively high compared to the average price per square foot in the area, but this could be justified by the property’s location, size, and the substantial garden.
Therefore, we give this property 7 / 10. *Disclaimer: This is our option and does constitute a recommendation or financial advice. Do your own research. *
- Price
- 6
- Condition
- 7
- Location
- 9
- Land
- 8
- Bedrooms
- 4
- Bathrooms
- 1
- Sqft (est)
- 1,558.27
- Lot (est)
- 2,329.10
The heatmap indicates the level of crime in the area. The color of the heatmap indicates the crime severity and recency.
Metrics Year-on-Year
- Average area value
- 971,667.00 £Increased by 80.27 %
- Est sale value
- 1,017,550.31 £Increased by 79.89 %
- Average area rental value
- 4,667.00 £/moIncreased by 20.81 %
- Est letting value
- 4,674.81 £/moIncreased by 50.00 %
- Est rental Yield
- 5.76 %Decreased by 33.02 %
- Crime Rate
- 0.00 %
Agent Activity
Stephanie Macnab Estate Agents created the listing.
Nearby Schools
| Name | Type | Ofsted | Distance |
|---|---|---|---|
| Formby High School | Academy Converter | 0.51 KM | |
| Trinity St Peter'S Cofe Primary School | Voluntary Aided School | Good | 1.02 KM |
| Freshfield Children'S Centre | Children's Centre | 1.24 KM | |
| Freshfield Primary School | Community School | Outstanding | 1.39 KM |
| Our Lady Of Compassion Catholic Primary School | Voluntary Aided School | Good | 1.43 KM |
Images
Nearby Streets
| Name | Average Price | Average Sqft | Distance |
|---|---|---|---|
| Long Lane | £ 995,000 | 0 | 0.00 KM |
| Page Court | £ 180,000 | 0 | 0.00 KM |
| Sunningdale Gardens | £ 0 | 0 | 0.00 KM |
| The Copse | £ 0 | 0 | 0.00 KM |
| Green Lane | £ 0 | 0 | 0.00 KM |
Nearby Transport
| Name | NLC | TLC | Distance |
|---|---|---|---|
| Freshfield | 2355 | FRE | 1.00 KM |
| Formby | 2354 | FBY | 1.27 KM |
| Hightown | 2356 | HTO | 4.19 KM |
| Ainsdale | 2350 | ANS | 4.99 KM |
| Hall Road | 2229 | HLR | 7.37 KM |
Nearby Listings
| Address | Price | Type | Score | Distance |
|---|---|---|---|---|
| Gores Lane, Formby, Liverpool, L37 | £ 675,000 | BUY | 7 / 10 | 0.00 KM |
| Gores Lane, Formby, Liverpool, L37 | £ 450,000 | BUY | 8 / 10 | 0.07 KM |
| Gores Lane, Formby, Liverpool, L37 | £ 375,000 | BUY | 7 / 10 | 0.09 KM |
| Gores Lane, Formby, Liverpool | £ 475,000 | BUY | 7 / 10 | 0.10 KM |
| Byron Close, Formby | £ 280,000 | BUY | 7 / 10 | 0.15 KM |
Nearby Properties
| Address | Price | Distance |
|---|---|---|
| 36 Gores Lane | £ 260,000 | 0.06 KM |
| 62 Gores Lane | £ 249,500 | 0.06 KM |
| 46 Gores Lane | £ 310,000 | 0.06 KM |
| 34 Gores Lane | £ 280,000 | 0.06 KM |
| 40 Gores Lane | £ 230,000 | 0.06 KM |