Champions says ..
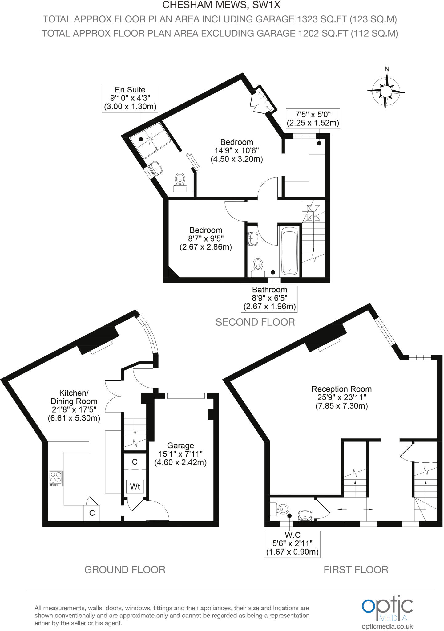
Situated in the heart of Belgravia, this charming two-bedroom house is discreetly tucked away in the corner of a secure, cobbled mews.
Property Oracle says ..
This is a well-presented mews house in the heart of Belgravia. The property offers two bedrooms and two bathrooms, making it suitable for a small family or couple. The location is excellent, with easy access to transportation, shops, and restaurants. While the property has been modernised, it retains some of its original character. The lack of a substantial garden may be a drawback for some buyers. Overall, this is a desirable property in a sought-after location.
Therefore, we give this property 6 / 10. *Disclaimer: This is our option and does constitute a recommendation or financial advice. Do your own research. *
- Price
- 6
- Condition
- 8
- Location
- 9
- Land
- 3
- Bedrooms
- 2
- Bathrooms
- 2
- Sqft (est)
- 1,466.36
The heatmap indicates the level of crime in the area. The color of the heatmap indicates the crime severity and recency.
Metrics Year-on-Year
- Average area value
- 2,149,286.00 £Decreased by 31.35 %
- Est sale value
- 3,759,747.04 £Decreased by 1.46 %
- Average area rental value
- 3,121.00 £/moIncreased by 16.59 %
- Est letting value
- 4,399.08 £/moIncreased by 50.00 %
- Est rental Yield
- 1.74 %Increased by 68.93 %
- Crime Rate
- 2.00 %Unchanged by 0.00 %
Agent Activity
Champions created the listing.
Nearby Schools
| Name | Type | Ofsted | Distance |
|---|---|---|---|
| More House School | Other Independent School | 0.42 KM | |
| Inchbald School Of Design | Miscellaneous | 0.44 KM | |
| Eaton House School | Other Independent School | 0.44 KM | |
| Hill House School | Other Independent School | Good | 0.49 KM |
| Holy Trinity Cofe Primary School | Voluntary Aided School | Good | 0.52 KM |
Images
Nearby Streets
| Name | Average Price | Average Sqft | Distance |
|---|---|---|---|
| Eaton Place | £ 0 | 0 | 0.00 KM |
| Capener's Close | £ 0 | 0 | 0.00 KM |
| Ann's Close | £ 0 | 0 | 0.00 KM |
| Cadogan Place | £ 0 | 0 | 0.00 KM |
| Stackhouse Street | £ 6,750,000 | 0 | 0.00 KM |
Nearby Transport
| Name | NLC | TLC | Distance |
|---|---|---|---|
| Victoria | 5426 | VIC | 1.30 KM |
| Battersea Park | 5420 | BAK | 2.52 KM |
| Queenstown Road (Battersea) | 5596 | QRB | 2.77 KM |
| Marylebone | 1475 | MYB | 2.83 KM |
| Paddington | 3087 | PAD | 3.00 KM |
Nearby Listings
| Address | Price | Type | Score | Distance |
|---|---|---|---|---|
| Chesham Mews, Belgravia, London, SW1X, United Kingdom | £ 5,350,000 | BUY | 7 / 10 | 0.00 KM |
| Chesham Mews, Belgravia | £ 1,975,000 | BUY | 6 / 10 | 0.00 KM |
| Chesham Mews, London | £ 5,000,000 | BUY | 7 / 10 | 0.01 KM |
| Chesham Mews, Belgravia, London, SW1X | £ 2,750,000 | BUY | Unknown | 0.01 KM |
| Chesham Place, London, SW1X | £ 6,000,000 | BUY | Unknown | 0.01 KM |
Nearby Properties
| Address | Price | Distance |
|---|---|---|
| 17 Chesham Mews | £ 500,500 | 0.00 KM |
| 18 Chesham Mews | £ 775,000 | 0.00 KM |
| 22 Chesham Mews | £ 2,550,000 | 0.00 KM |
| 25 Chesham Mews | £ 3,300,000 | 0.02 KM |
| 15 Chesham Mews | £ 820,000 | 0.02 KM |