Marshland St. James, Wisbech, Norfolk, PE14 8EY, PE14
By The Norfolk Agents
£ 585,000
Reviews
3 out of 5 stars
The Norfolk Agents says ..
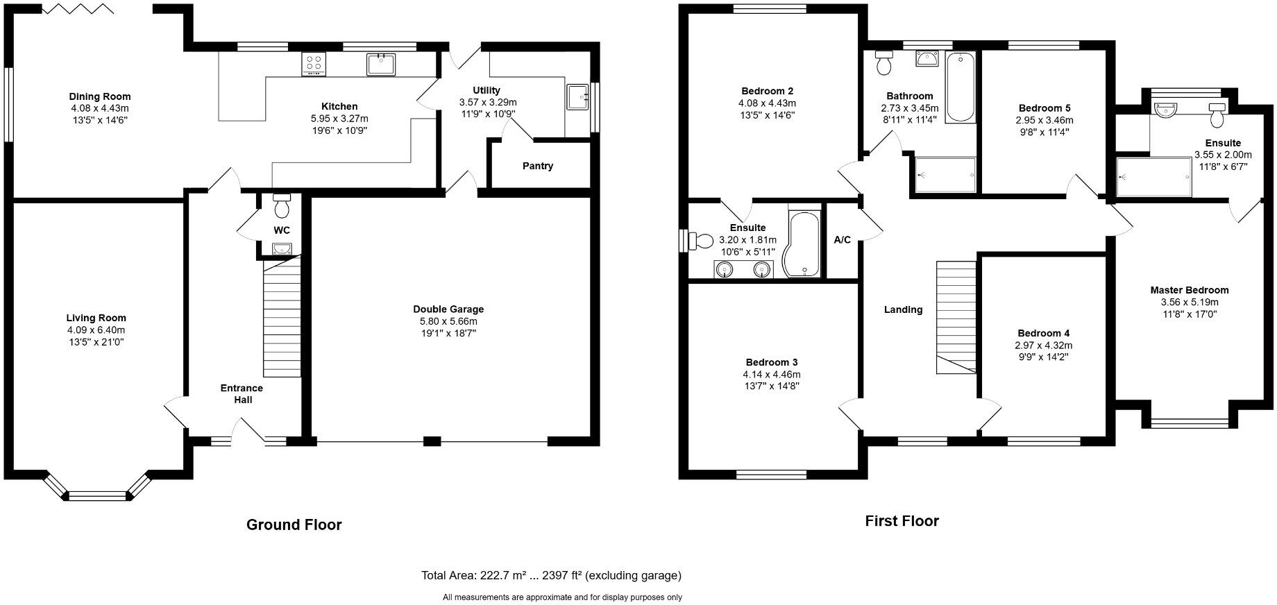
Spacious 5-bedroom family home in Marshland St. James with modern open-plan living and a neatly maintained garden.
Property Oracle says ..
This is a well-presented, modern detached property located in Marshland St. James. The house features five bedrooms and three bathrooms, making it suitable for a large family. The interior is in excellent condition, with a modern kitchen and stylish bathrooms. The property also benefits from a good-sized garden and a double garage, one of which has been converted into a gym. While the location is somewhat rural, it offers a peaceful setting and is within walking distance of the local primary school. The price seems reasonable given the property’s condition, size, and features.
Therefore, we give this property 7 / 10. *Disclaimer: This is our option and does constitute a recommendation or financial advice. Do your own research. *
- Price
- 7
- Condition
- 9
- Location
- 6
- Land
- 8
- Bedrooms
- 5
- Bathrooms
- 3
The heatmap indicates the level of crime in the area. The color of the heatmap indicates the crime severity and recency.
Metrics Year-on-Year
- Average area value
- 245,074.00 £Decreased by 15.93 %
- Average area rental value
- 1,254.00 £/moDecreased by 5.43 %
- Est rental Yield
- 6.14 %Increased by 12.45 %
- Crime Rate
- 46.00 %Unchanged by 0.00 %
Agent Activity
The Norfolk Agents created the listing.
Nearby Schools
| Name | Type | Ofsted | Distance |
|---|---|---|---|
| Marshland St James Primary And Nursery School | Academy Sponsor Led | Requires improvement | 0.14 KM |
| Walpole Highway Primary School | Community School | Requires improvement | 4.31 KM |
| Terrington St John Primary School | Community School | Good | 4.61 KM |
| Tilney St Lawrence Community Primary School | Community School | Good | 4.99 KM |
| Emneth Nursery School | Local Authority Nursery School | Outstanding | 5.58 KM |
Images
Nearby Streets
| Name | Average Price | Average Sqft | Distance |
|---|---|---|---|
| Jubilee Lane | £ 425,000 | 0 | 0.00 KM |
| Garners Lane | £ 0 | 0 | 0.00 KM |
| Hope Lane | £ 290,000 | 0 | 0.00 KM |
Nearby Listings
| Address | Price | Type | Score | Distance |
|---|---|---|---|---|
| Marshland St. James, Wisbech, Norfolk, PE14 8EY, PE14 | £ 585,000 | BUY | 7 / 10 | 0.00 KM |
| School Road, Marshland St James, PE14 | £ 249,995 | BUY | 7 / 10 | 0.06 KM |
| Carters Field Way, Marshland St. James, PE14 | £ 500,000 | BUY | 8 / 10 | 0.07 KM |
| Smeeth Road, Marshland St James | £ 325,000 | BUY | 6 / 10 | 0.27 KM |
| Jubilee Lane, Marshland St. James, Wisbech | £ 425,000 | BUY | 7 / 10 | 0.36 KM |
Nearby Properties
| Address | Price | Distance |
|---|---|---|
| 11 School Road | £ 160,000 | 0.09 KM |
| 10 School Road | £ 162,000 | 0.19 KM |
| 9 School Road | £ 385,000 | 0.19 KM |
| Endycott | £ 250,000 | 0.19 KM |
| 23 Jubilee Lane | £ 230,000 | 0.36 KM |